Администрация города Челябинска

Управление по архитектурно-градостроительному
проектированию города Челябинска


Начальник управления,
главного архитектора
Крутолапов Павел Дмитриевич

Крутолапов П. Д.

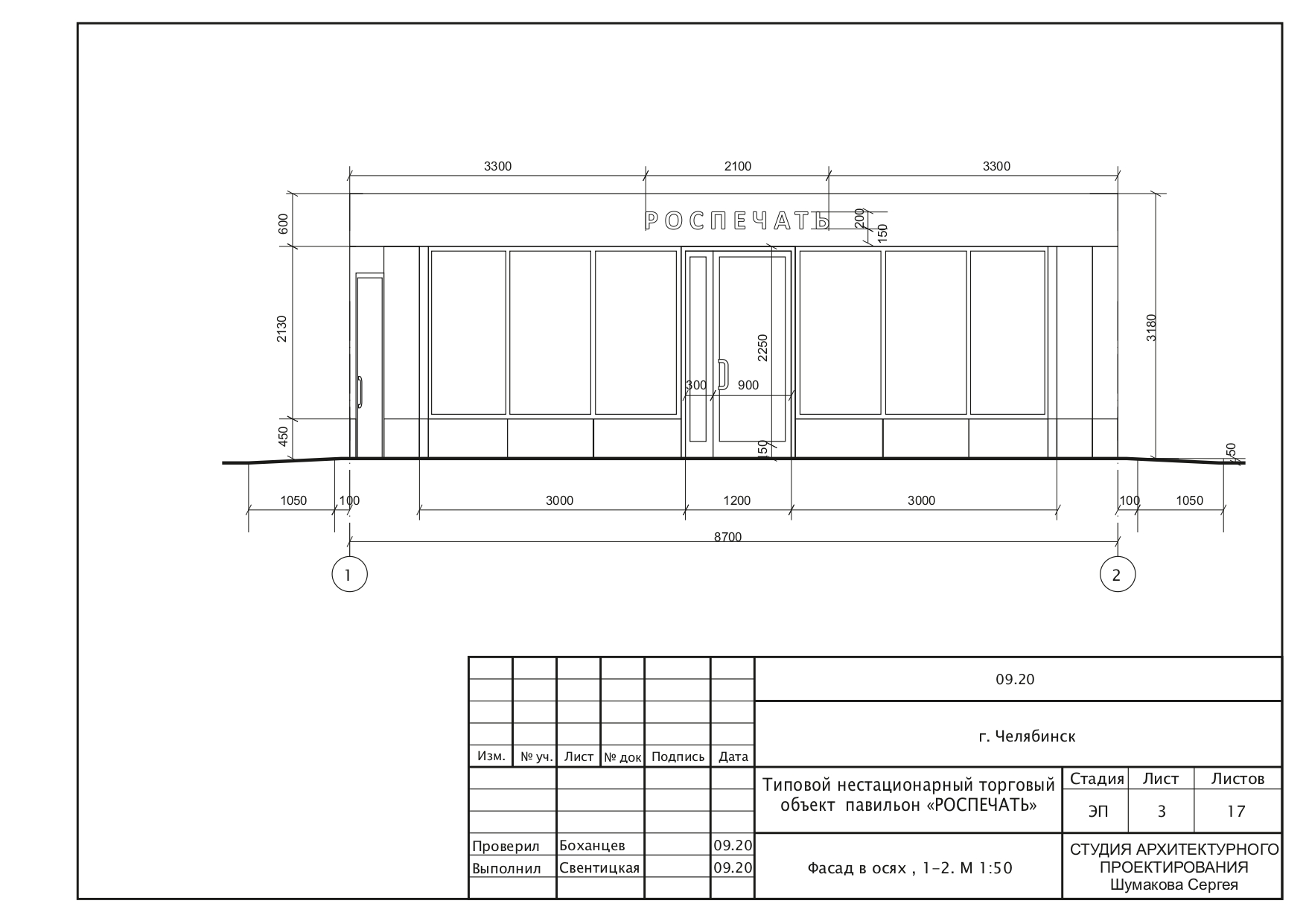
Павильоны по продаже печатной продукции:


Word ico Просмотреть – Приказ об утверждении типовых эскизных проектов от 10.03.2021 № 20/осн

Word ico Просмотреть – Павильон по продаже печатной продукции. Тип 1-5

Word ico Просмотреть – Приказ об утверждении типовых эскизных проектов от 22.07.2021 № 43/осн

Word ico Просмотреть – Павильон по продаже печатной продукции. Тип 6

Word ico Просмотреть – Приказ об утверждении типовых эскизных проектов от 07.10.2021 № 57/осн

Word ico Просмотреть – Павильон по продаже печатной продукции. Тип 7

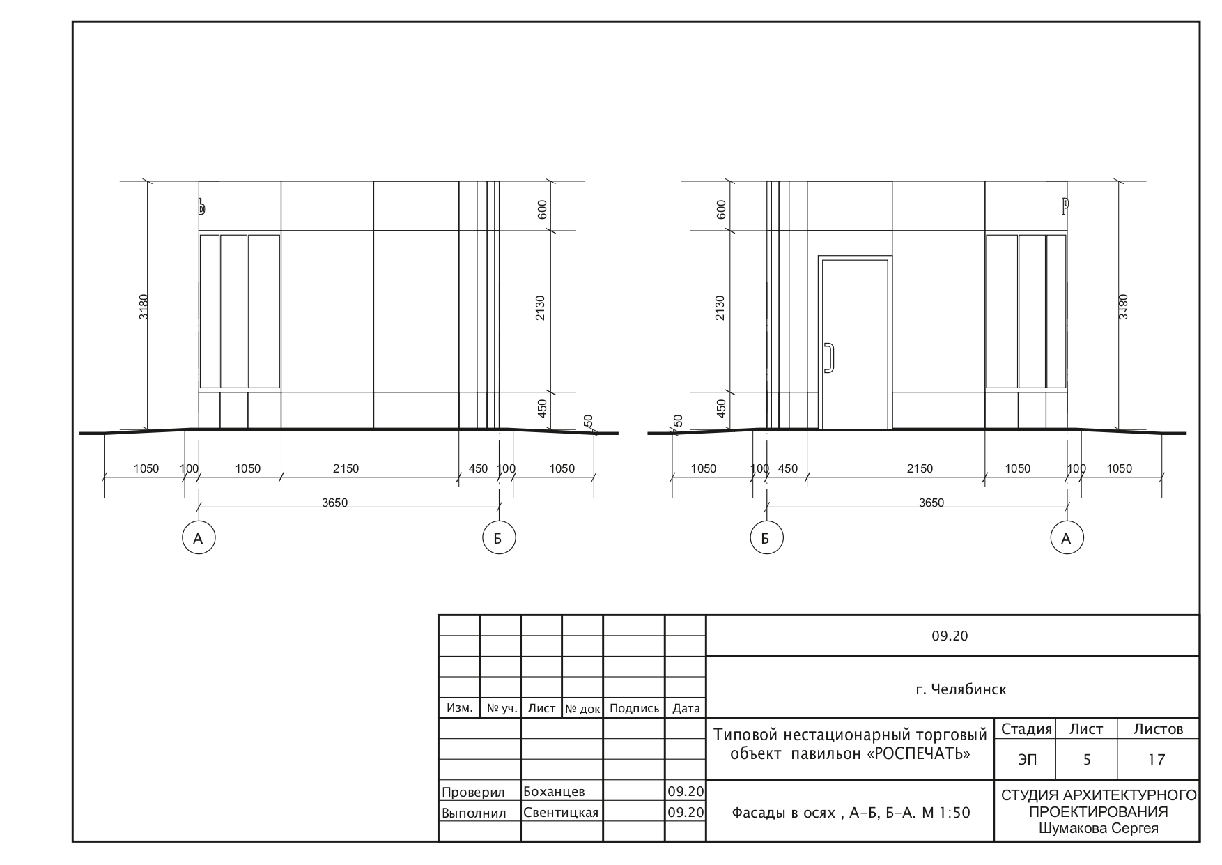
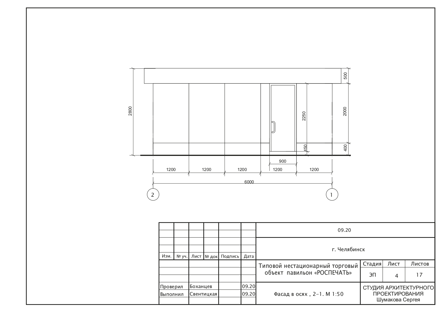
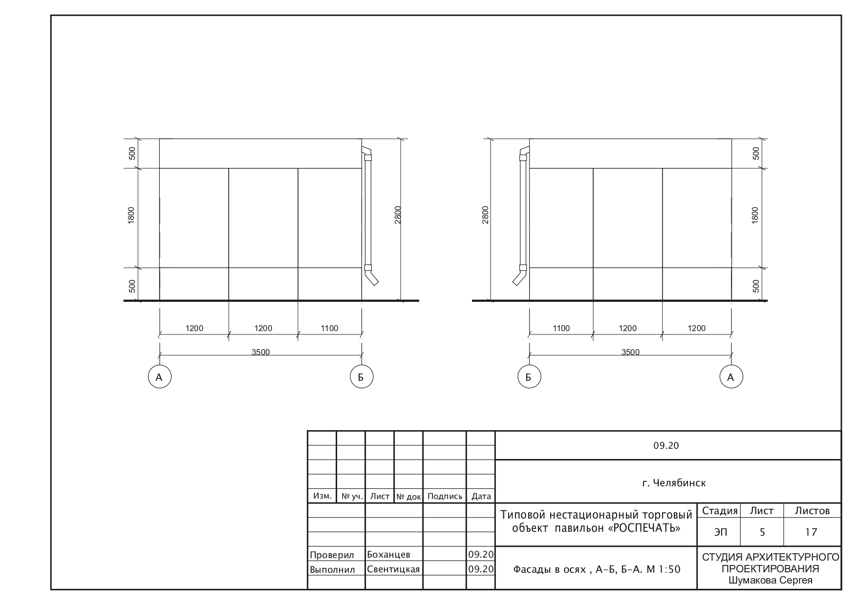
№ 7.1 Павильон по продаже печатной продукции (предельная площадь — 17,0 кв. м, общая площадь торгового павильона 11,7 кв. м), тип 1;


№ 7.2 Павильон по продаже печатной продукции (предельная площадь — 29,0 кв. м, общая площадь торгового павильона 22,0 кв. м), тип 2;


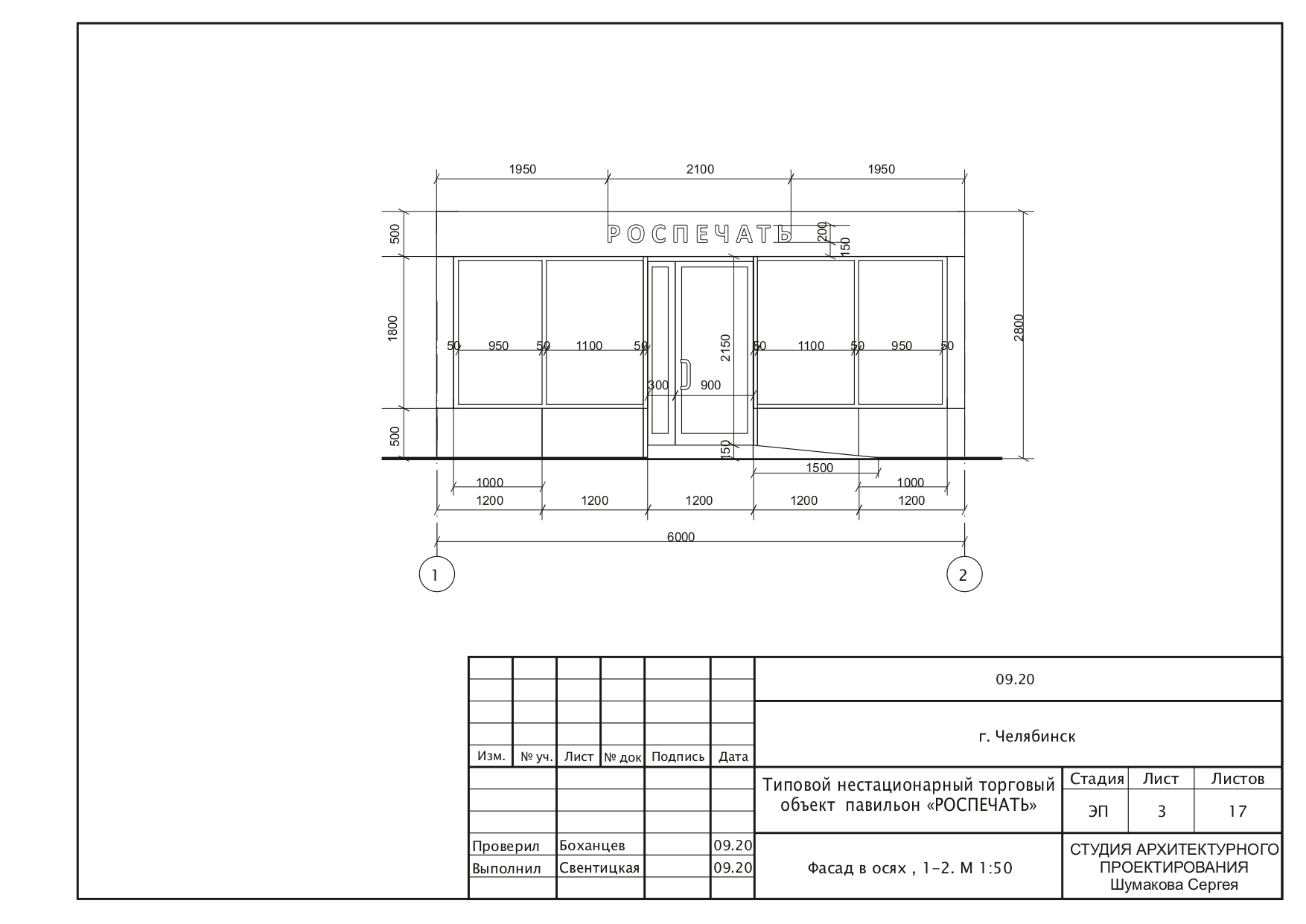
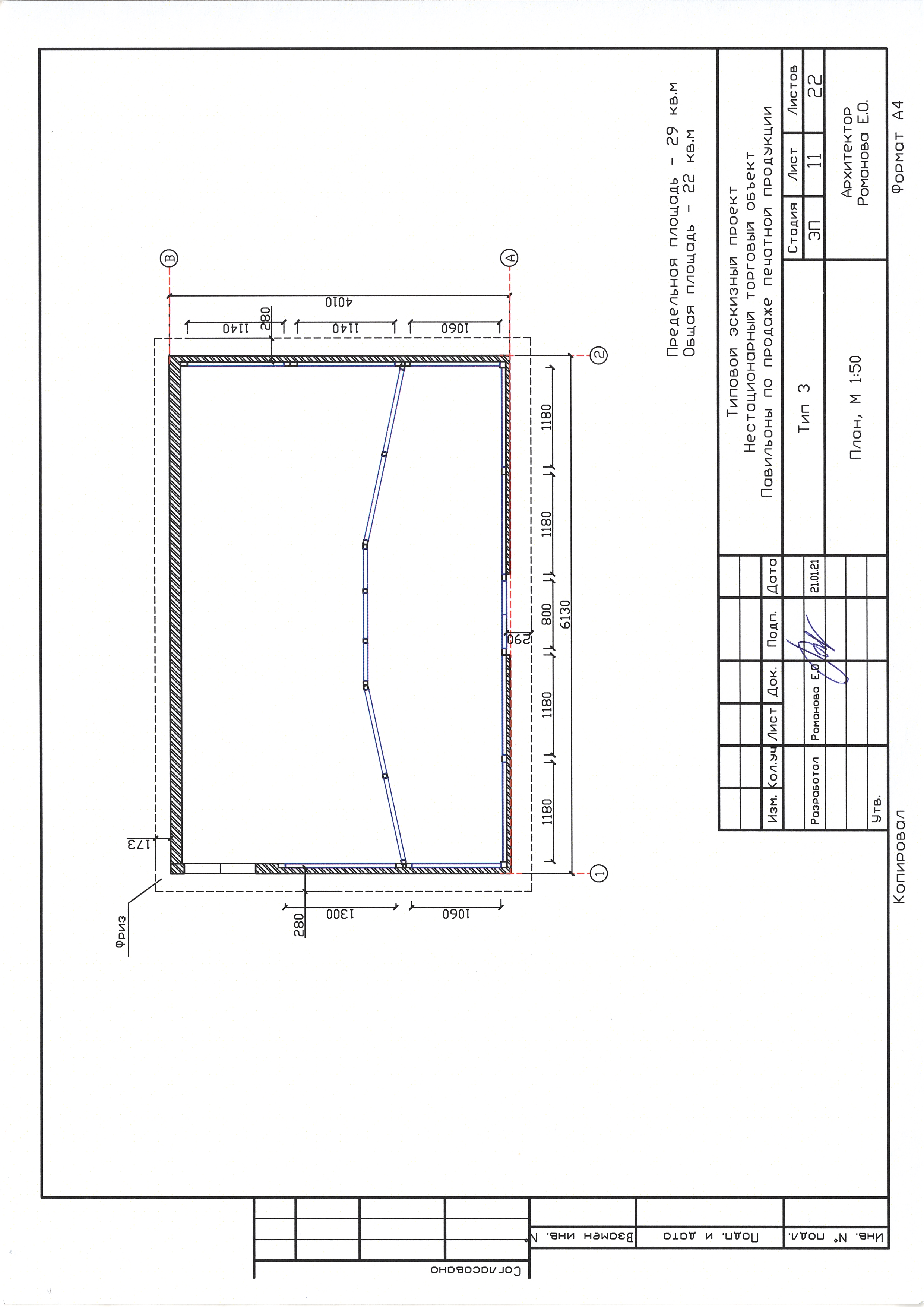
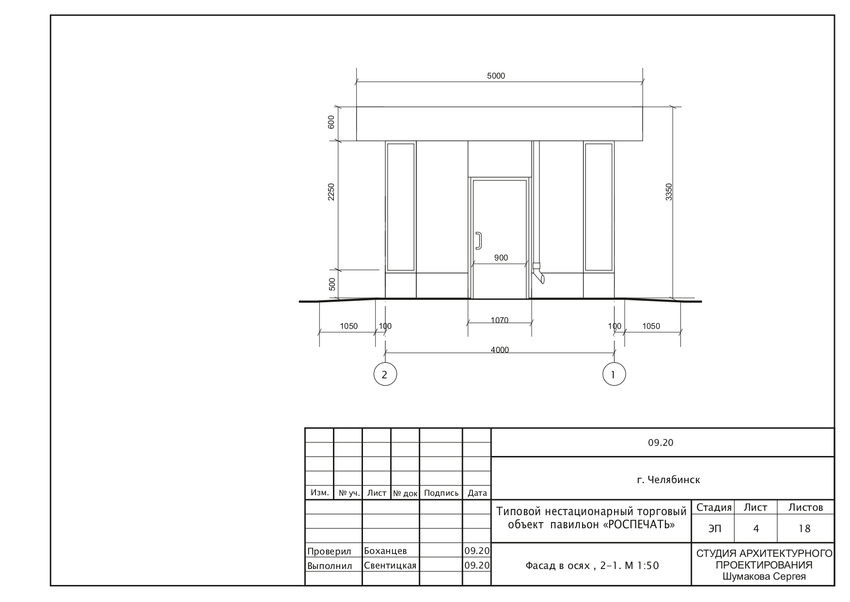
№ 7.3 Павильон по продаже печатной продукции (предельная площадь — 29,0 кв. м, общая площадь торгового павильона 22,0 кв. м), тип 3;

№ 7.4 Павильон по продаже печатной продукции (предельная площадь — 42,0 кв. м, общая площадь торгового павильона 32,0 кв. м), тип 4;

№ 7.5 Павильон по продаже печатной продукции (предельная площадь — 22,0 кв. м, общая площадь торгового павильона 14,5 кв. м), тип 5;

№ 7.6 Павильон по продаже печатной продукции (предельная площадь — 21,0 кв. м, общая площадь торгового павильона 13, кв. м), тип 6;

№ 7.7 Павильон по продаже печатной продукции (предельная площадь — 21,0 кв. м, общая площадь торгового павильона 17,36, кв. м), тип 7;

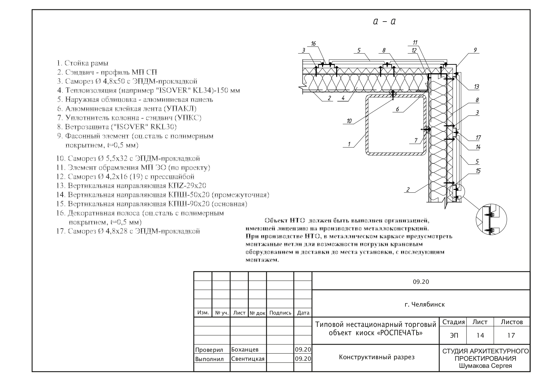
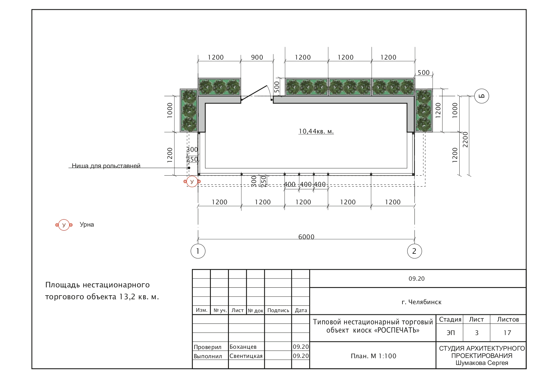
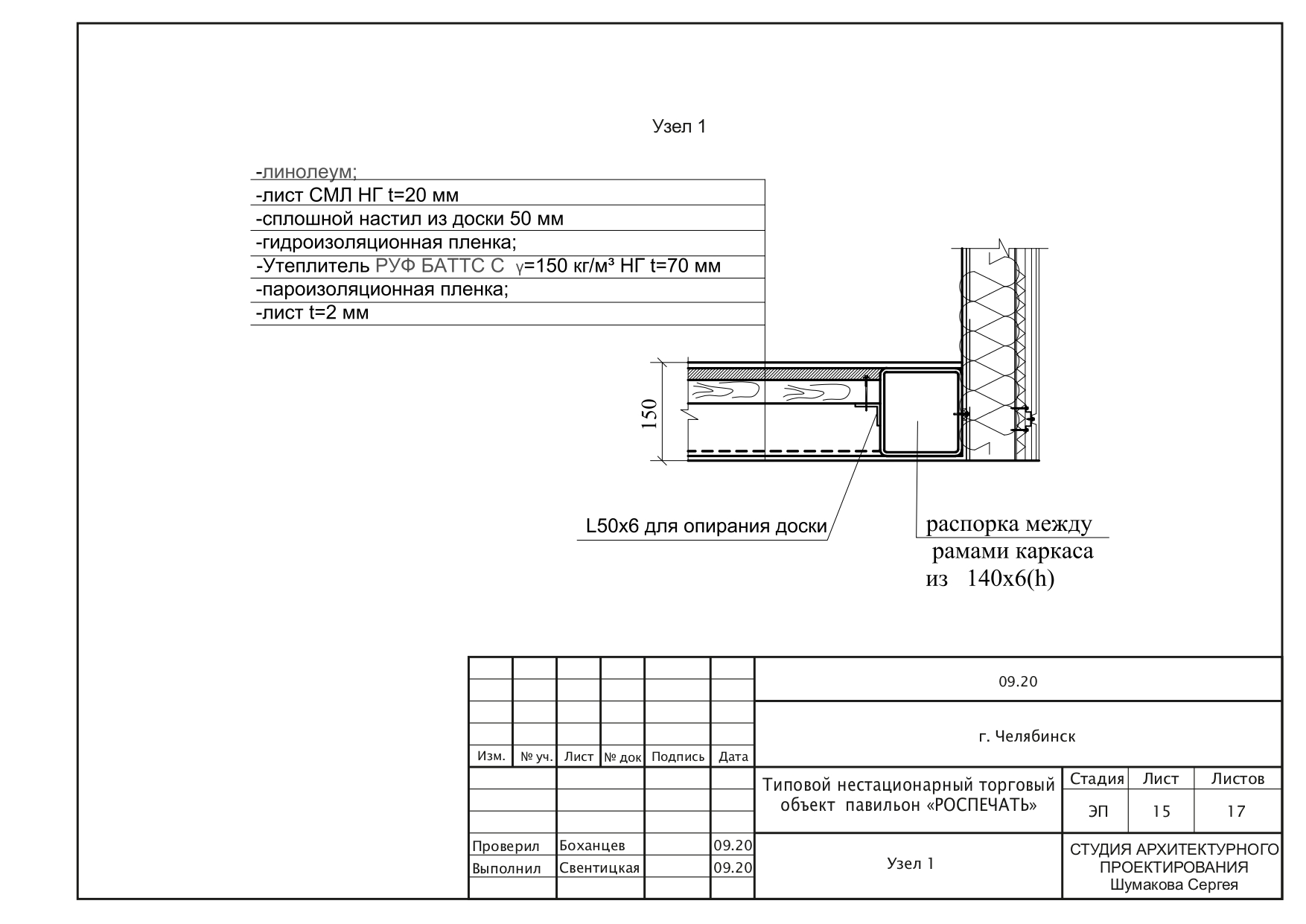
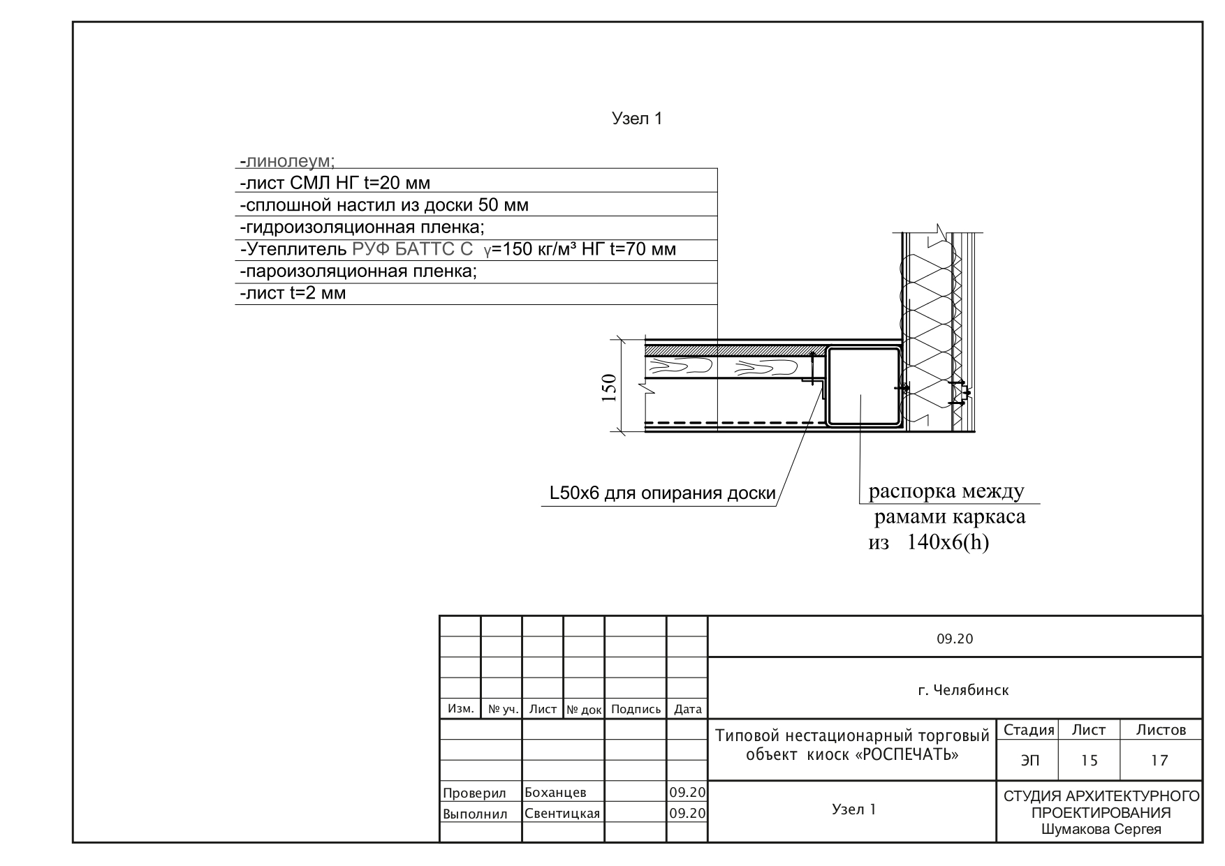
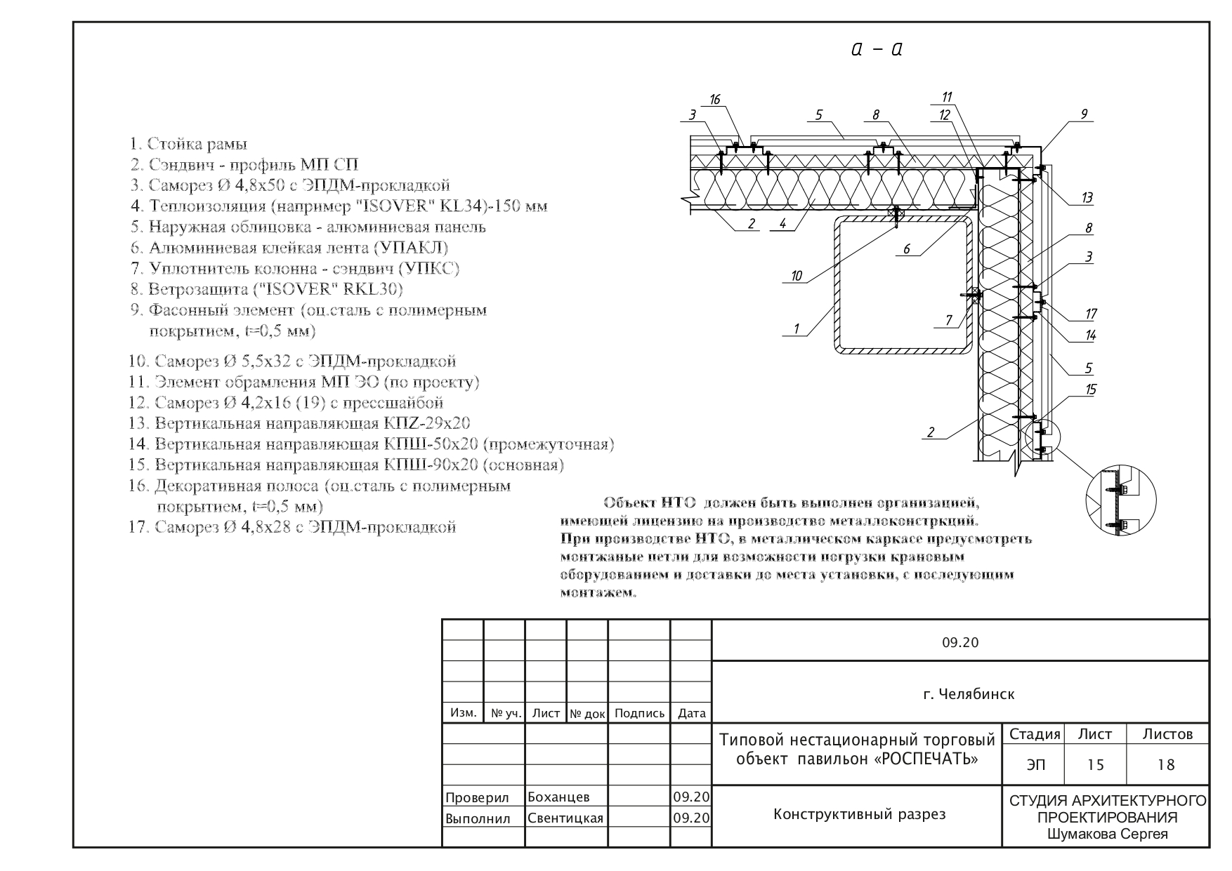
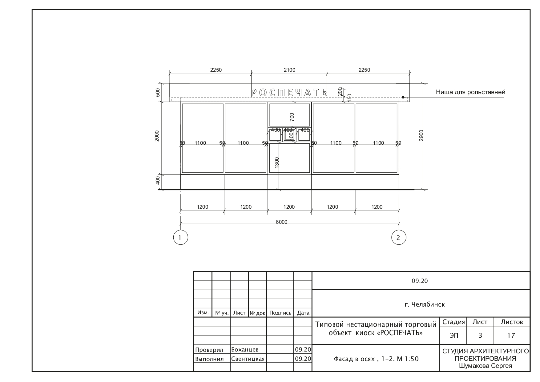
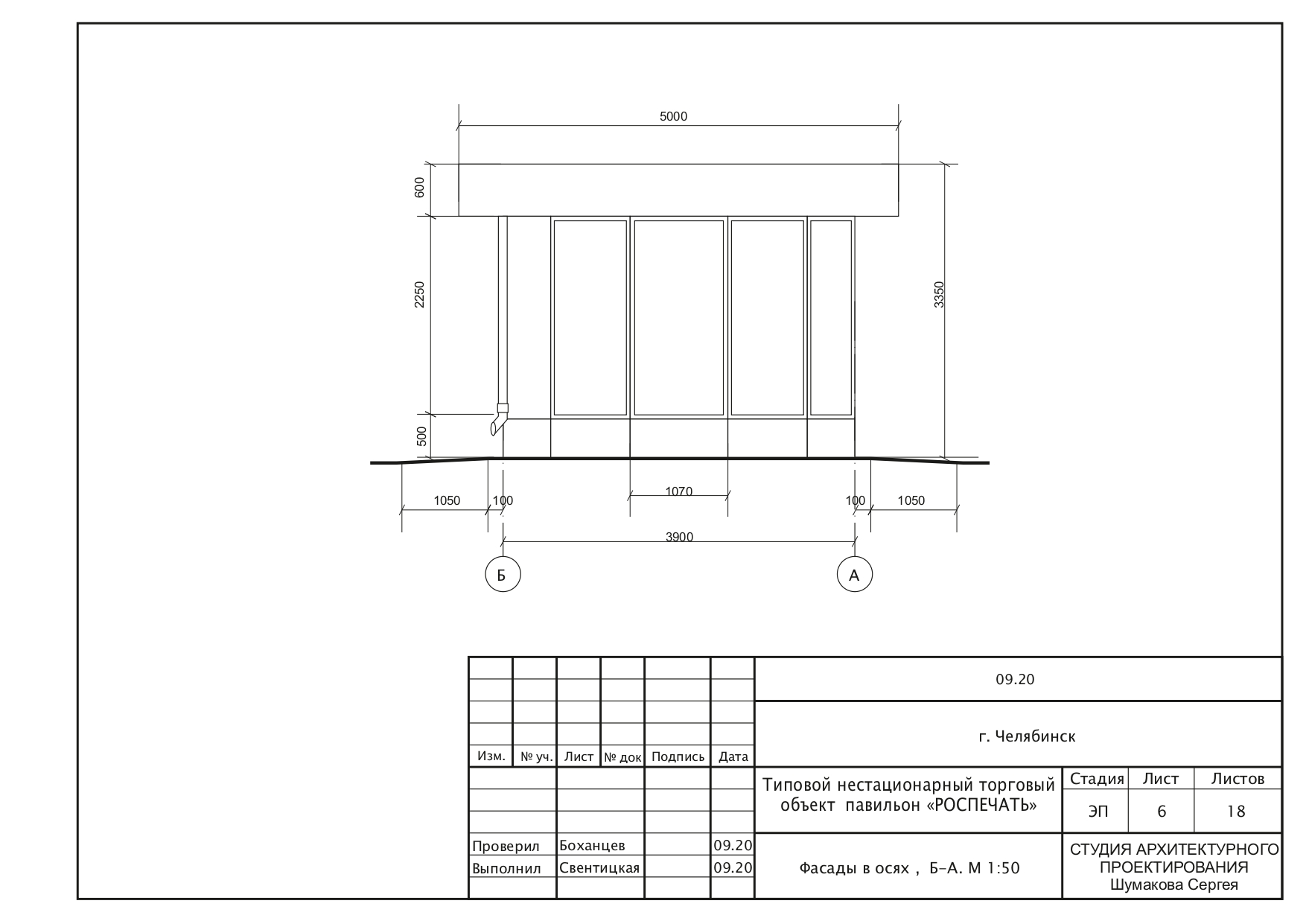
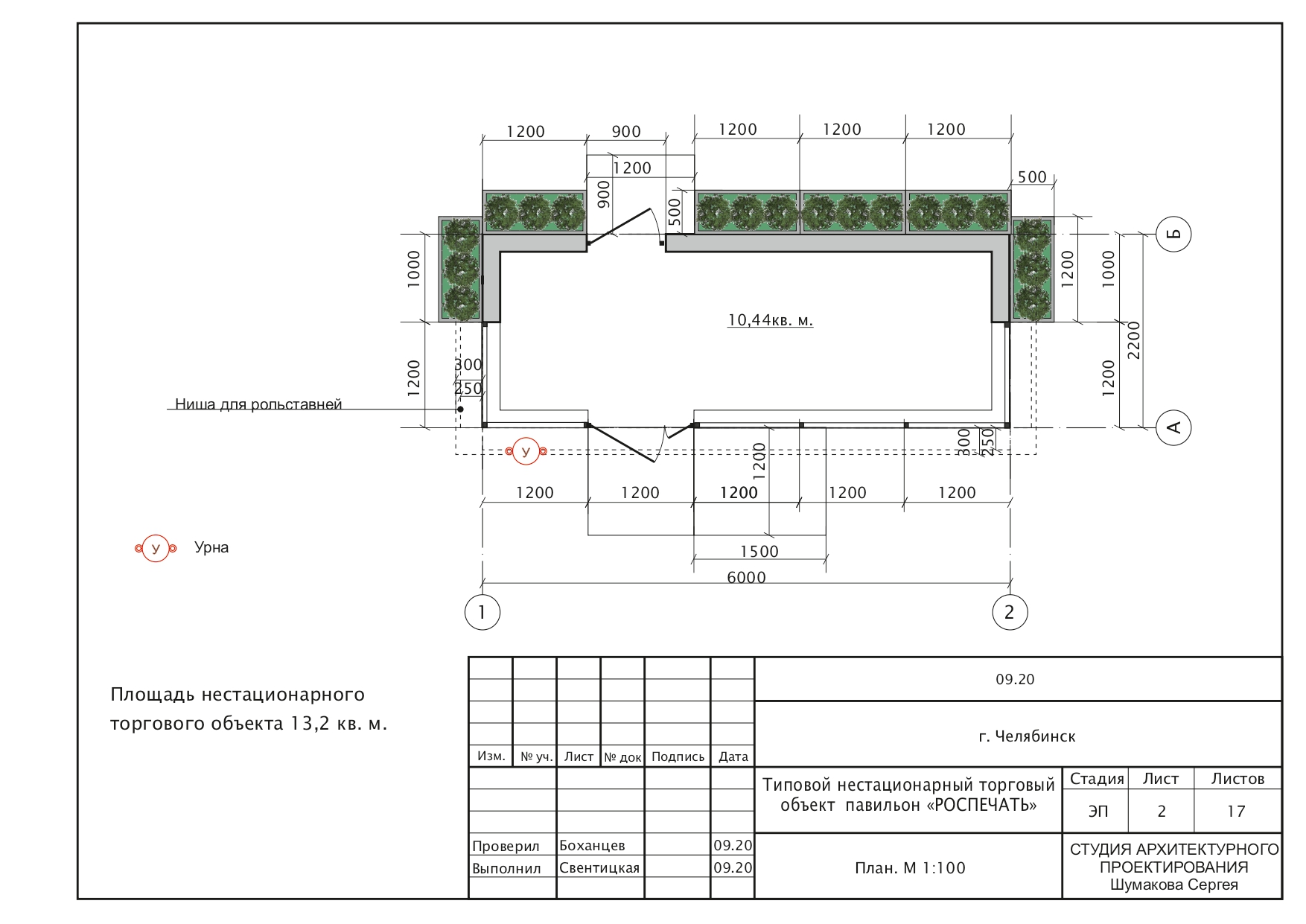
№ 7.8 Киоск по продаже печатной продукции (предельная площадь — 16,52 кв. м, общая площадь торгового павильона 10,44, кв. м), тип 8;

№ 7.10 Павильон по продаже печатной продукции (предельная площадь — 16,52 кв. м, общая площадь торгового павильона 10,44, кв. м), тип 10;

№ 7.11 Павильон по продаже печатной продукции (предельная площадь — 25,56 кв. м, общая площадь торгового павильона 22,20, кв. м), тип 11;

№ 7.12 Павильон по продаже печатной продукции (предельная площадь — 19,64 кв. м, общая площадь торгового павильона 11,30, кв. м), тип 12;