Администрация города Челябинска
Управление по архитектурно-градостроительному
проектированию города Челябинска
Начальник управления
Чернушкина Наталья Викторовна
Документация по планировке территорий: 2014 год
Советский район:
-
Постановление Главы города № 74-П от 06.06.2014 «Об утверждении документации по планировке территории в границах: ул.Блюхера, Новосельская, Базовая 2-я в Советском районе города Челябинска»
-
Документация по планировке территории в границах: ул.Блюхера, Новосельская, Базовая 2-я в Советском районе города Челябинска»
-
Постановление Главы города № 193-П от 11.11.2014 «Об утверждении документации по планировке территории транспортного узла Свердловского проспекта, улиц Воровского, Курчатова, Елькина, Тимирязева, Сони Кривой, Либнехта, Красной, Блюхера, Шаумяна, Загородной в Советском и Центральном районах города Челябинска»
-
Документация по планировке территории транспортного узла Свердловского проспекта, улиц Воровского, Курчатова, Елькина, Тимирязева, Сони Кривой, Либнехта, Красной, Блюхера, Шаумяна, Загородной в Советском и Центральном районах города Челябинска
-
Постановление Главы города № 211-П от 09.12.2014 «Об утверждении документации по планировке территории в границах: ул. Потребительская 2-я, Севанская, полоса отвода железной дороги Самара - Челябинск пассажирский - Курган, восточная граница земельного участка ОАО "Челябкоммерс", Потребительская 1-я, местный проезд в Советском районе города Челябинска»
-
Документация по планировке территории в границах: ул. Потребительская 2-я, Севанская, полоса отвода железной дороги Самара - Челябинск пассажирский - Курган, восточная граница земельного участка ОАО "Челябкоммерс", Потребительская 1-я, местный проезд в Советском районе города Челябинска
-
Постановление от 04.09.2014г №153-п «Об утверждении документации по планировке территории в границах: ул. Доватора, Железнодорожная, Низкая, Федорова в Советском районе города Челябинска»
-
Документация по планировке территории в границах: ул. Доватора, Железнодорожная, Низкая, Федорова в Советском районе города Челябинска»
-
Постановление от 25.06.2014г №89-п «Об утверждении документации по планировке территории в границах: полоса отвода ОАО "РЖД", железнодорожная ветка Группы "Джей Эф Си", отвод Яна Н.В. по Троицкому тракту в Советском районе города Челябинска»
-
Документация по планировке территории в границах: полоса отвода ОАО "РЖД", железнодорожная ветка Группы "Джей Эф Си", отвод Яна Н.В. по Троицкому тракту в Советском районе города Челябинска»
-
Постановление от 26.08.2014г №149-п «Об утверждении документации по планировке территории в границах: ул.Блюхера, Воровского, Тарасова в Советском районе города Челябинска»
-
Документация по планировке территории в границах: ул.Блюхера, Воровского, Тарасова в Советском районе города Челябинска»
Центральный район:
-
Постановление от 24.01.2014 №13-п «Об утверждении документации по планировке территории в границах: ул.Труда,ул.Энгельса,река Миасс,ул.Косарева (проект.)(1-я очередь микрорайона «Западный луч») в Центральном районе города Челябинска»
-
Документация по планировке территории в границах: ул.Труда,ул.Энгельса,река Миасс,ул.Косарева (проект.)(1-я очередь микрорайона «Западный луч») в Центральном районе города Челябинска
-
Постановление Главы города № 179-П от 09.10.2014 «Об утверждении документации по планировке территории в границах: ул.Свободы, Труда, Красноармейская, Маркса в Центральном районе города Челябинска»
-
Документация по планировке территории в границах: ул.Свободы, Труда, Красноармейская, Маркса в Центральном районе города Челябинска
-
Постановление Главы города № 192-П от 11.11.2014 «Об утверждении документации по планировке транспортной развязки на пересечении улиц Худякова и Университетская Набережная в Центральном районе города Челябинска»
-
Документация по планировке транспортной развязки на пересечении улиц Худякова и Университетская Набережная в Центральном районе города Челябинска ч.1
-
Документация по планировке транспортной развязки на пересечении улиц Худякова и Университетская Набережная в Центральном районе города Челябинска ч.2
-
Документация по планировке транспортной развязки на пересечении улиц Худякова и Университетская Набережная в Центральном районе города Челябинска ч.3
-
Постановление Главы города № 113-П от 17.07.2014 «Об утверждении документации по планировке территории в границах: ул.Труда, Российская, Лобкова, ГСК №6 в Центральном районе города Челябинска»
-
Документация по планировке территории в границах: ул.Труда, Российская, Лобкова, ГСК №6 в Центральном районе города Челябинска
Тракторозаводский район:
-
Постановление от 29.01.2014г №12-п «Об утверждении документации по планировке территории в границах: ул. Трашутина, ул. Черничная, озеро Первое, западная граница садоводческого некоммерческого товарищества «Тракторосад №3» в Тракторозаводском районе города Челябинска»
-
Документация по планировке территории в границах: ул. Трашутина, ул. Черничная, озеро Первое, западная граница садоводческого некоммерческого товарищества «Тракторосад №3» в Тракторозаводском районе города Челябинска»
-
Постановление Главы города № 208-П от 09.12.2014 «Об утверждении документации по планировке территории микрорайона №48 в границах: ул.Комарова, Октябрьская, Танкистов, Завалишина в Тракторозаводском районе города Челябинска»
-
Документация по планировке территории микрорайона №48 в границах: ул.Комарова, Октябрьская, Танкистов, Завалишина в Тракторозаводском районе города Челябинска
Ленинский район:
-
Постановление от 03.02.2014г №19-п «Об утверждении документации по планировке территории в границах: ул. Чистопольская, ул. Новороссийская, территория промплощадки ГП «Сигнал», западная граница ГСК №320 и ГСК №311 в Ленинском районе города Челябинска»
-
Документация по планировке территории в границах: ул. Чистопольская, ул. Новороссийская, территория промплощадки ГП «Сигнал», западная граница ГСК №320 и ГСК №311 в Ленинском районе города Челябинска»
Металлургический район:
-
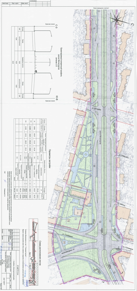
Постановление Главы города № 176-П от 08.10.2014 «Об утверждении документации по планировке территории шоссе Металлургов в границах: ул.Сталеваров, Мира в Металлургическом районе города Челябинска»
-
Документация по планировке территории шоссе Металлургов в границах: ул.Сталеваров, Мира в Металлургическом районе города Челябинска ч.1
-
Документация по планировке территории шоссе Металлургов в границах: ул.Сталеваров, Мира в Металлургическом районе города Челябинска ч.2
-
Документация по планировке территории шоссе Металлургов в границах: ул.Сталеваров, Мира в Металлургическом районе города Челябинска ч.3
-
Постановление Главы города № 177-П от 08.10.2014 «Об утверждении документации по планировке территории,ограниченной улицей Румянцева и Каштакского бора в Металлургическом районе города Челябинска»
-
Документация по планировке территории,ограниченной улицей Румянцева и Каштакского бора в Металлургическом районе города Челябинска
-
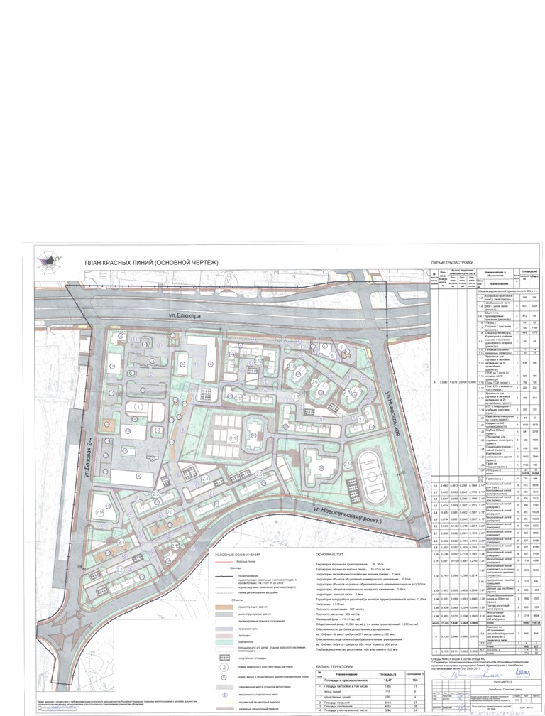
Постановление Главы города № 135-П от 11.08.2014 «Об утверждении документации по планировке территории в границах: ул.Блюхера, Новосельская, Базовая 2-я в Советском районе города Челябинска»
-
Документация по планировке территории в границах: ул.Блюхера, Новосельская, Базовая 2-я в Советском районе города Челябинска
-
Постановление Главы города № 68-П от 02.06.2014 «Об утверждении документации по планировке территории в границах: ул.Богдана Хмельницкого, Румянцева, Мира, Липецкая в Металлургическом районе города Челябинска»
-
Документация по планировке территории в границах: ул.Богдана Хмельницкого, Румянцева, Мира, Липецкая в Металлургическом районе города Челябинска»
-
Постановление Главы города № 73-П от 06.06.2014 «Об утверждении документации по планировке территории в границах: ул.Мраморная, Граница ОАО "ЧМК", Северная граница ОАО "Челябинский электродный завод", Западная граница Челябинского завода оргстекла в Металлургическом районе города Челябинска»
-
Документация по планировке территории в границах: ул.Мраморная, Граница ОАО "ЧМК", Северная граница ОАО "Челябинский электродный завод", Западная граница Челябинского завода оргстекла в Металлургическом районе города Челябинска»
Калининский район:
-
Постановление Главы города № 210-П от 09.12.2014 «Об утверждении документации по планировке территории микрорайона №3 по улице Братьев Кашириных в Калининском районе города Челябинска»
-
Документация по планировке территории микрорайона №3 по улице Братьев Кашириных в Калининском районе города Челябинска
-
Постановление Главы города № 184-П от 13.10.2014 «Об утверждении документации по планировке территории в границах: Комсомольский проспект, ул. Чичерина, Проспект Победы, ул. Городская в Курчатовском и Калининском районах города Челябинска»
-
Документация по планировке территории в границах: Комсомольский проспект, ул. Чичерина, Проспект Победы, ул. Городская в Курчатовском и Калининском районах города Челябинска
-
Постановление Главы города № 145-П от 25.08.2014 «Об утверждении документации по планировке территории в границах: ул.Механическая, Героев Танкограда, Ферросплавная, Сормовская 2-ая в Калининском районе города Челябинска»
-
Документация по планировке территории в границах: ул.Механическая, Героев Танкограда, Ферросплавная, Сормовская 2-ая в Калининском районе города Челябинска
-
Постановление Главы города № 122-П от 28.07.2014 «Об утверждении документации по планировке территории микрорайонов №29, 30, 33 в границах: проспект Героя России Родионова Е.Н., ул. 250-летия Челябинска, Салавата Юлаева, Братьев Кашириных, Академика Королева в Калининском и Центральном районах города Челябинска»
-
Документация по планировке территории микрорайонов №29, 30, 33 в границах: проспект Героя России Родионова Е.Н., ул. 250-летия Челябинска, Салавата Юлаева, Братьев Кашириных, Академика Королева в Калининском и Центральном районах города Челябинска
Курчатовский район:
-
Постановление Главы города № 215-П от 10.12.2014 «Об утверждении документации по планировке территории микрорайона №13 жилого района №14 в Курчатовском районе города Челябинска»
-
Документация по планировке территории икрорайона № 13 жилого района № 14 в Курчатовском районе города Челябинска
-
Постановление Главы города № 198-П от 18.11.2014 «Об утверждении документации по планировке территории в границах: Свердловский тракт, ул.Черкасская, река Миасс, юго-восточная граница земельного участка ОАО "Победа" в Курчатовском районе города Челябинска»
-
Документация по планировке территории в границах: Свердловский тракт, ул.Черкасская, река Миасс, юго-восточная граница земельного участка ОАО "Победа" в Курчатовском районе города Челябинска
-
Постановление Главы города № 199-П от 19.11.2014 «Об утверждении документации по планировке территории в границах: ул.Куйбышева, Мастеровая, Автодорожная, западная граница филиала "Челябинский электровозоремонтный завод" открытого акционерного общества "Российские железные дороги" в Курчатовском районе города Челябинска»
-
Документация по планировке территории в границах: ул.Куйбышева, Мастеровая, Автодорожная, западная граница филиала "Челябинский электровозоремонтный завод" открытого акционерного общества "Российские железные дороги" в Курчатовском районе города Челябинска
-
Постановление Главы города № 121-П от 28.07.2014 «Об утверждении документации по планировке территории микрорайона №18 в границах: ул.Чичерина, Комсомольский проспект, ул. Полянка, Салавата Юлаева в Курчатовском районе города Челябинска»
-
Документация по планировке территории микрорайона №18 в границах: ул.Чичерина, Комсомольский проспект, ул. Полянка, Салавата Юлаева в Курчатовском районе города Челябинска
-
Документация по планировке территории микрорайона №18 в границах: ул.Чичерина, Комсомольский проспект, ул. Полянка, Салавата Юлаева в Курчатовском районе города Челябинска
-
Документация по планировке территории микрорайона №18 в границах: ул.Чичерина, Комсомольский проспект, ул. Полянка, Салавата Юлаева в Курчатовском районе города Челябинска
-
Документация по планировке территории микрорайона №18 в границах: ул.Чичерина, Комсомольский проспект, ул. Полянка, Салавата Юлаева в Курчатовском районе города Челябинска
-
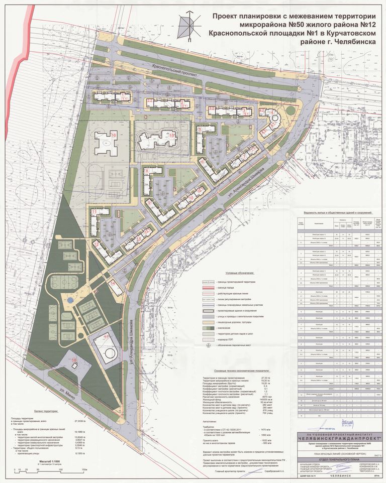
Постановление Главы города № 123-П от 30.07.2014 «Об утверждении документации по планировке территории микрорайона №50 жилого района №12 Краснопольской площадки №1 в Курчатовском районе города Челябинска»
-
Документация по планировке территории микрорайона № 50 жилого района №12 Краснопольской площадки №1 в Курчатовском районе города Челябинска







