Администрация города Челябинска
Управление по архитектурно-градостроительному
проектированию города Челябинска
Начальник управления,
главного архитектора
Крутолапов Павел Дмитриевич
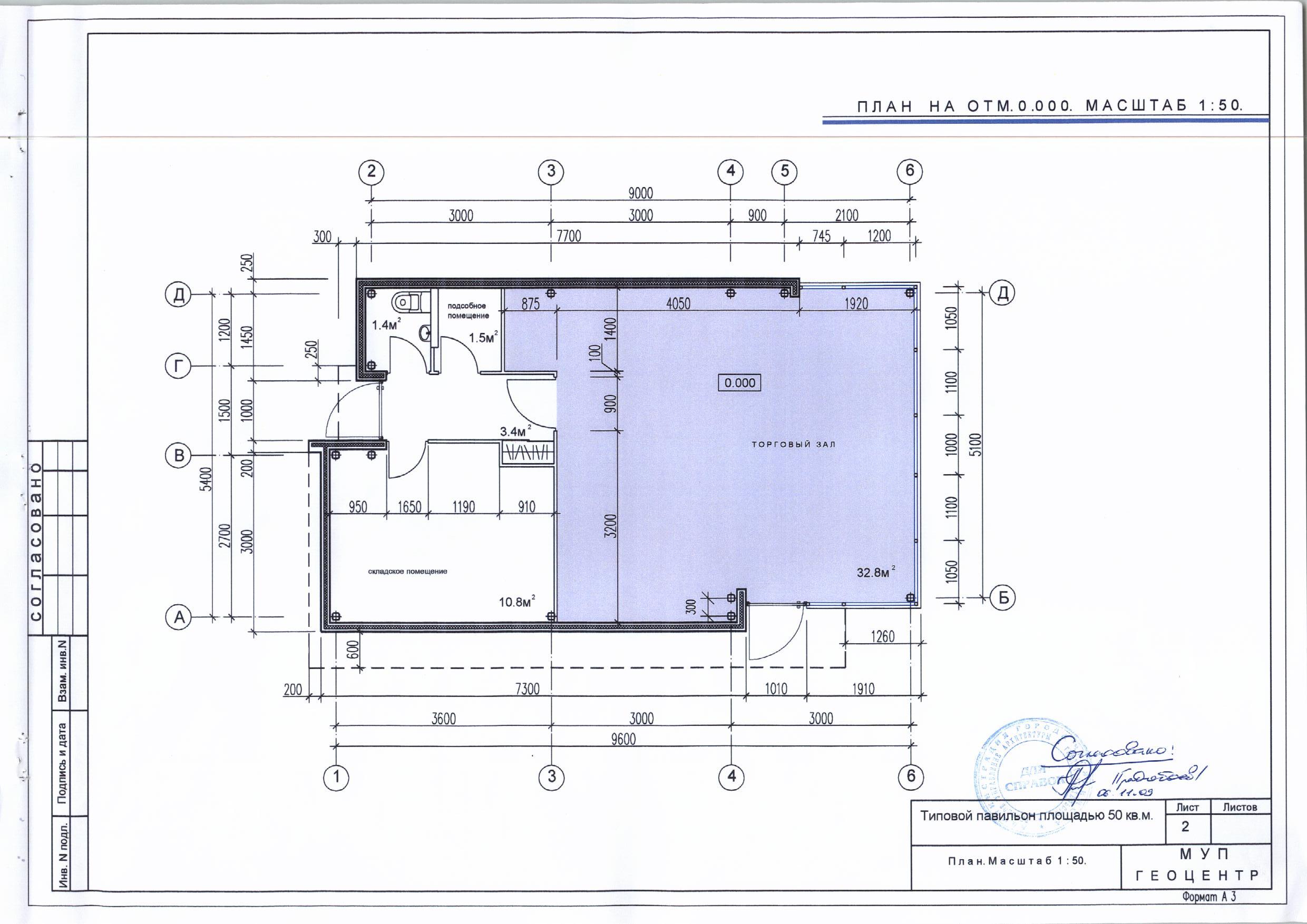
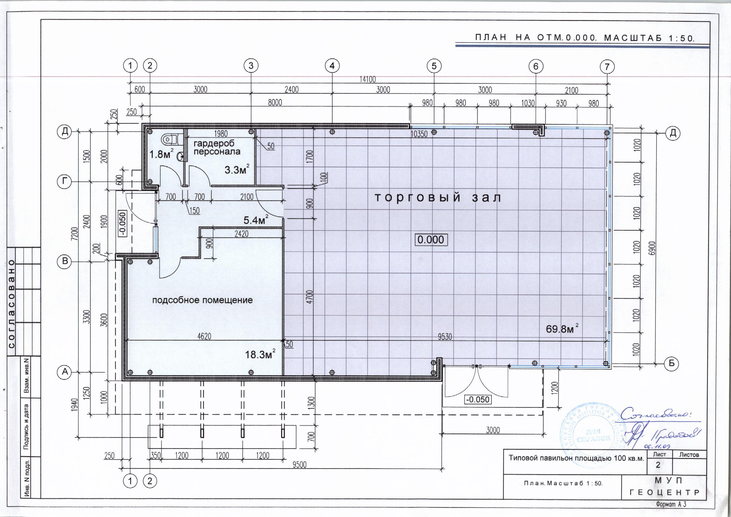
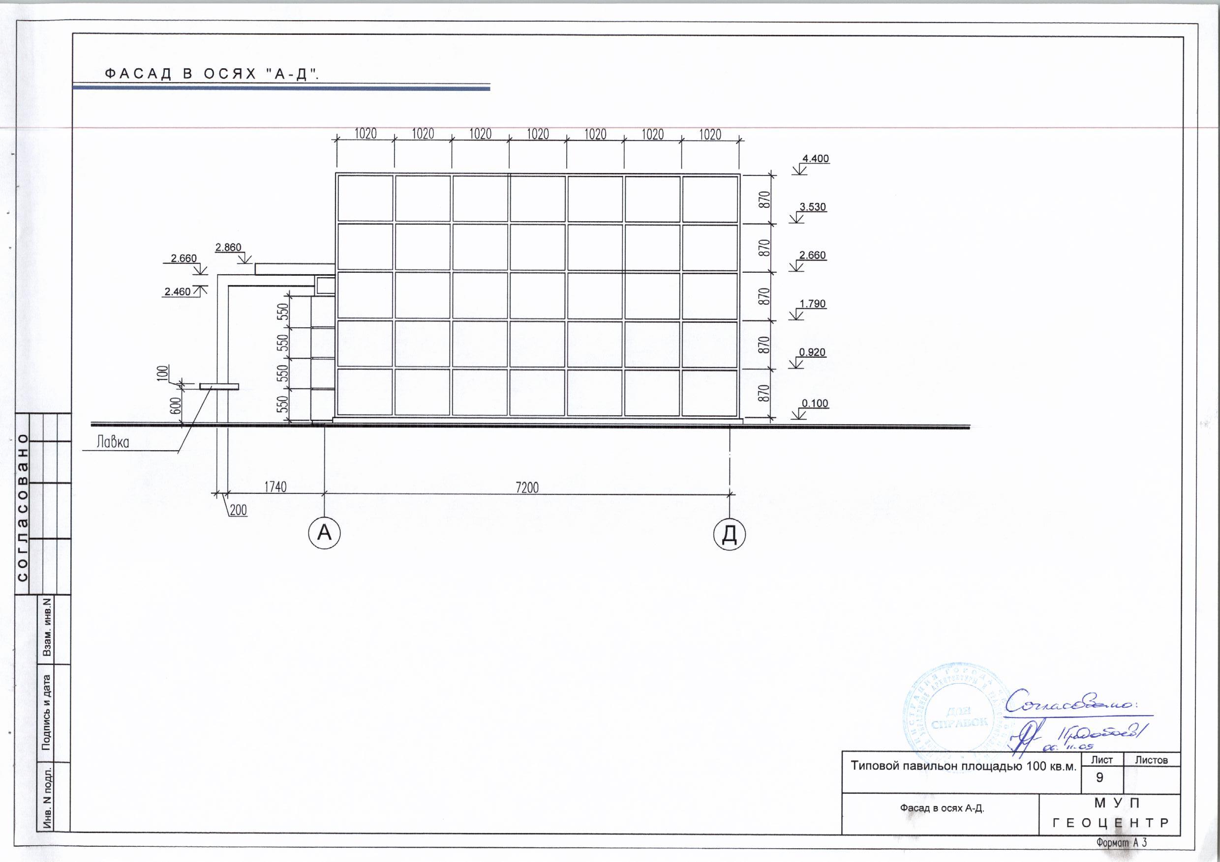
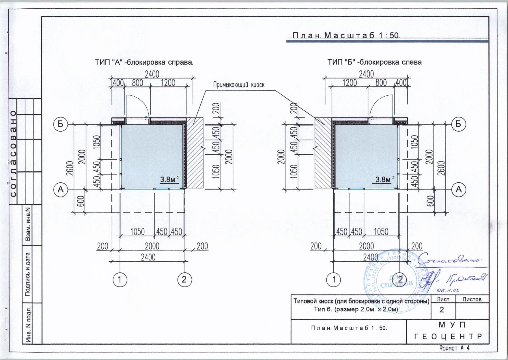
Типовые эскизные проекты временных нестационарных объектов на территории города Челябинска, действовавшие до 01.07.2018.
Нормативная база:
- Решение Челябинской городской Думы от 25.06.2013 № 43/25 «Об утверждении Порядка оформления документов для предоставления земельных участков для размещения (установки) и эксплуатации временных нестационарных объектов на территории города Челябинска», – скачать;
- Постановление Правительства Челябинской области от 16.11.2010 № 261-П «О Порядке разработки и утверждения органами местного самоуправления схемы размещения нестационарных торговых объектов на земельных участках, в зданиях, строениях, сооружениях, находящихся в муниципальной собственности»;
- Постановление Администрации города Челябинска от 22.06.2012 № 114-п «О внесении изменений и дополнений в постановление Администрации города Челябинска от 13.01.2012 № 2-п»;
- Постановление Администрации города Челябинска от 13.01.2012 № 2-п «Об утверждении Схемы размещения нестационарных торговых объектов на территории города Челябинска».

















































































































































