Администрация города Челябинска
Управление по архитектурно-градостроительному
проектированию города Челябинска
Начальник управления
Чернушкина Наталья Викторовна
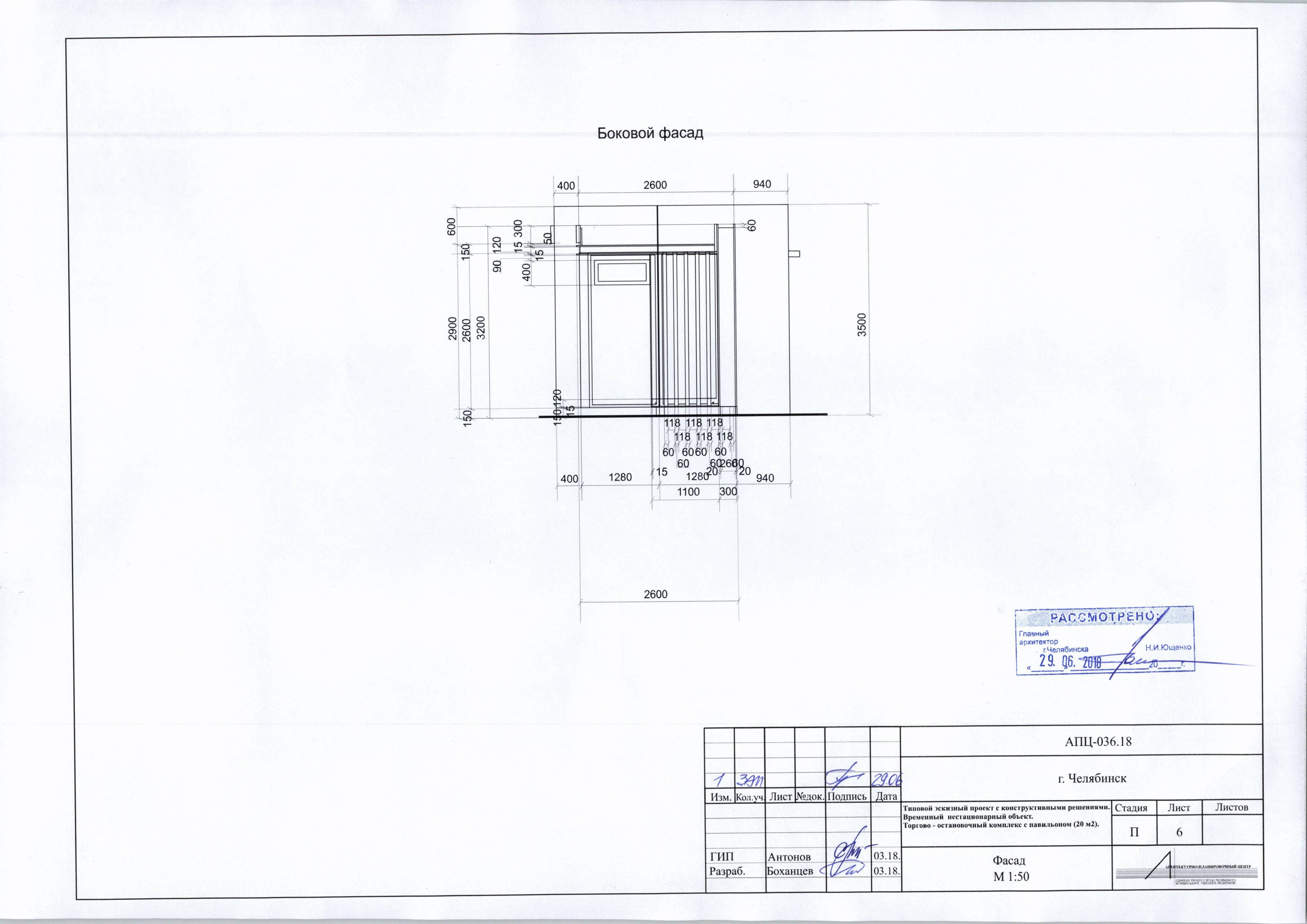
№ 1.1 Торгово–остановочный комплекс (общая площадь торгового павильона 20 кв. м, площадь застройки с учетом площади остановочного навеса 50,77 кв. м)
(действует с 01.07.2018)
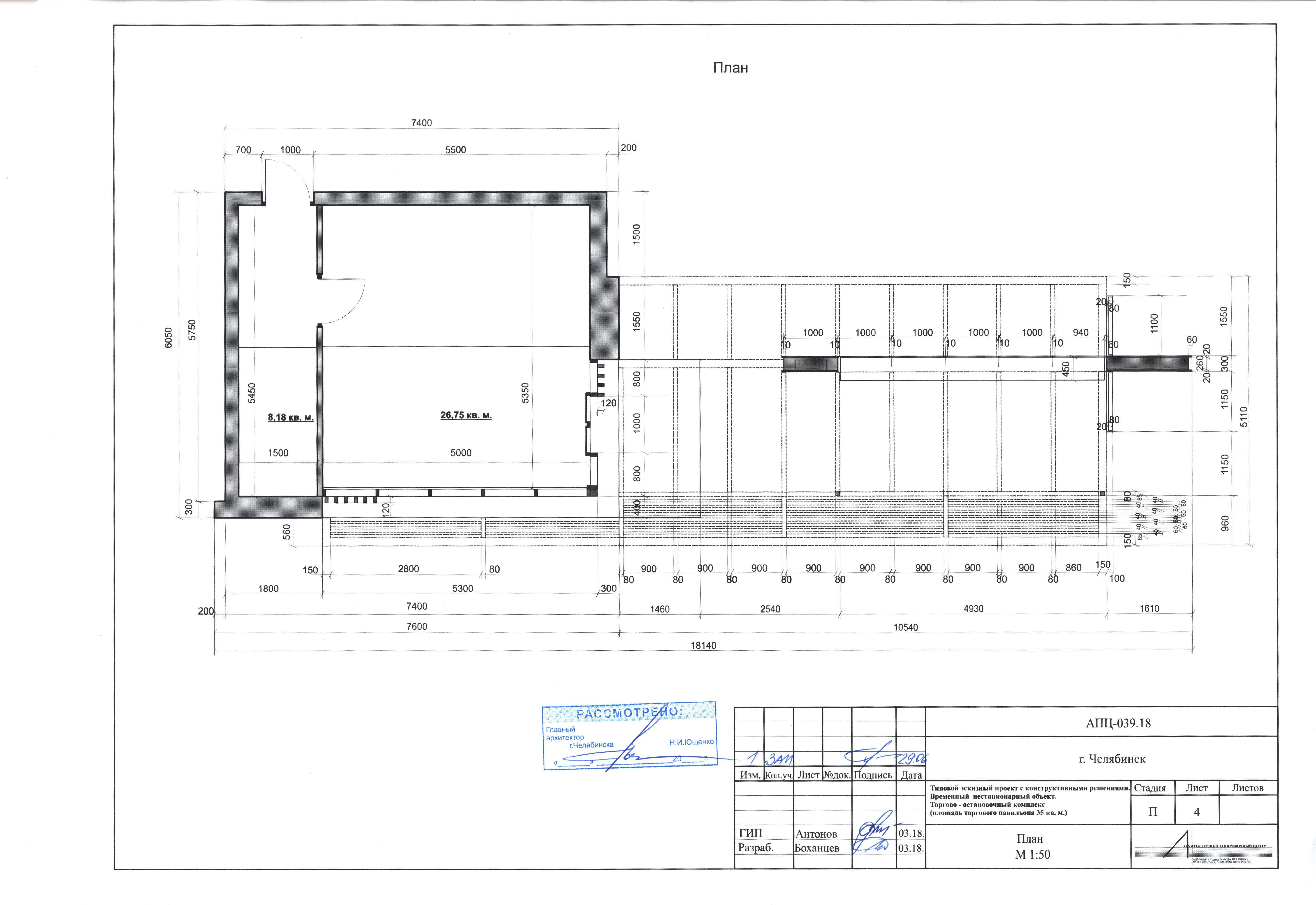
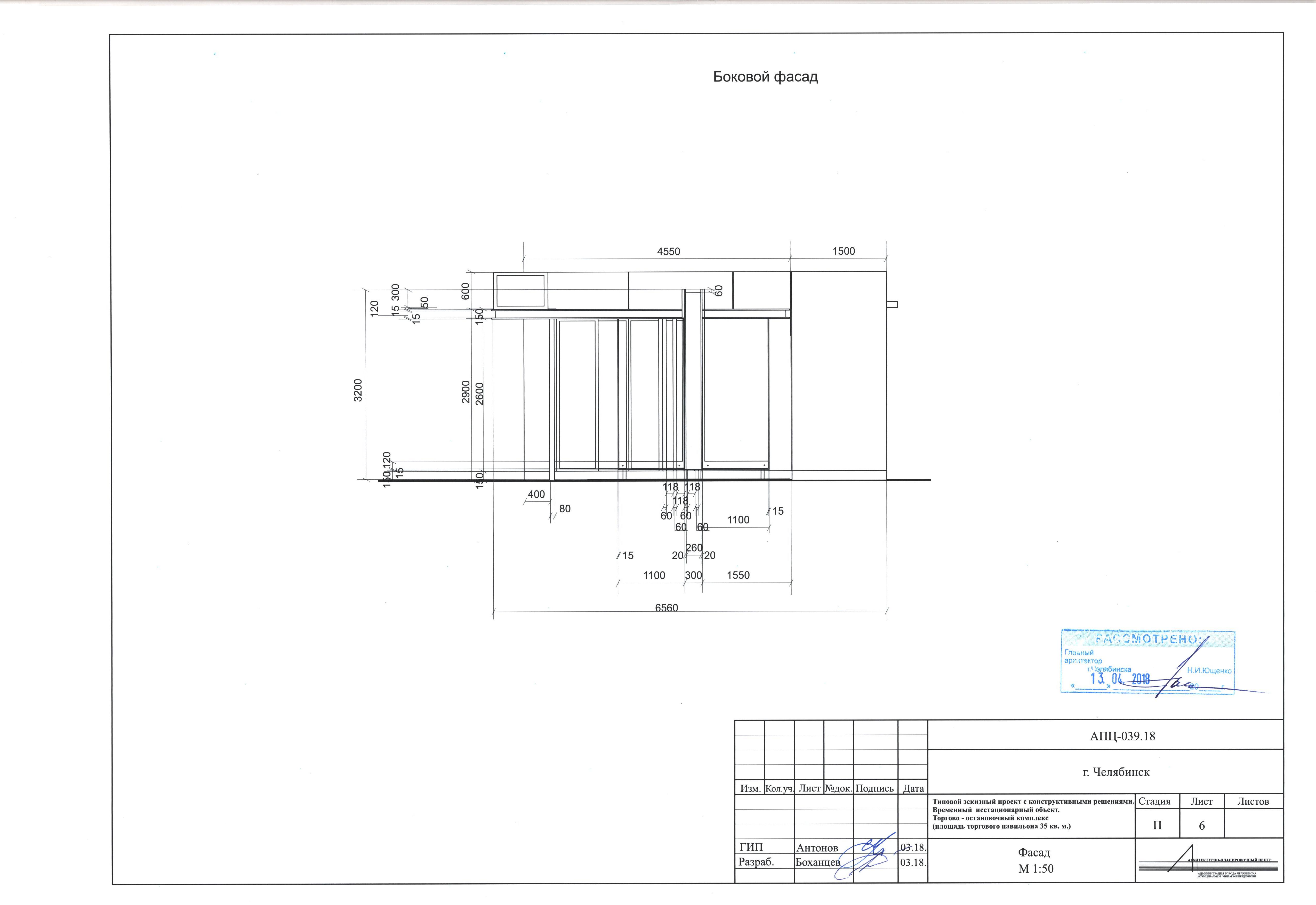
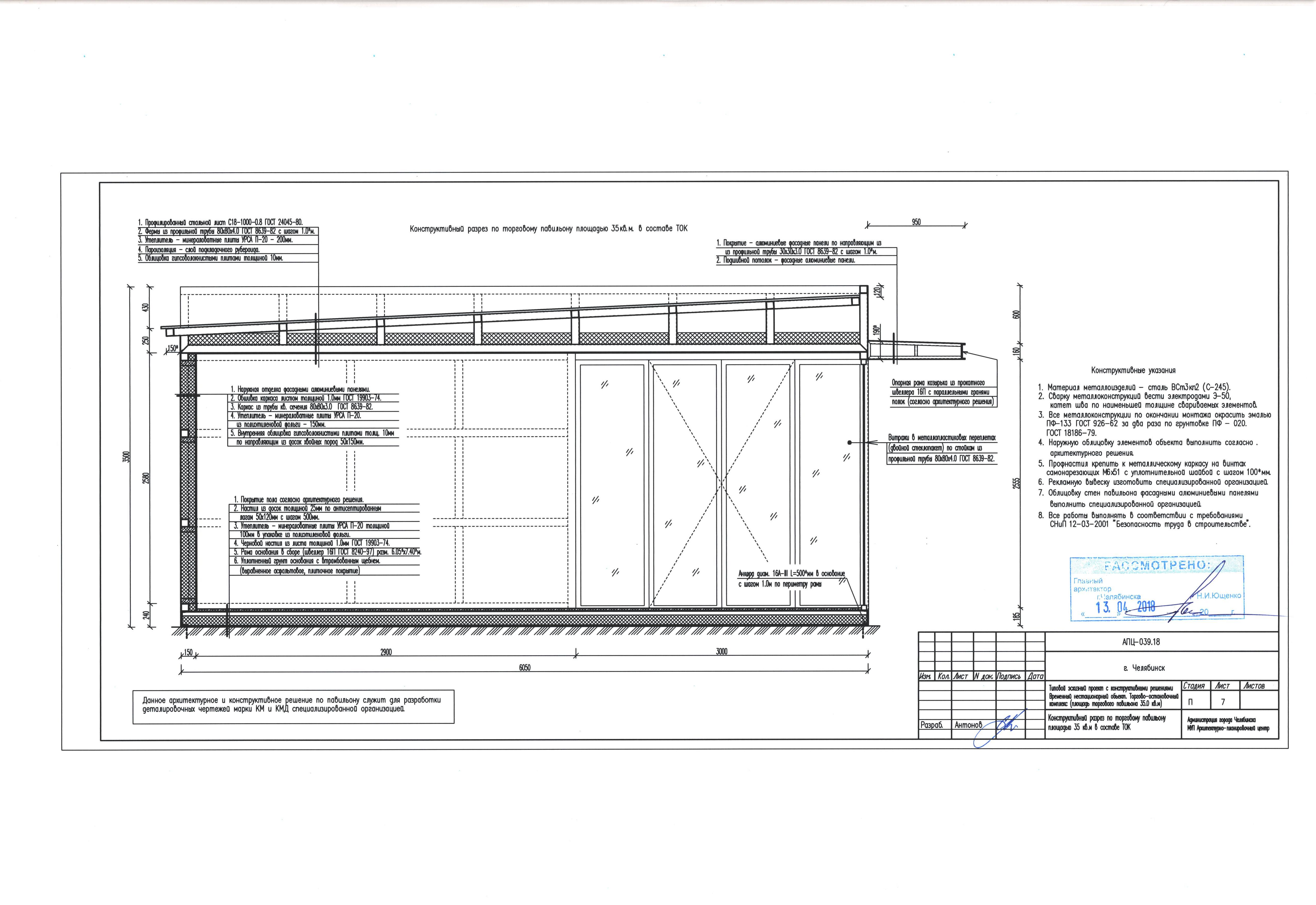
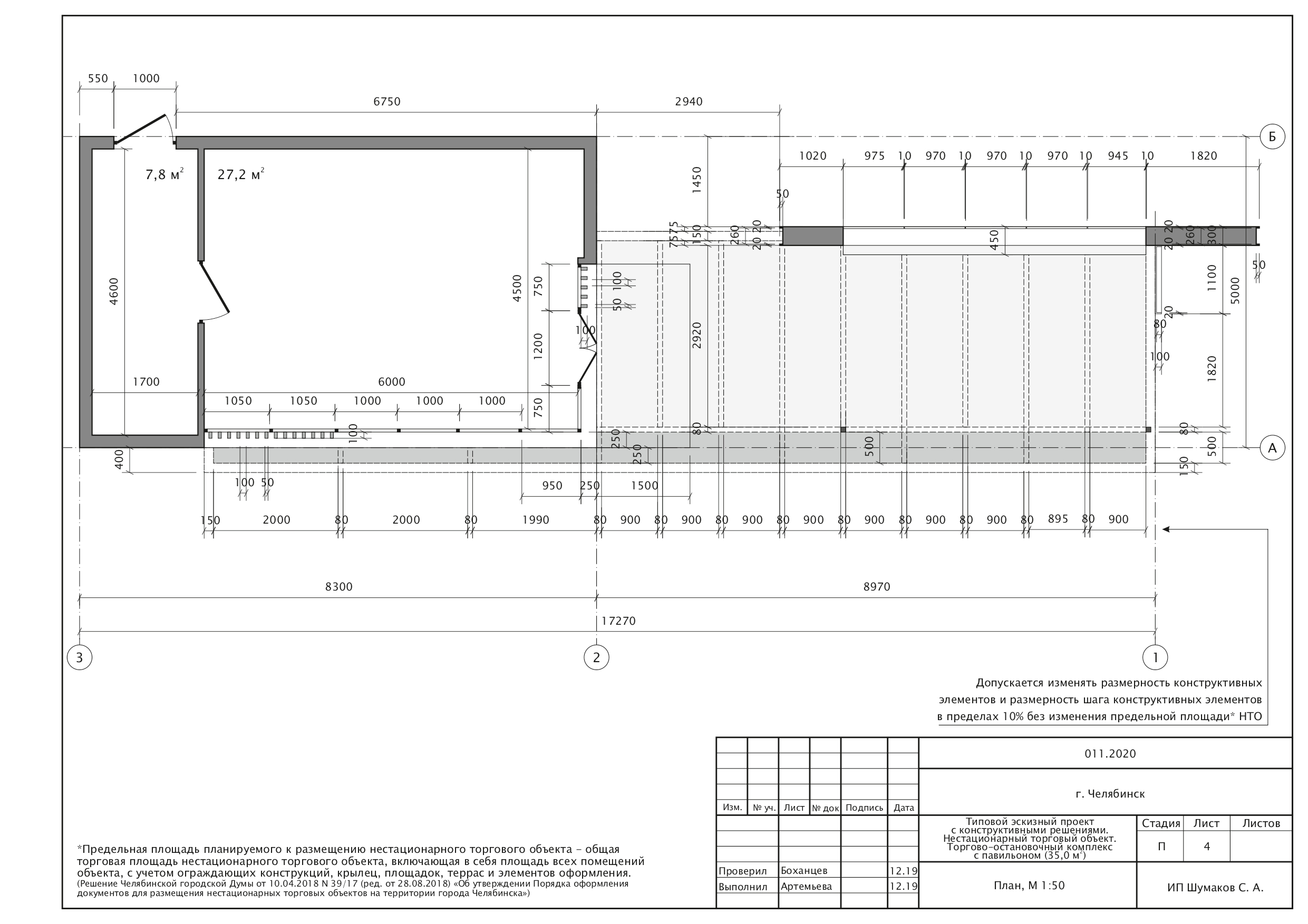
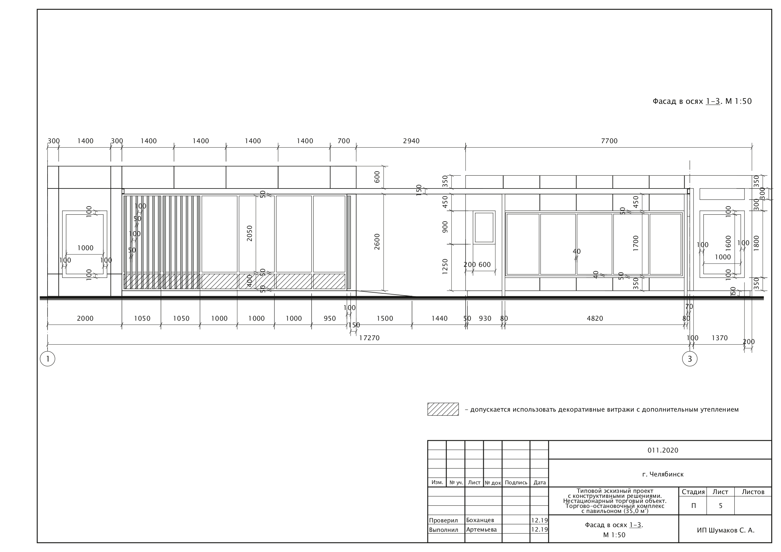
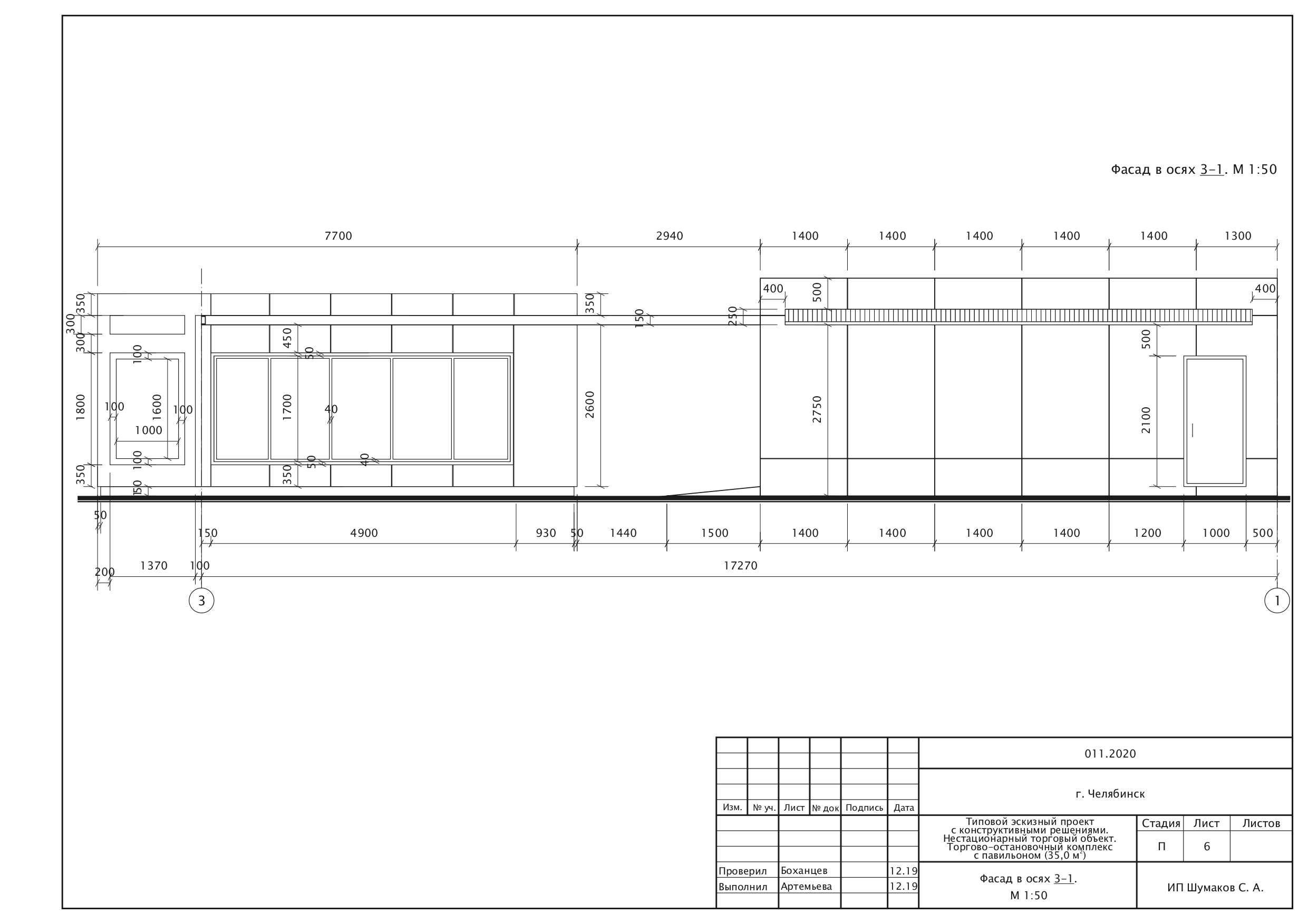
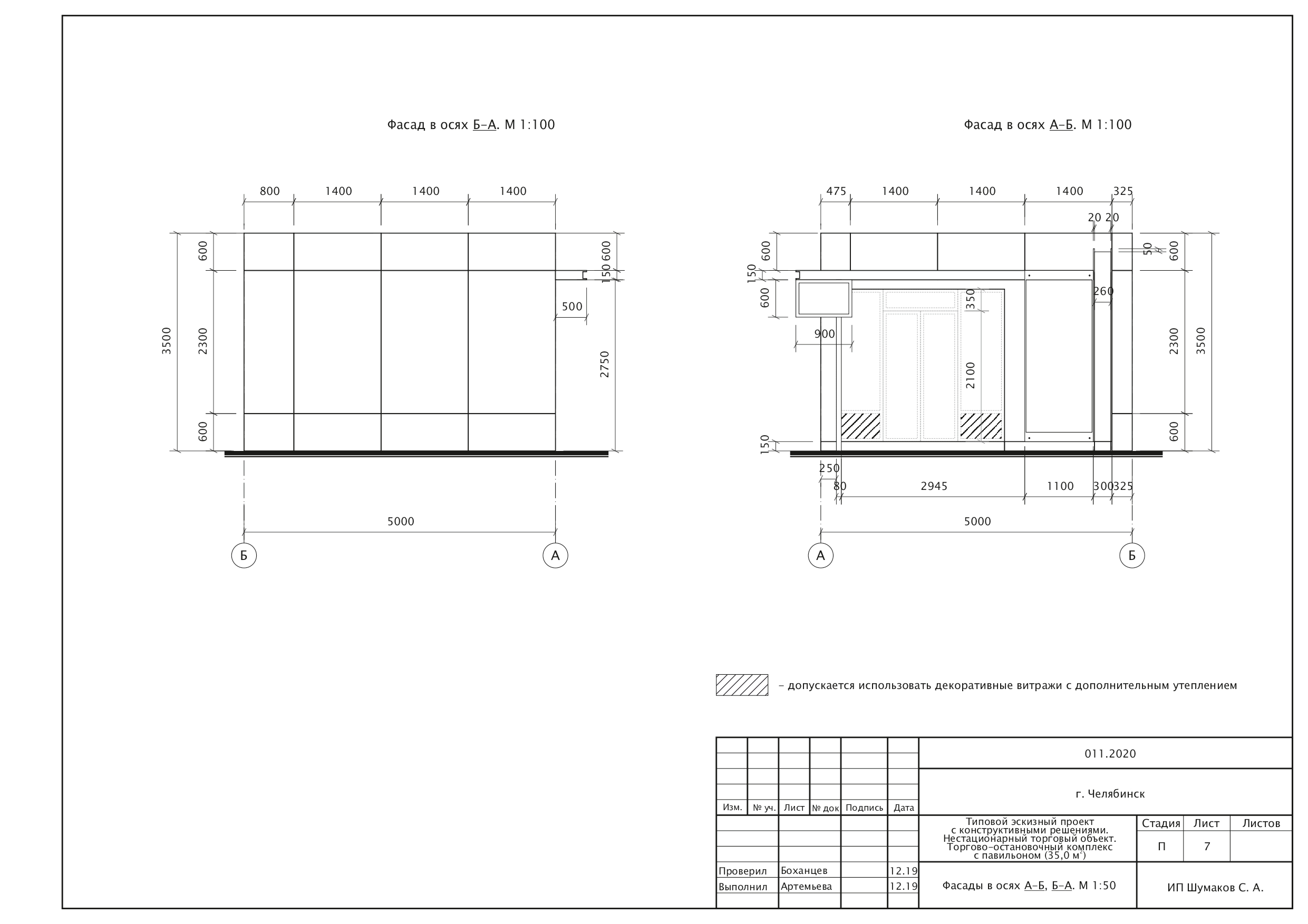
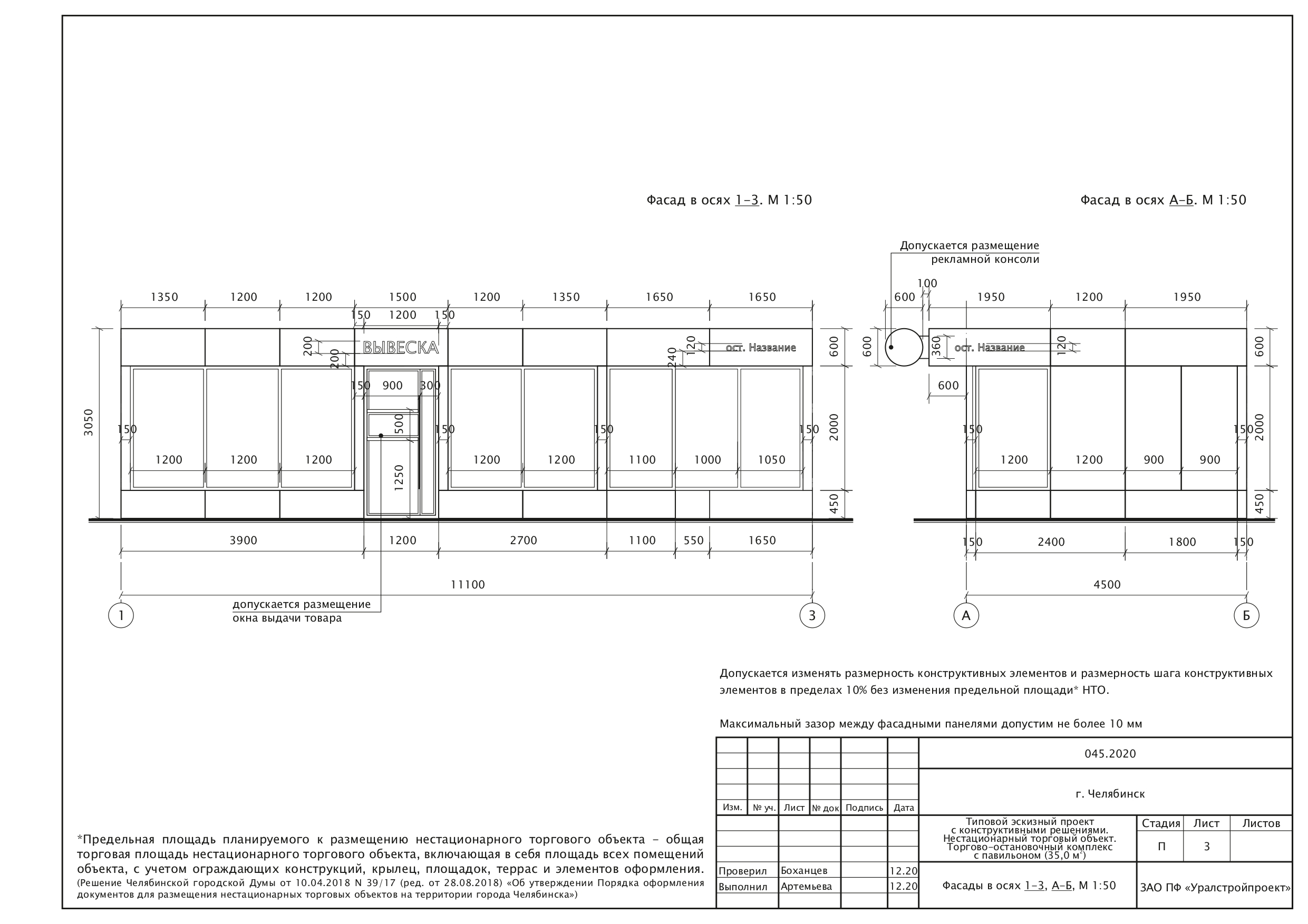
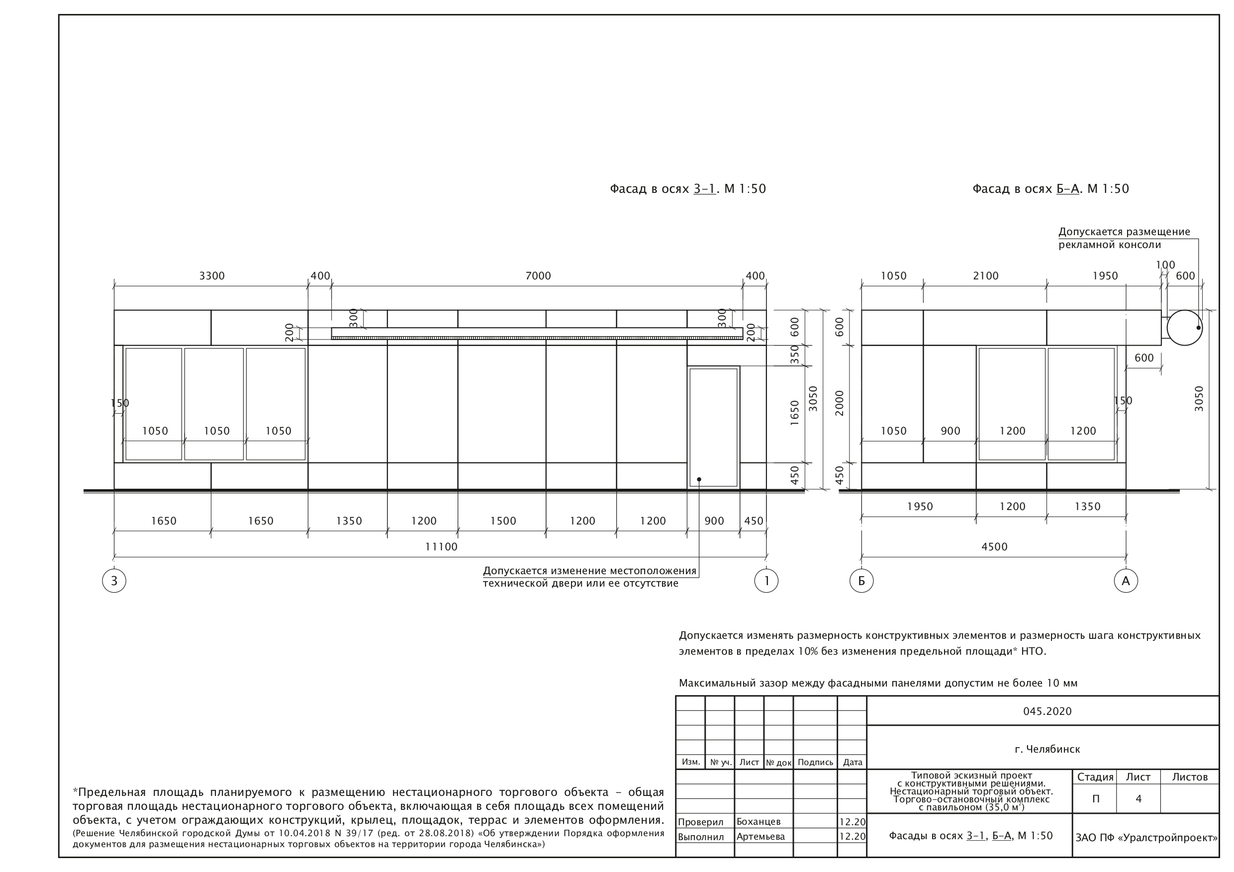
№ 1.2 Торгово–остановочный комплекс (общая площадь торгового павильона 35 кв. м, площадь застройки с учетом площади остановочного навеса 93,78 кв. м)
(действует с 01.07.2018)
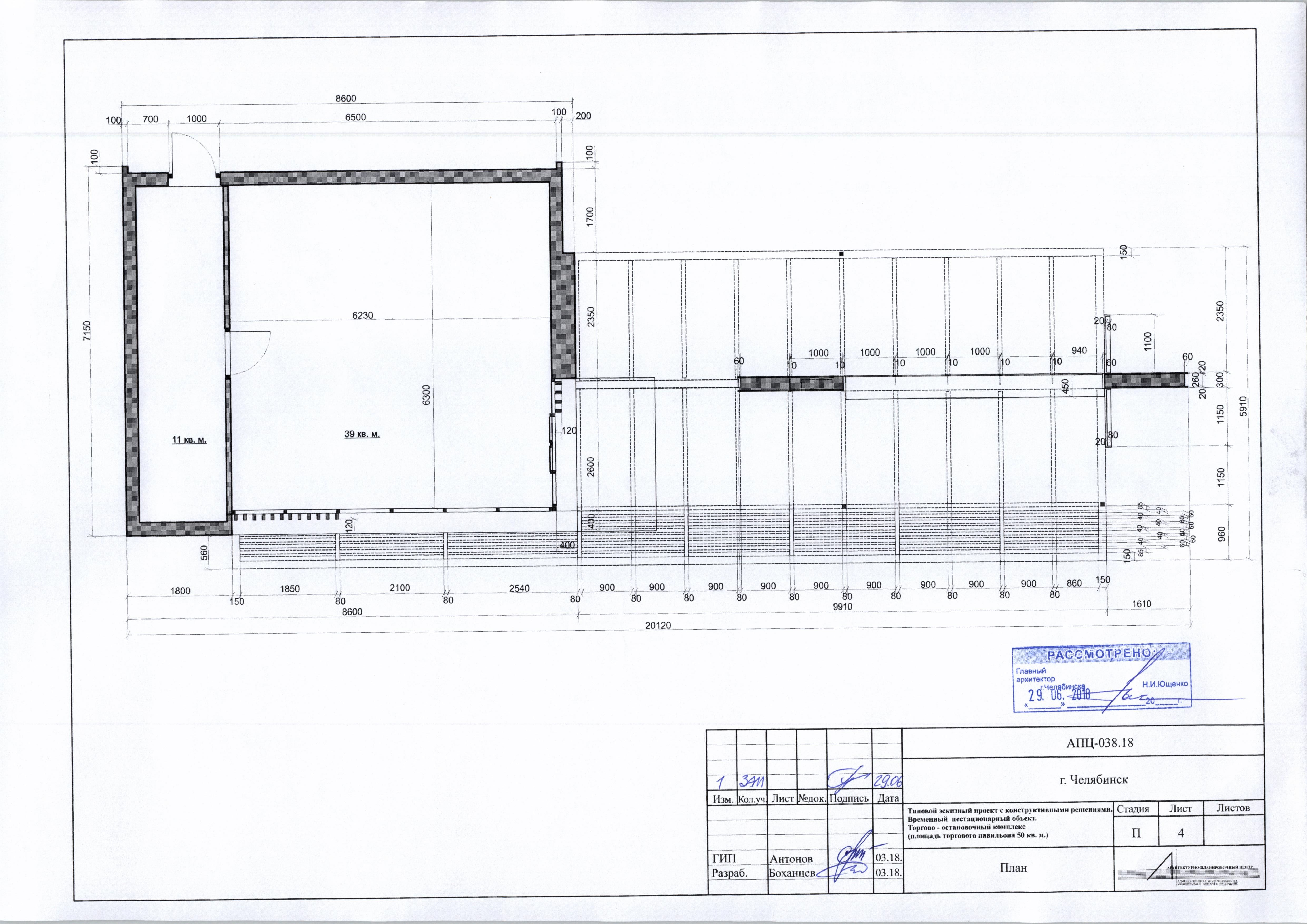
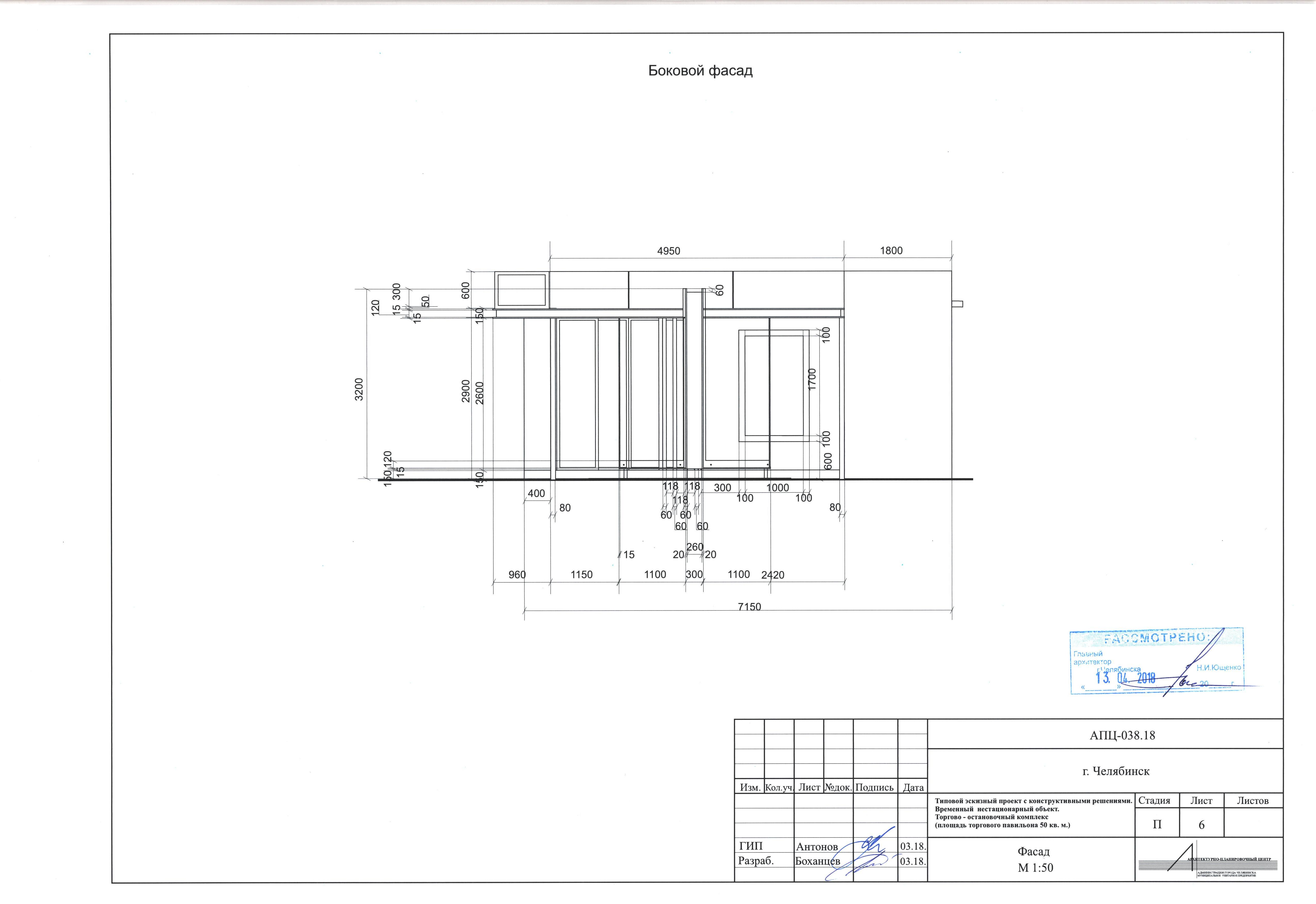
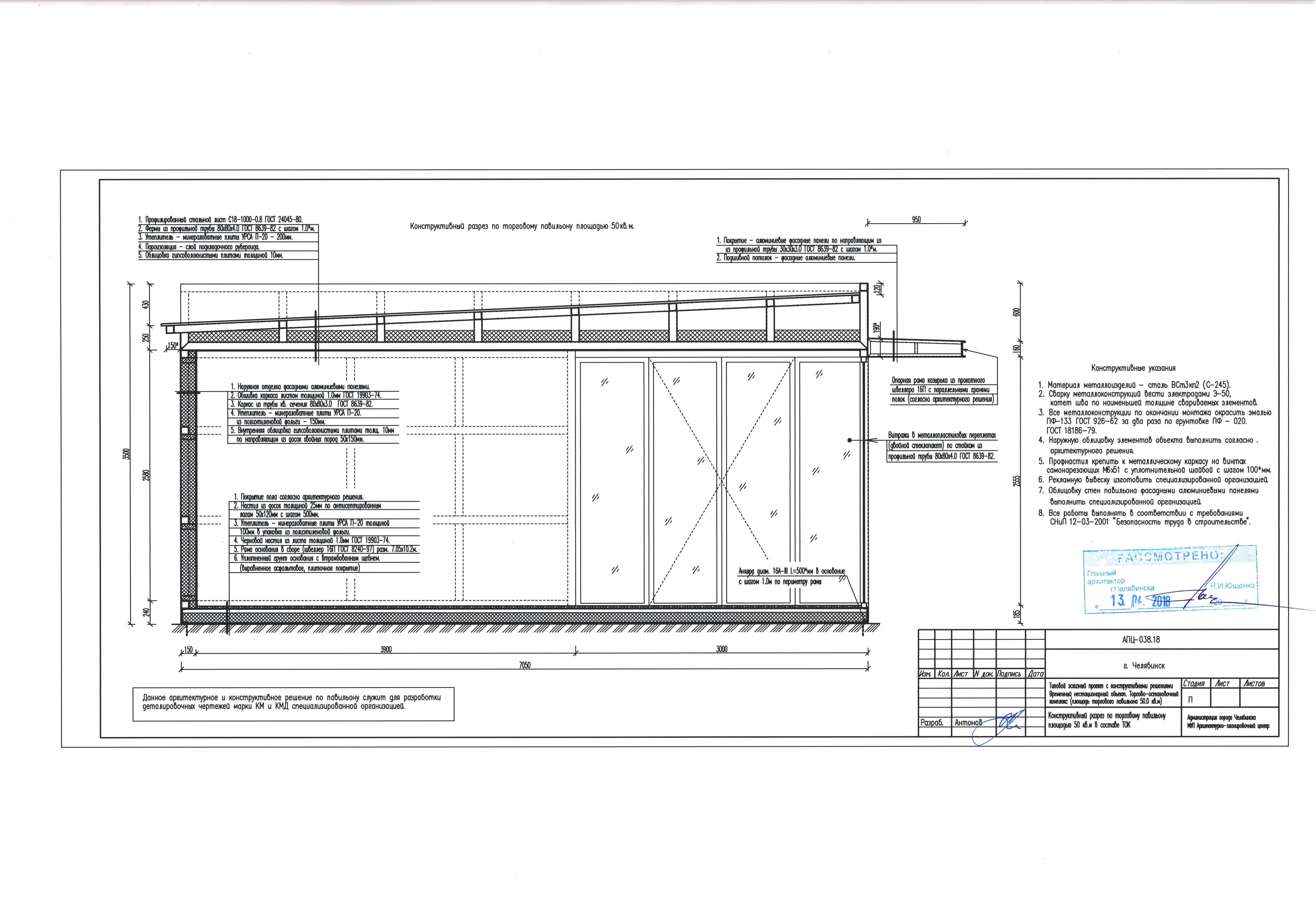
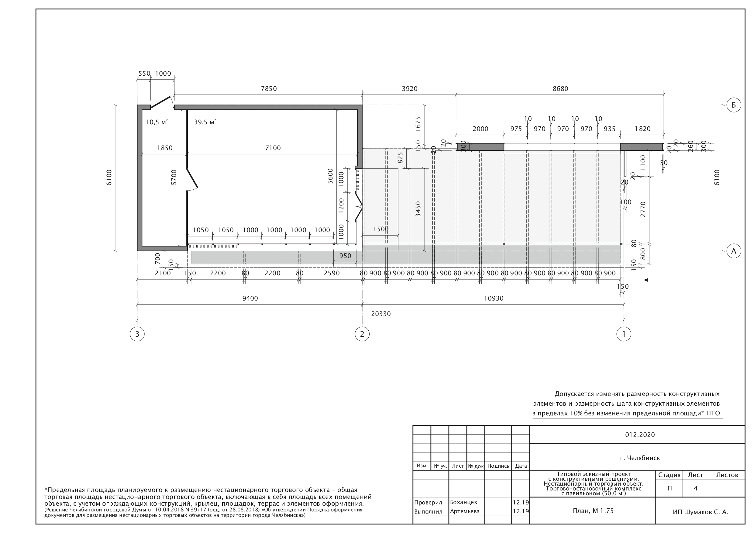
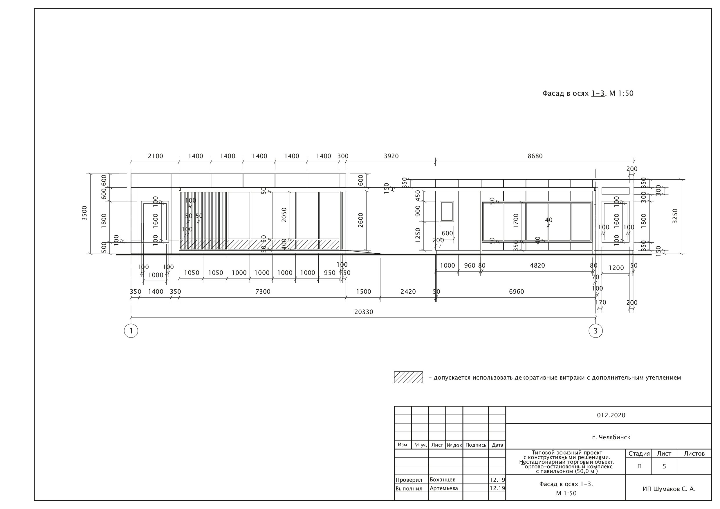
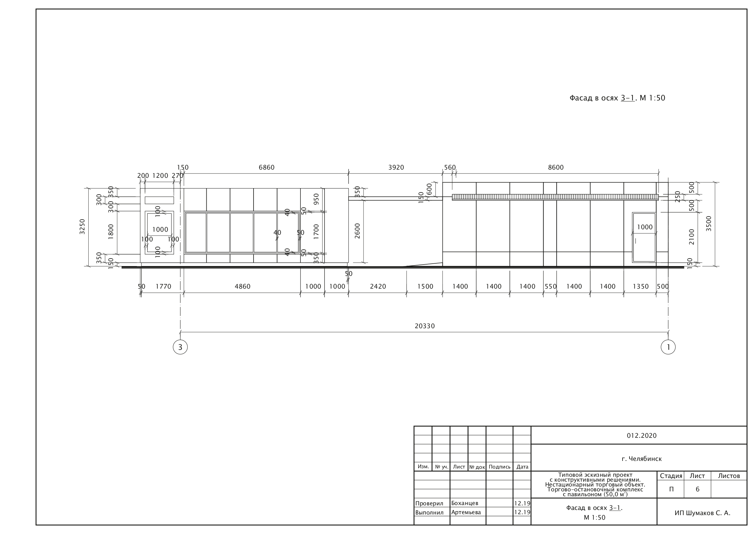
№ 1.3 Торгово–остановочный комплекс (общая площадь торгового павильона 50 кв. м, площадь застройки с учетом площади остановочного навеса 124,0 кв. м)
(действует с 01.07.2018)
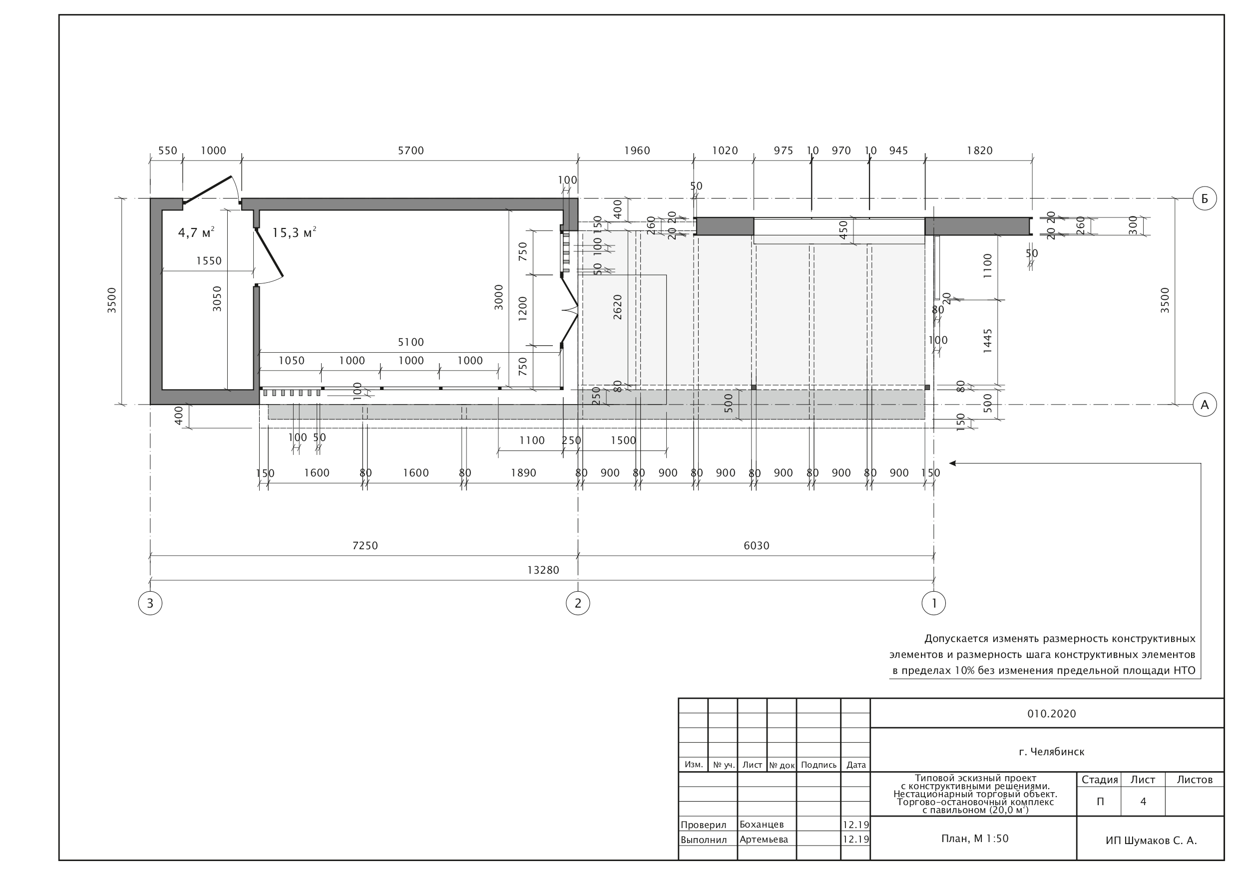
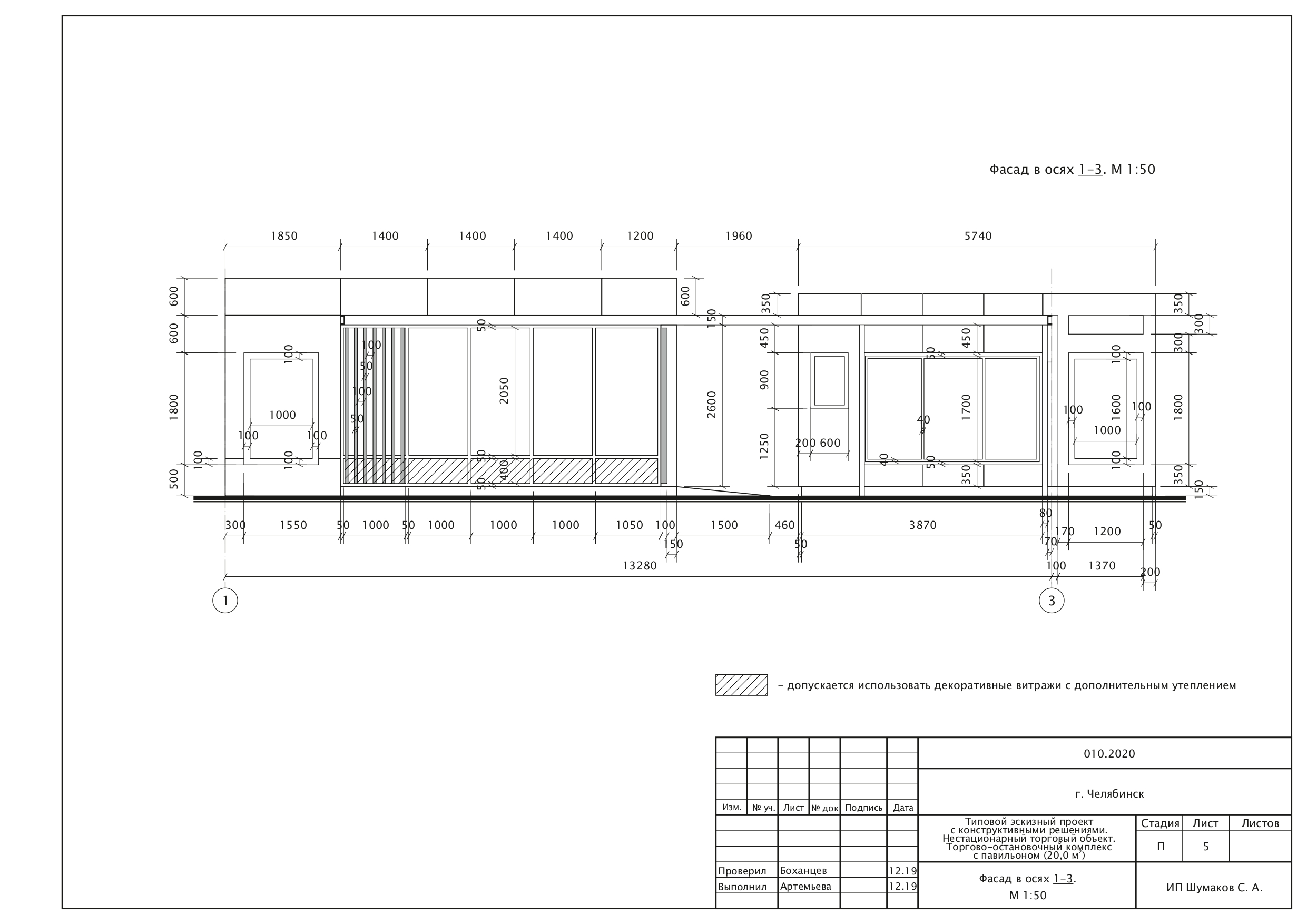
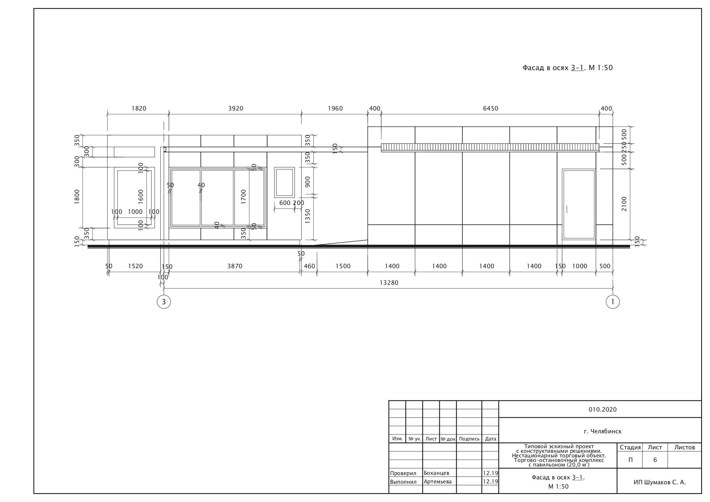
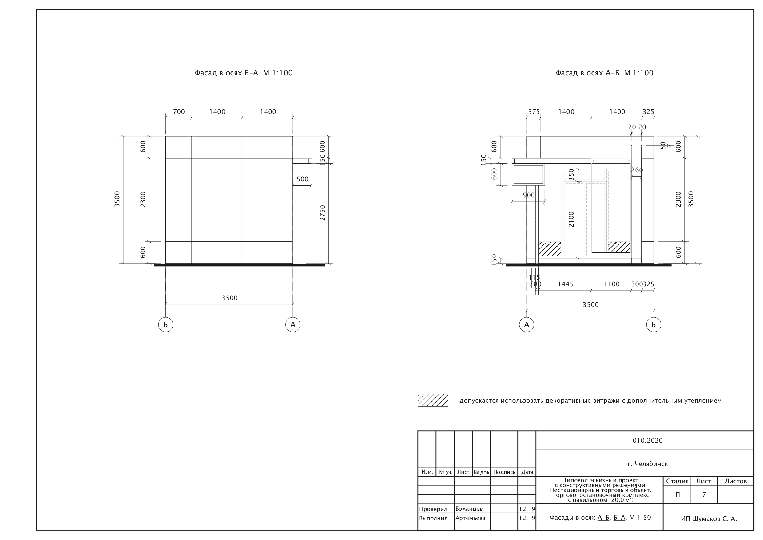
№ 1.4 Торгово–остановочный комплекс (предельная площадь - 50,0 кв. м, общая площадь торгового павильона - 20,0 кв. м)
Просмотреть – Торгово–остановочный комплекс (предельная площадь - 50,0 кв. м, общая площадь торгового павильона - 20,0 кв. м)
№ 1.5 Торгово–остановочный комплекс (предельная площадь - 80,0 кв. м, общая площадь торгового павильона - 35,0 кв. м)
Просмотреть – Торгово–остановочный комплекс (предельная площадь - 80,0 кв. м, общая площадь торгового павильона - 35,0 кв. м)
№ 1.6 Торгово–остановочный комплекс (предельная площадь - 120,0 кв. м, общая площадь торгового павильона - 50,0 кв. м)
Просмотреть – Торгово–остановочный комплекс (предельная площадь - 120,0 кв. м, общая площадь торгового павильона - 50,0 кв. м)
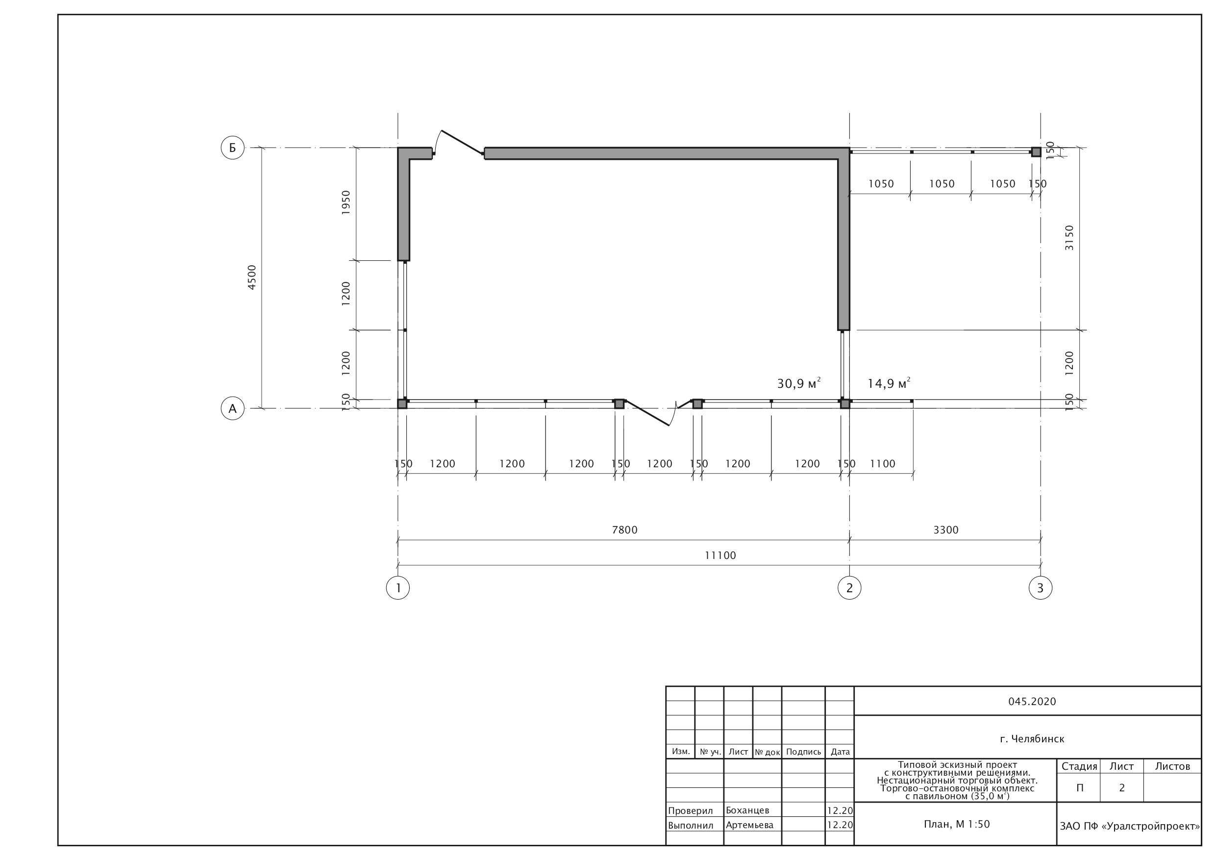
№ 1.7 Торгово–остановочный комплекс (общая площадь торгового павильона - 30,9 кв. м, предельная площадь - 50,0 кв. м,)
Просмотреть – Торгово–остановочный комплекс (общая площадь торгового павильона - 30,9 кв. м, предельная площадь - 50,0 кв. м,)
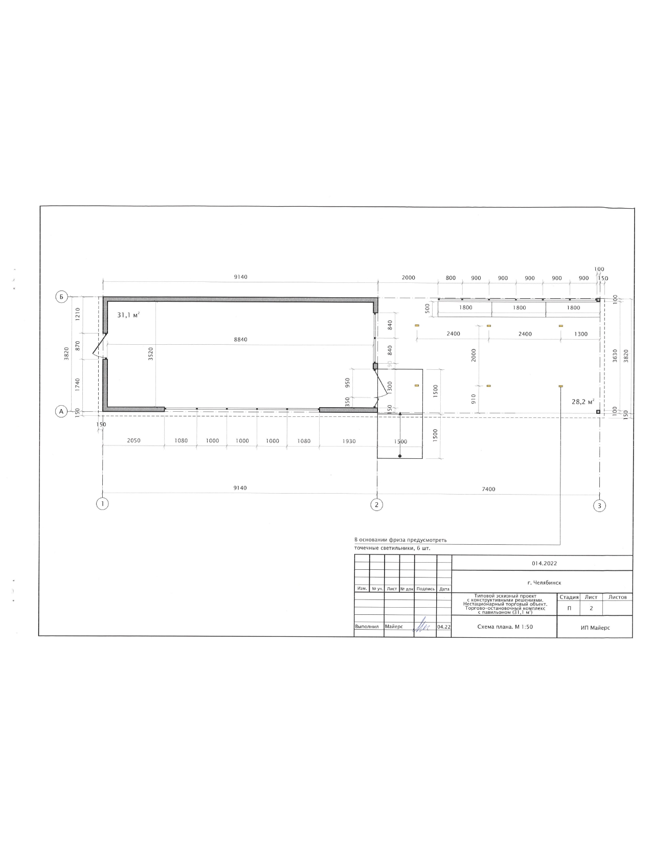
№ 1.8 Торгово–остановочный комплекс (общая площадь торгового павильона - 31,1 кв. м, предельная площадь - 63,2 кв. м,)
Просмотреть – Торгово–остановочный комплекс (общая площадь торгового павильона - 31,1 кв. м, предельная площадь - 63,2 кв. м,)














































































