Администрация города Челябинска
Управление по архитектурно-градостроительному
проектированию города Челябинска
Начальник управления
Чернушкина Наталья Викторовна
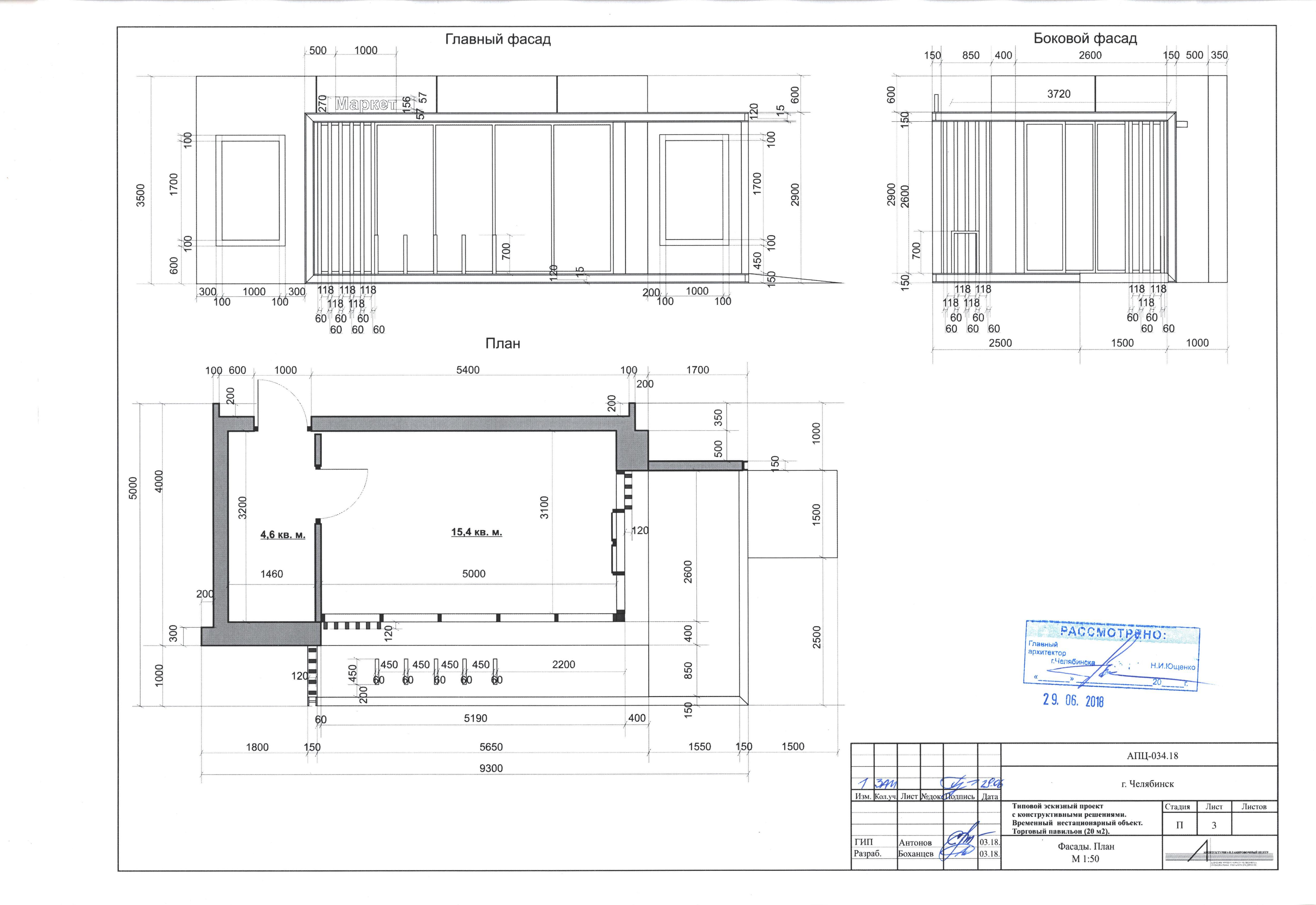
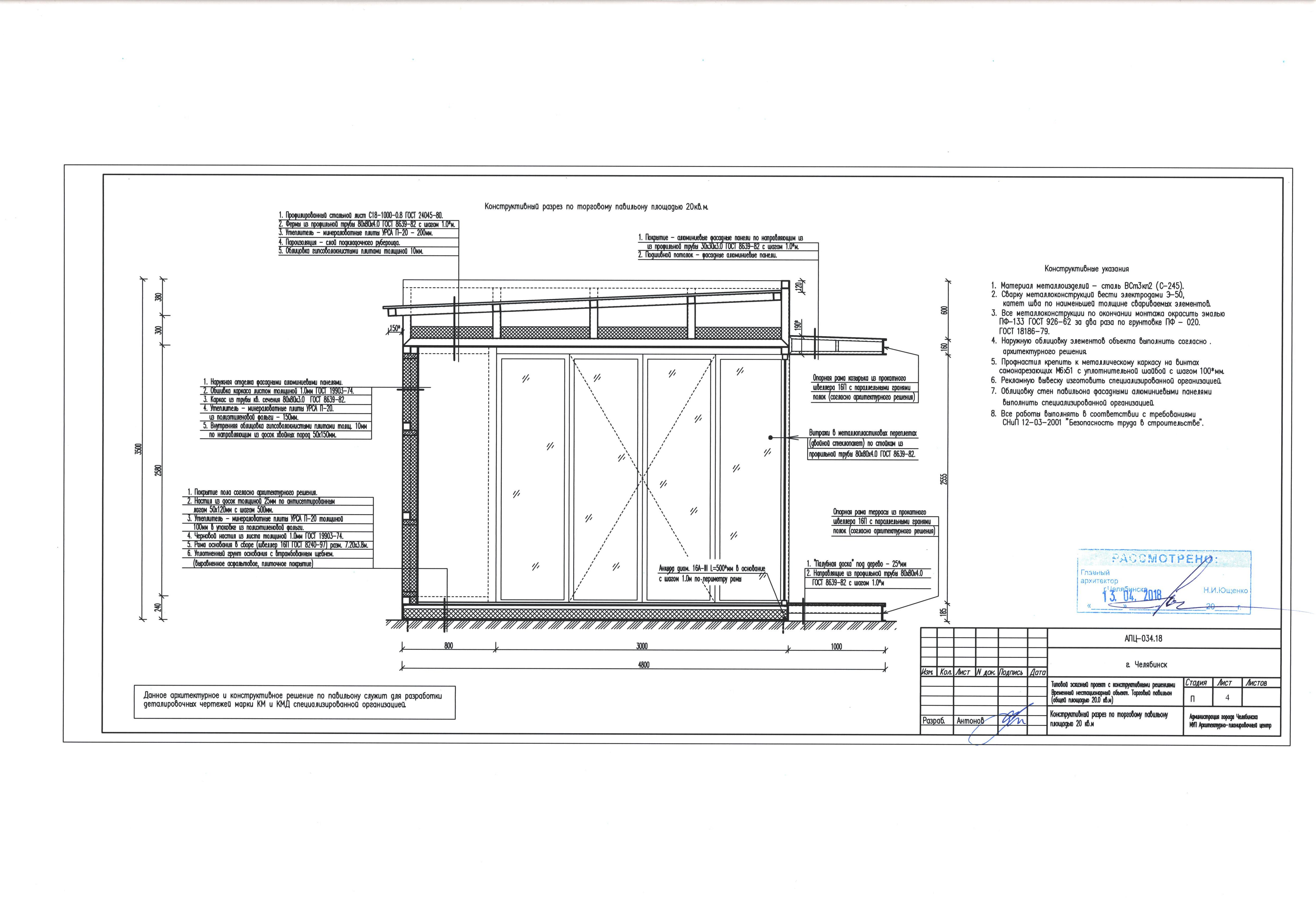
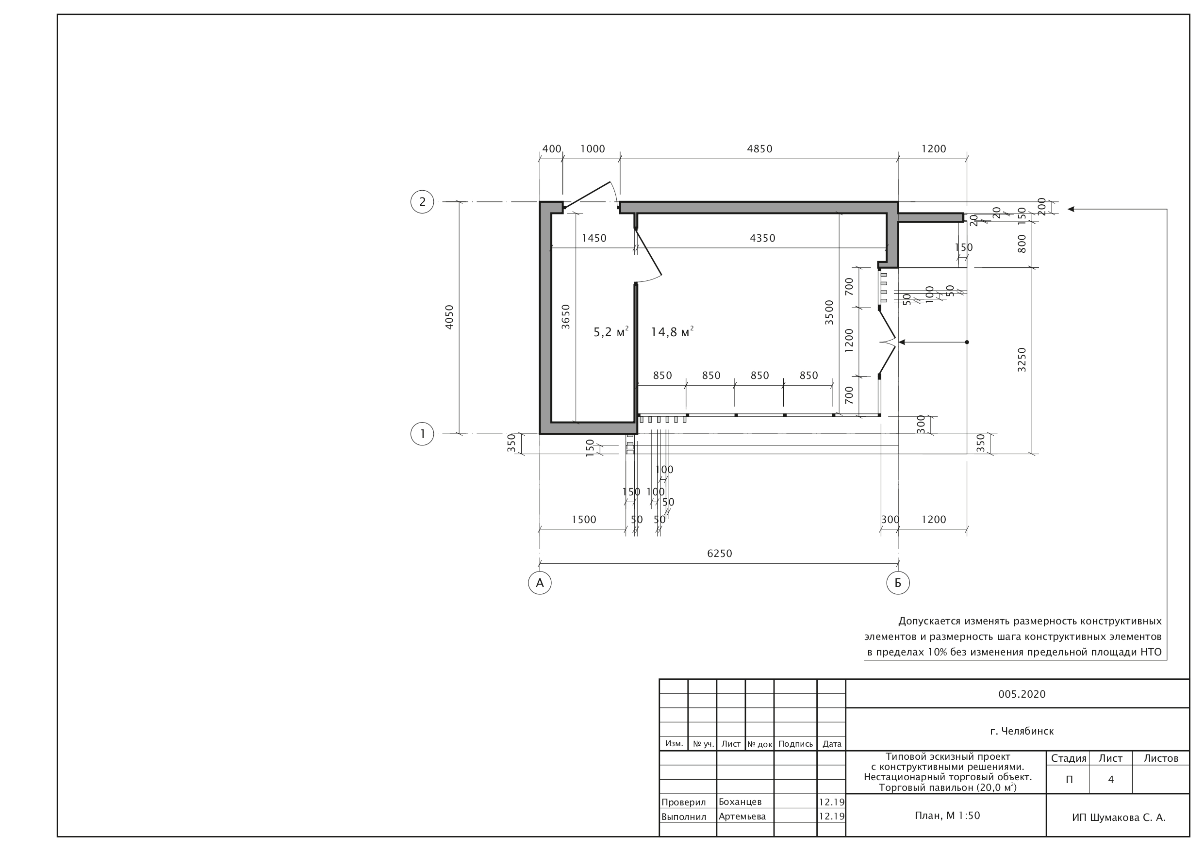
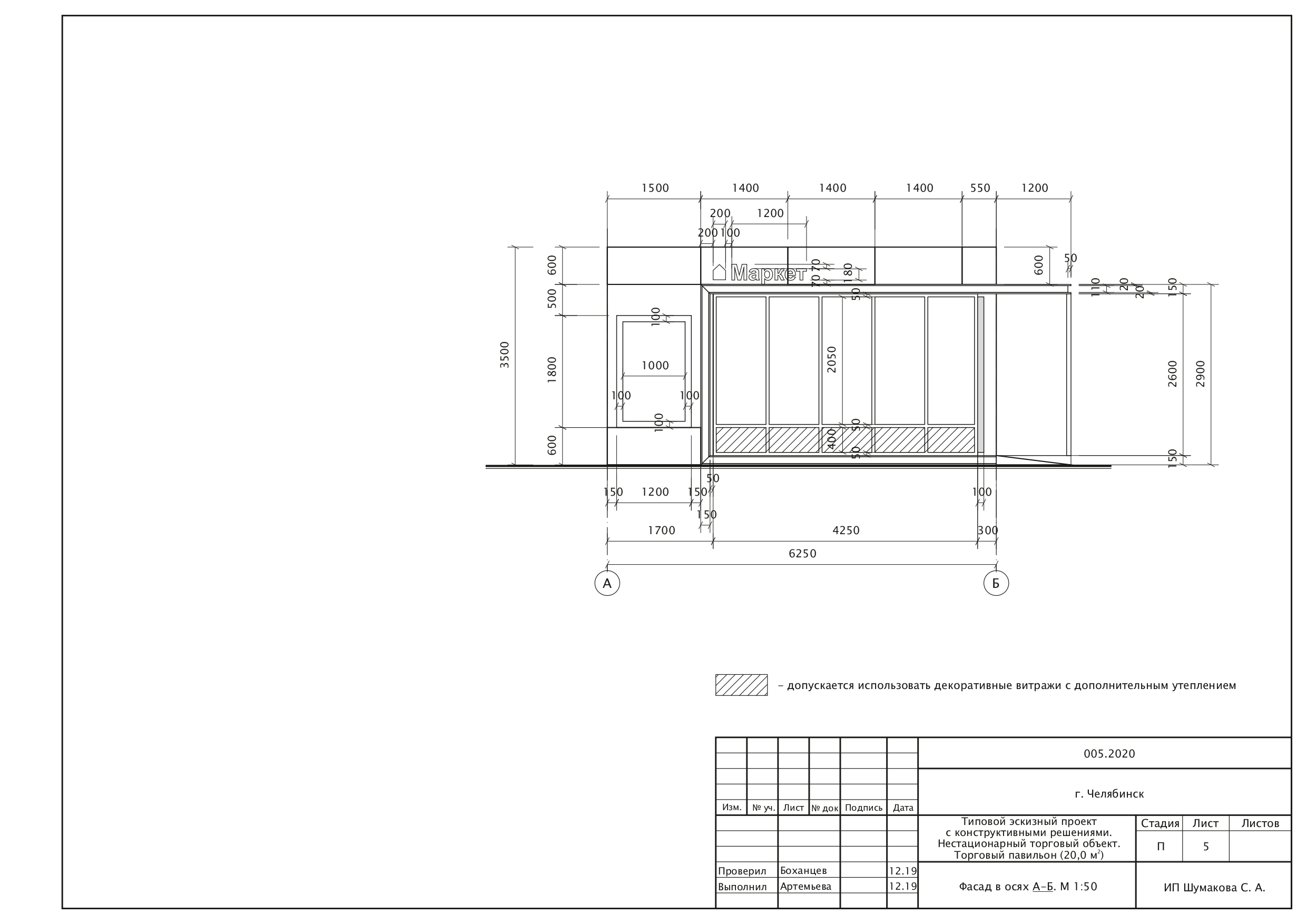
№ 2.1 Торговый павильон (общая площадь 20 кв. м, площадь застройки 42,445 кв. м)
(действует с 01.07.2018)
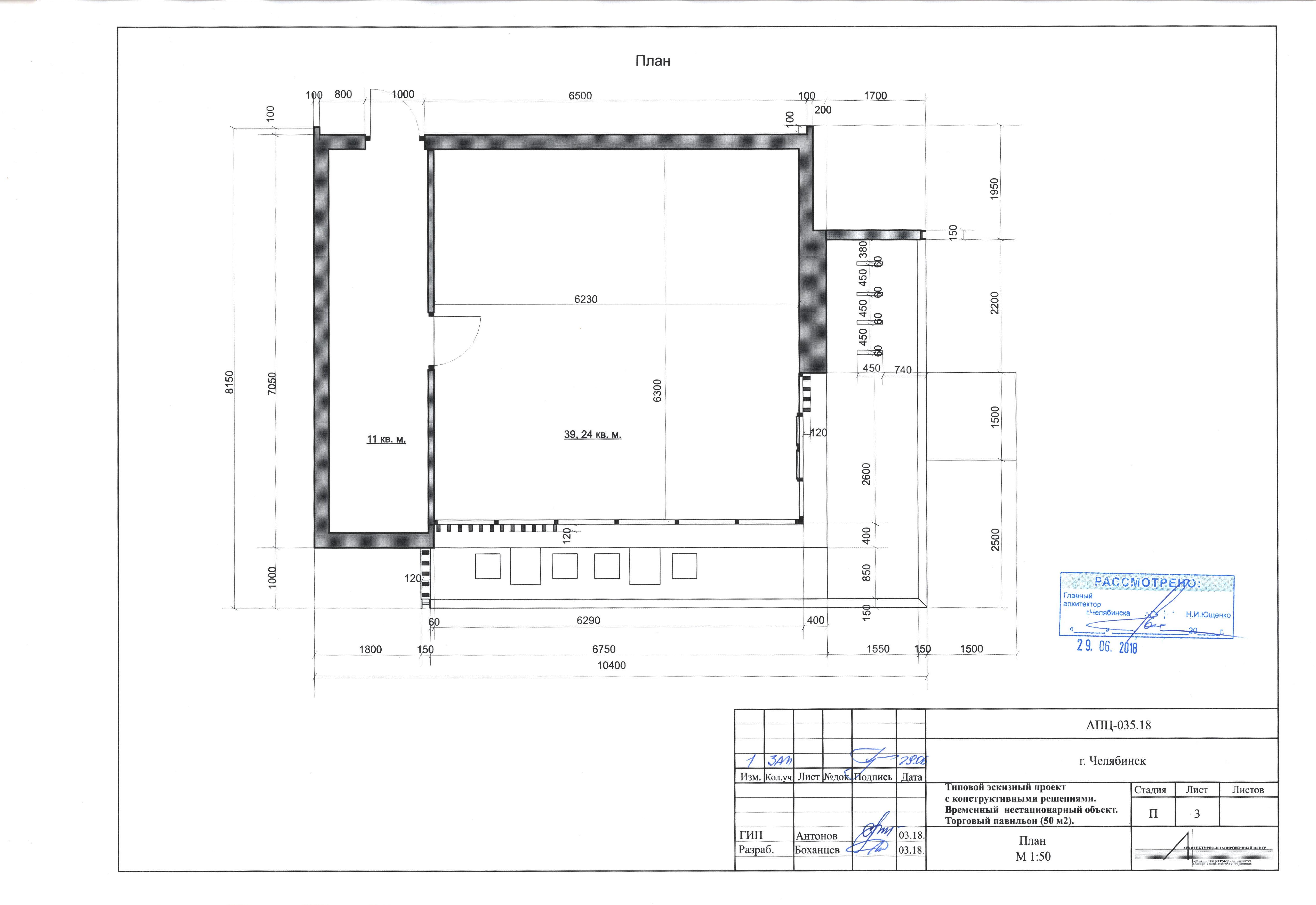
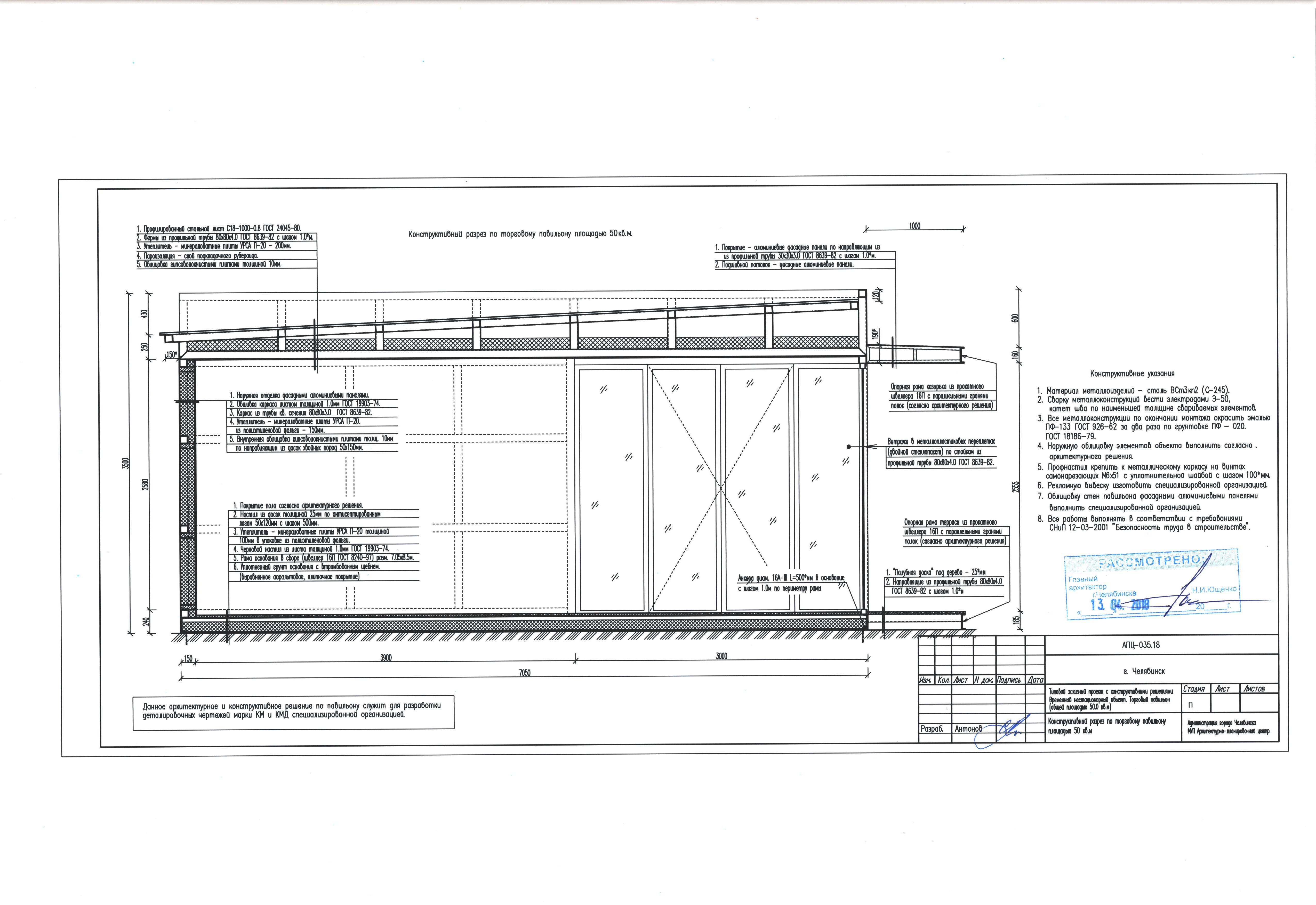
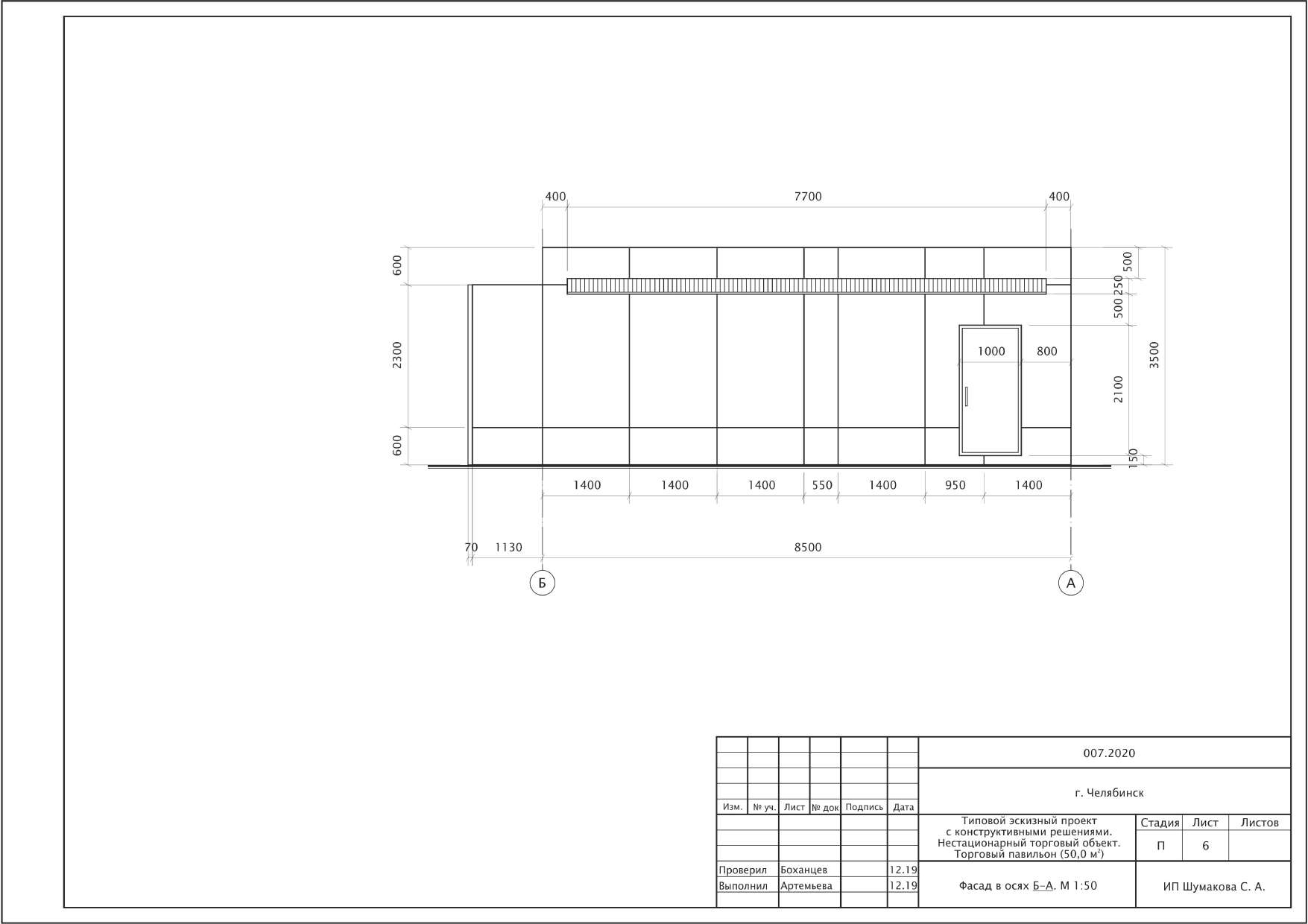
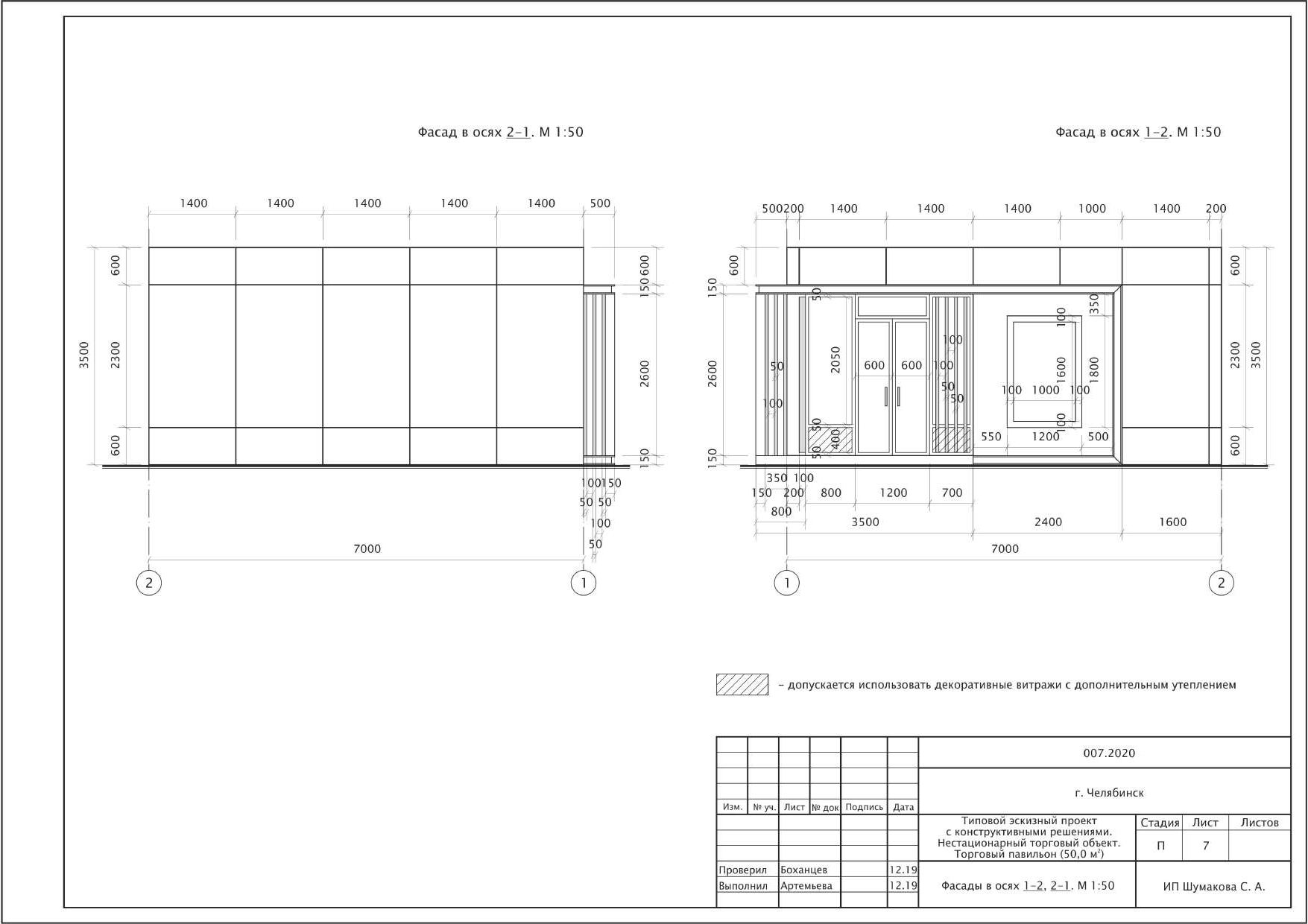
№ 2.2 Торговый павильон (общая площадь 50 кв. м, площадь застройки 79,54 кв. м)
(действует с 01.07.2018)
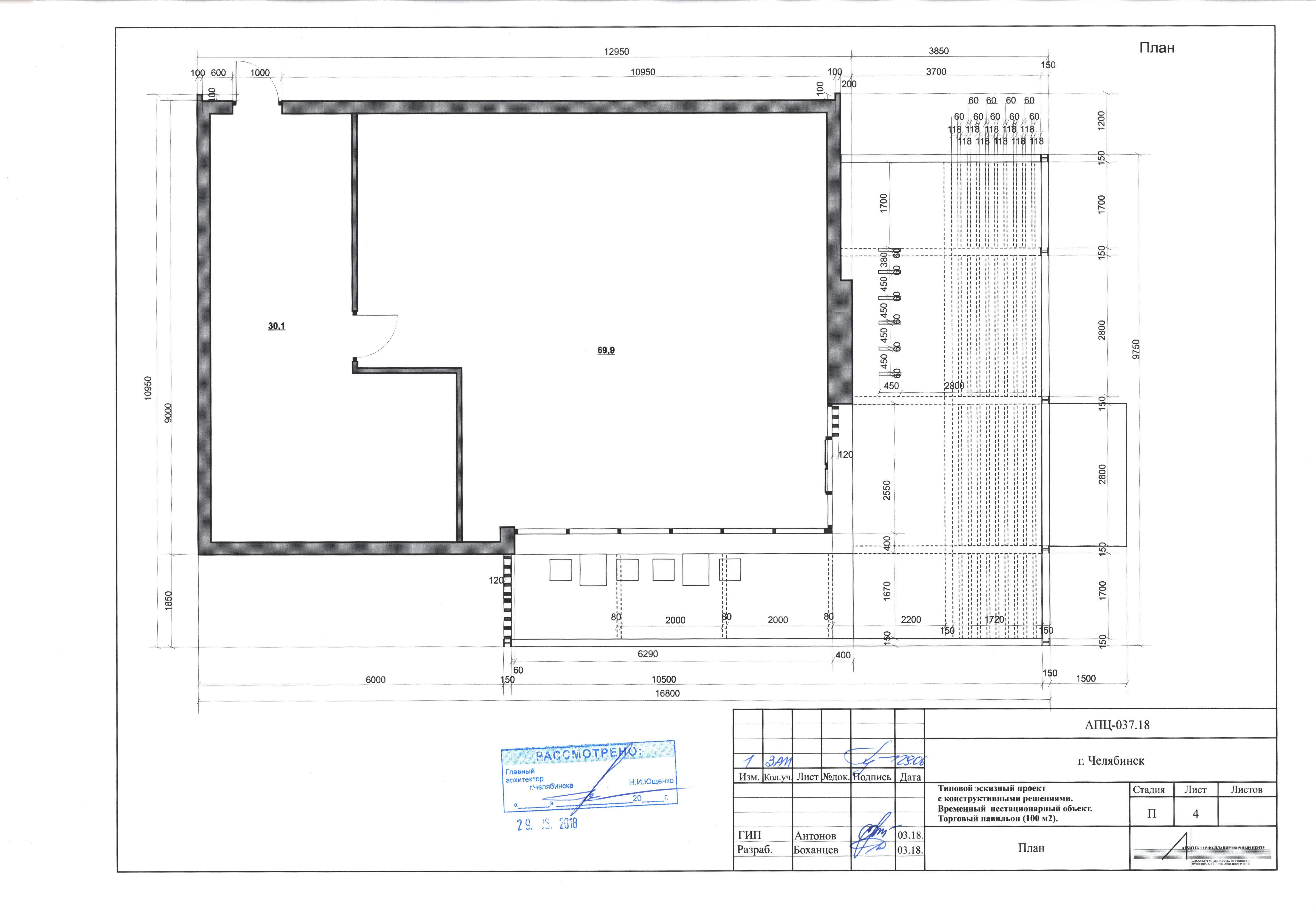
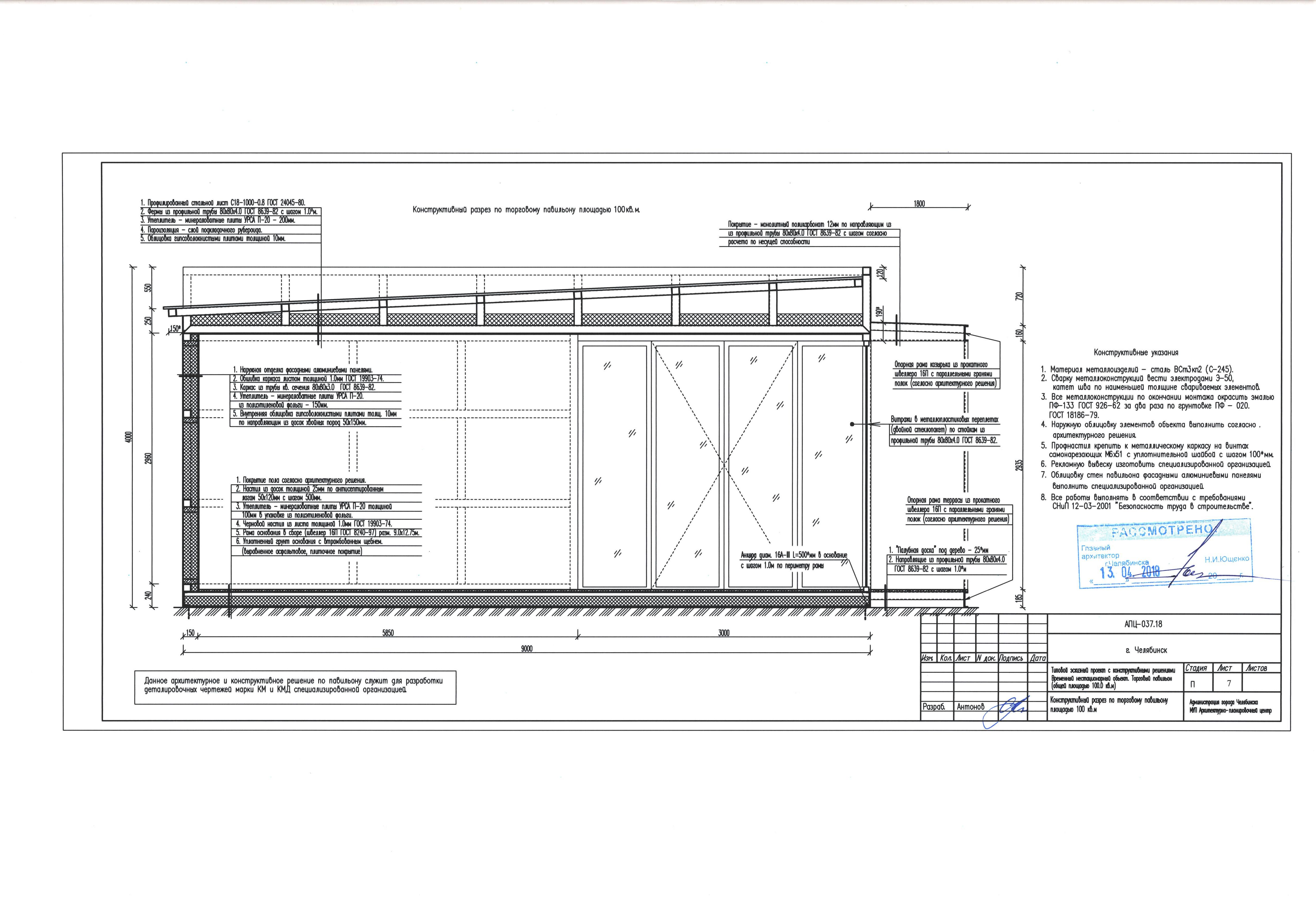
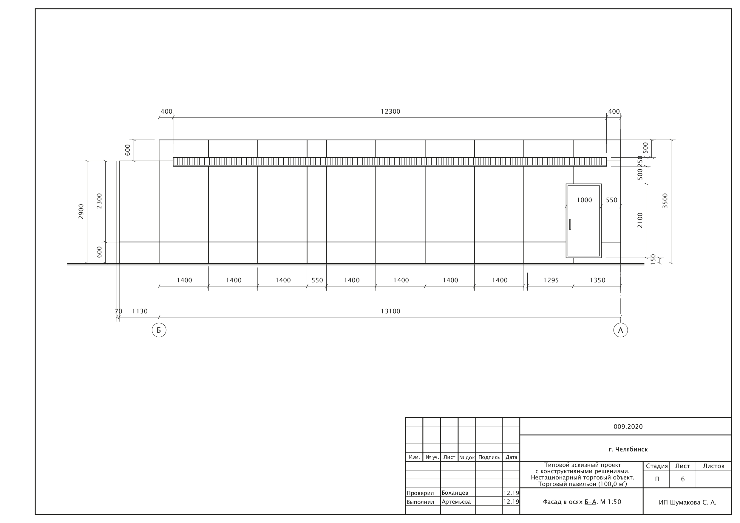
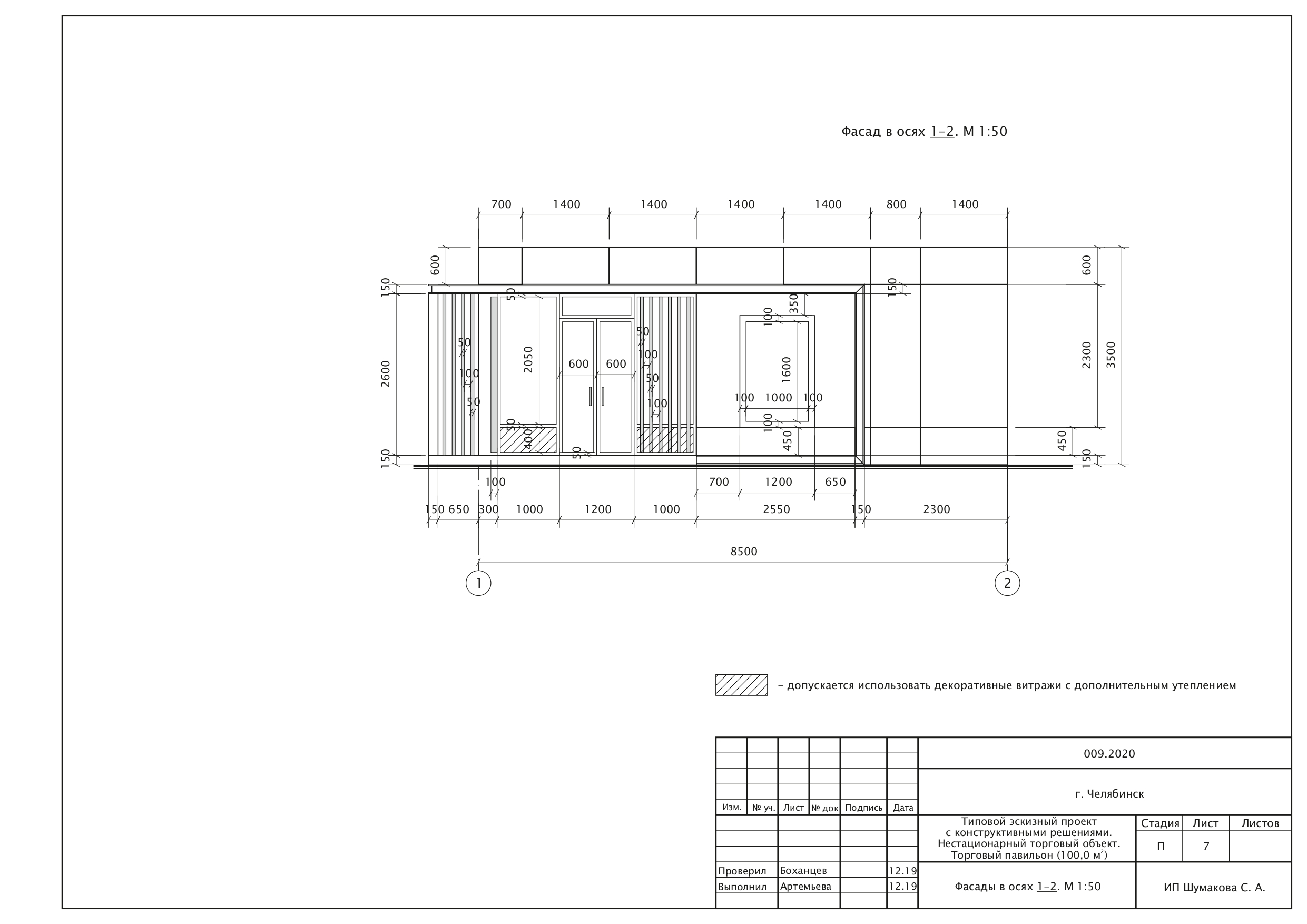
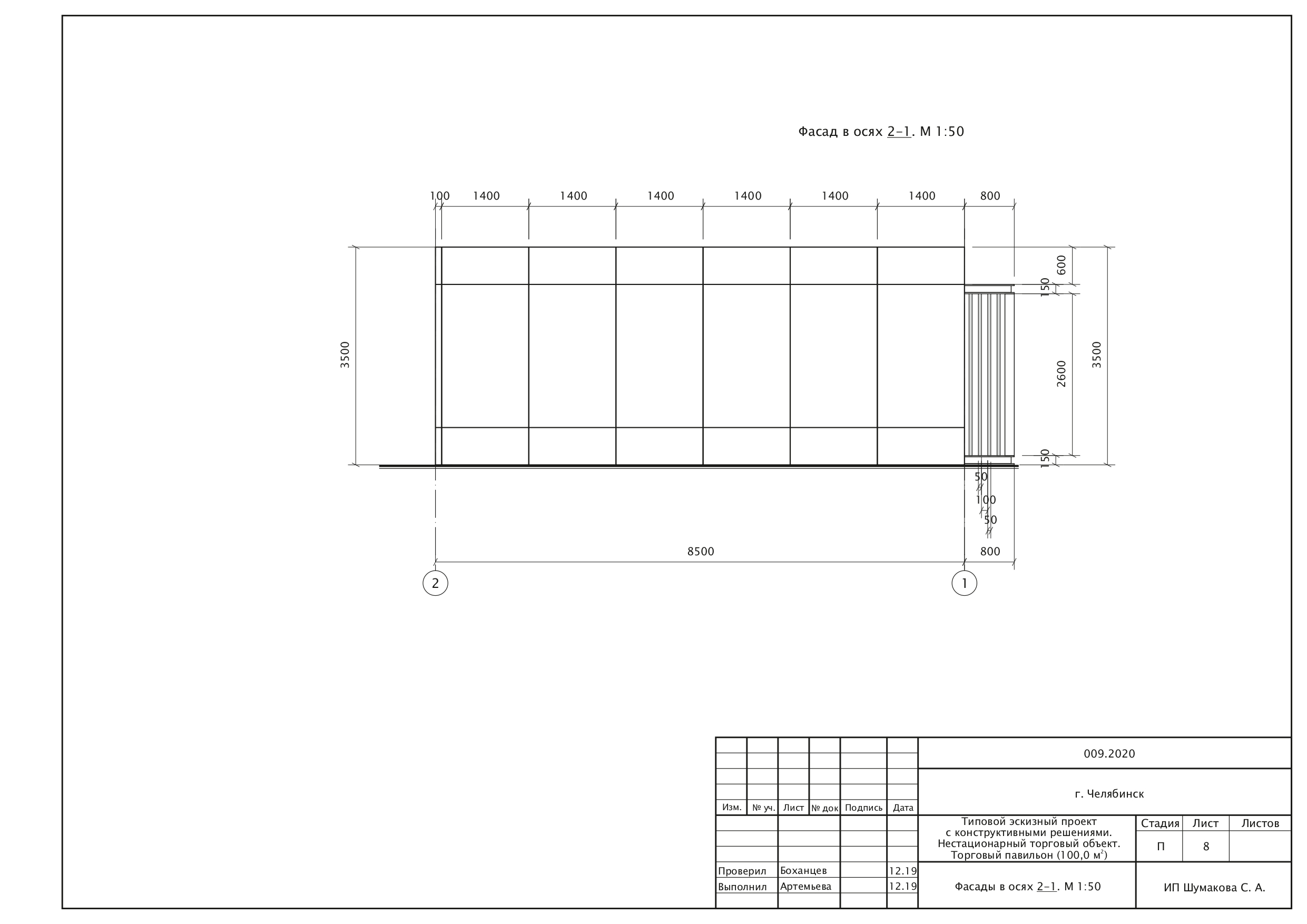
№ 2.3 Торговый павильон (общая площадь 100 кв. м, площадь застройки 168,0 кв. м)
(действует с 01.07.2018)
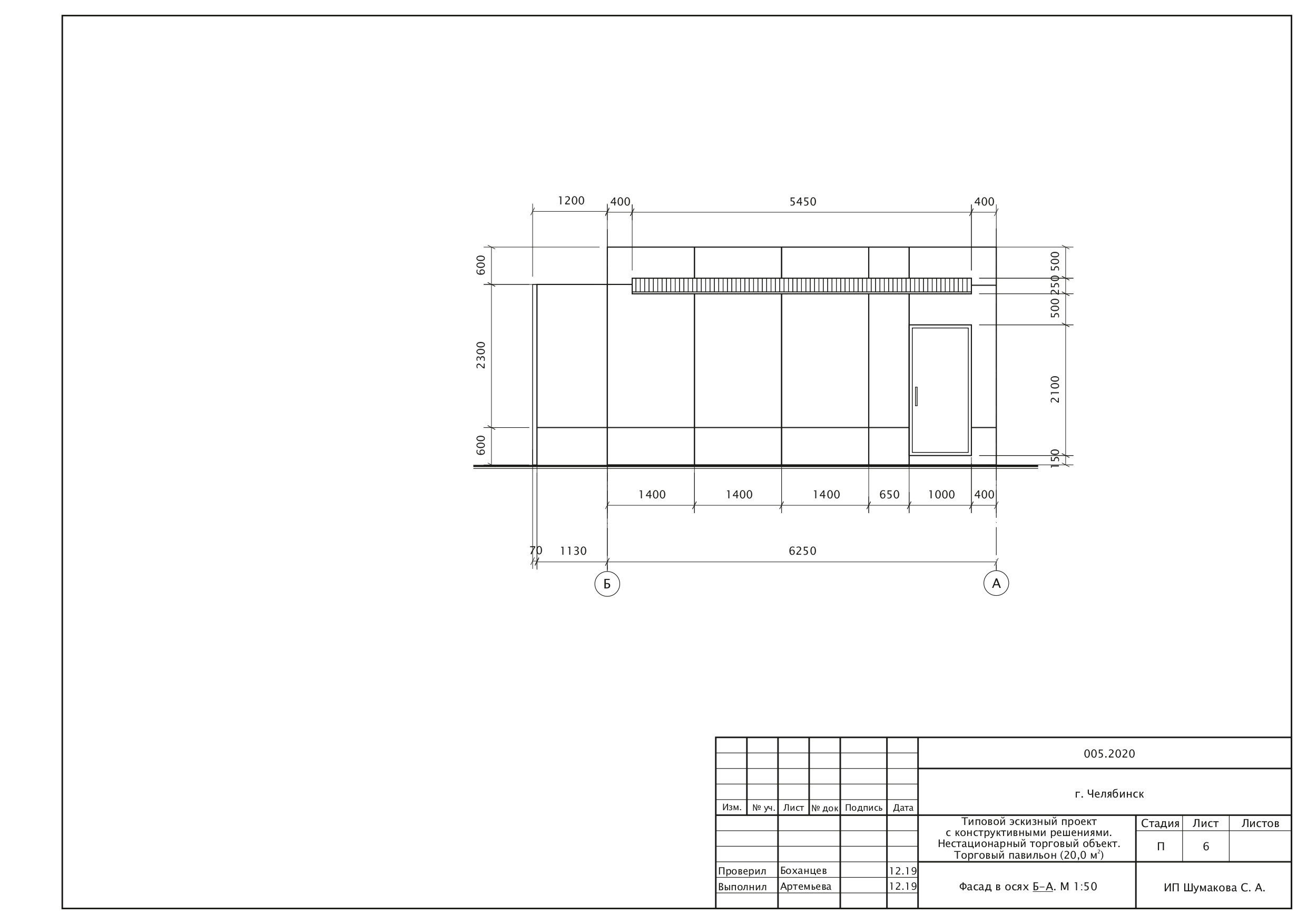
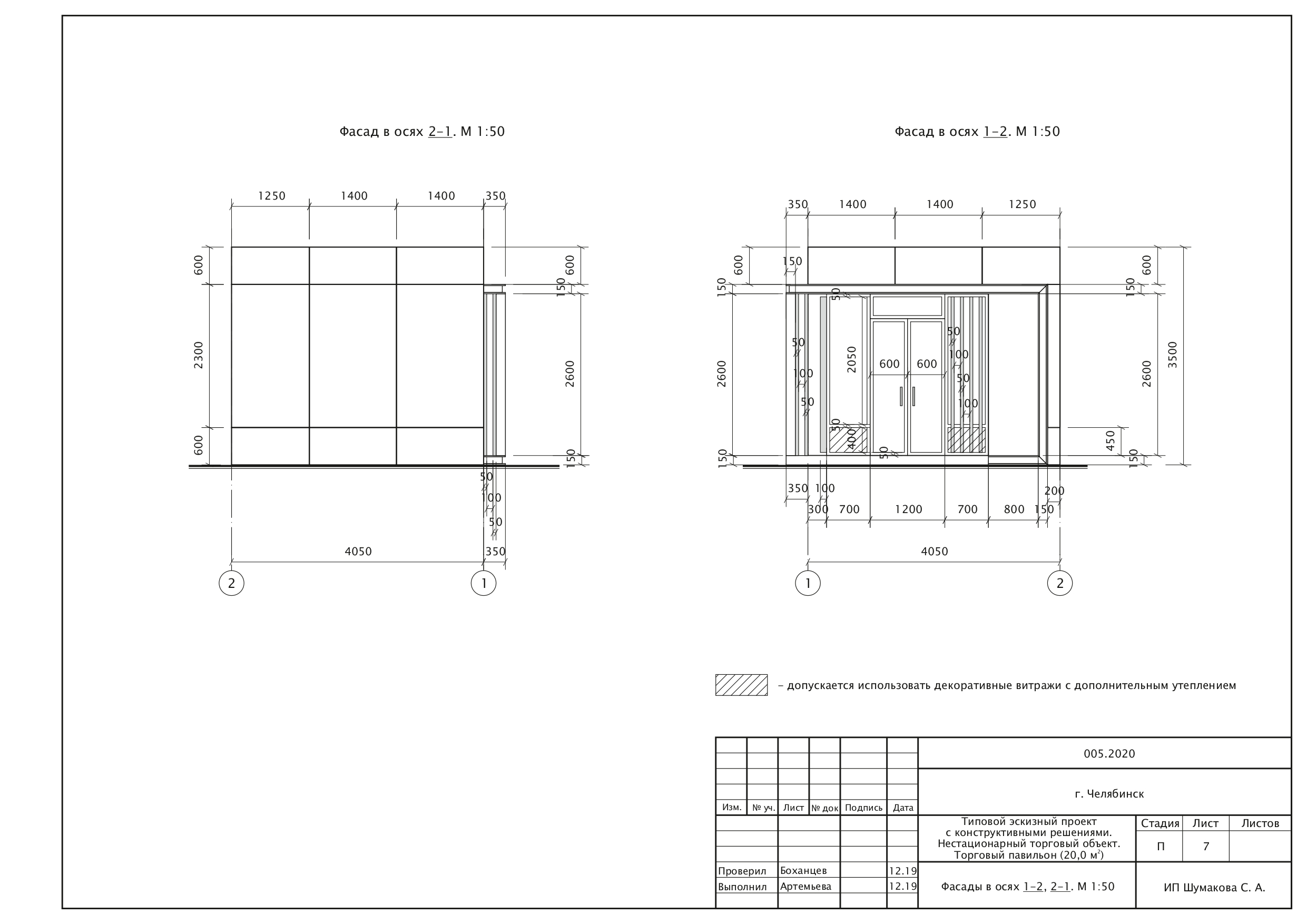
№ 2.4 Торговый павильон (предельная площадь – 32,0 кв. м, общая площадь – 20,0 кв. м)
Просмотреть – Торговый павильон (предельная площадь – 32,0 кв. м, общая площадь – 20,0 кв. м)
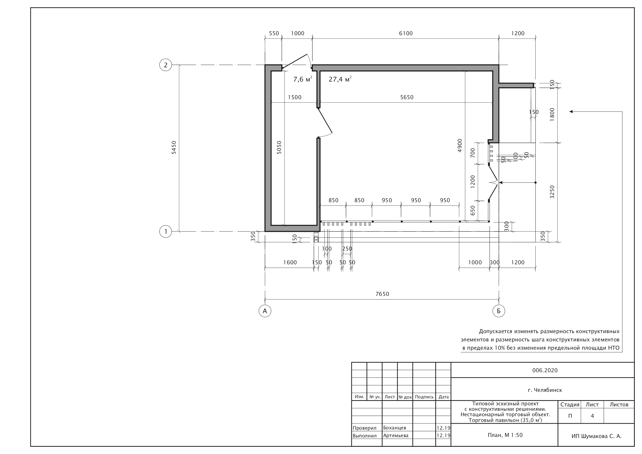
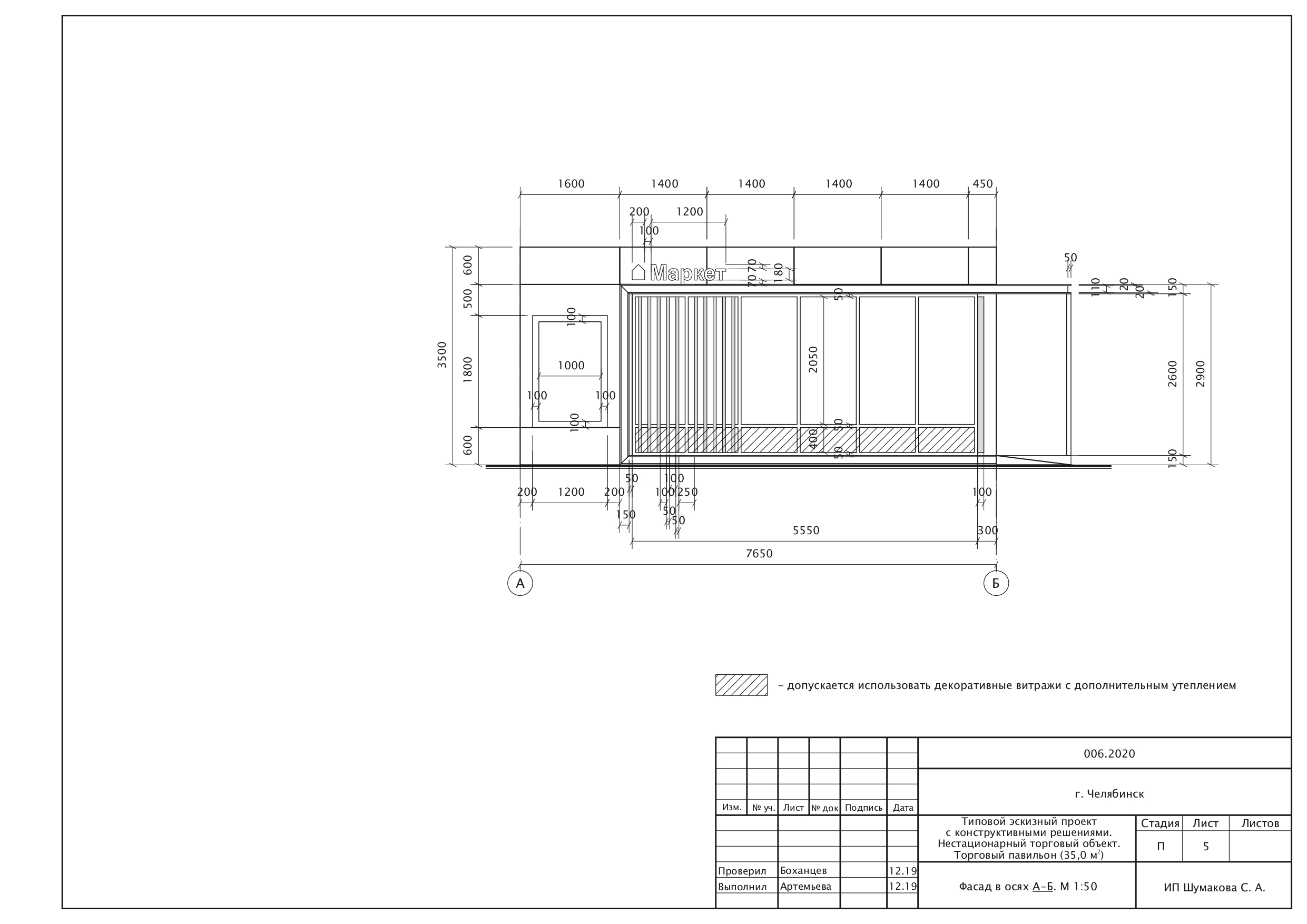
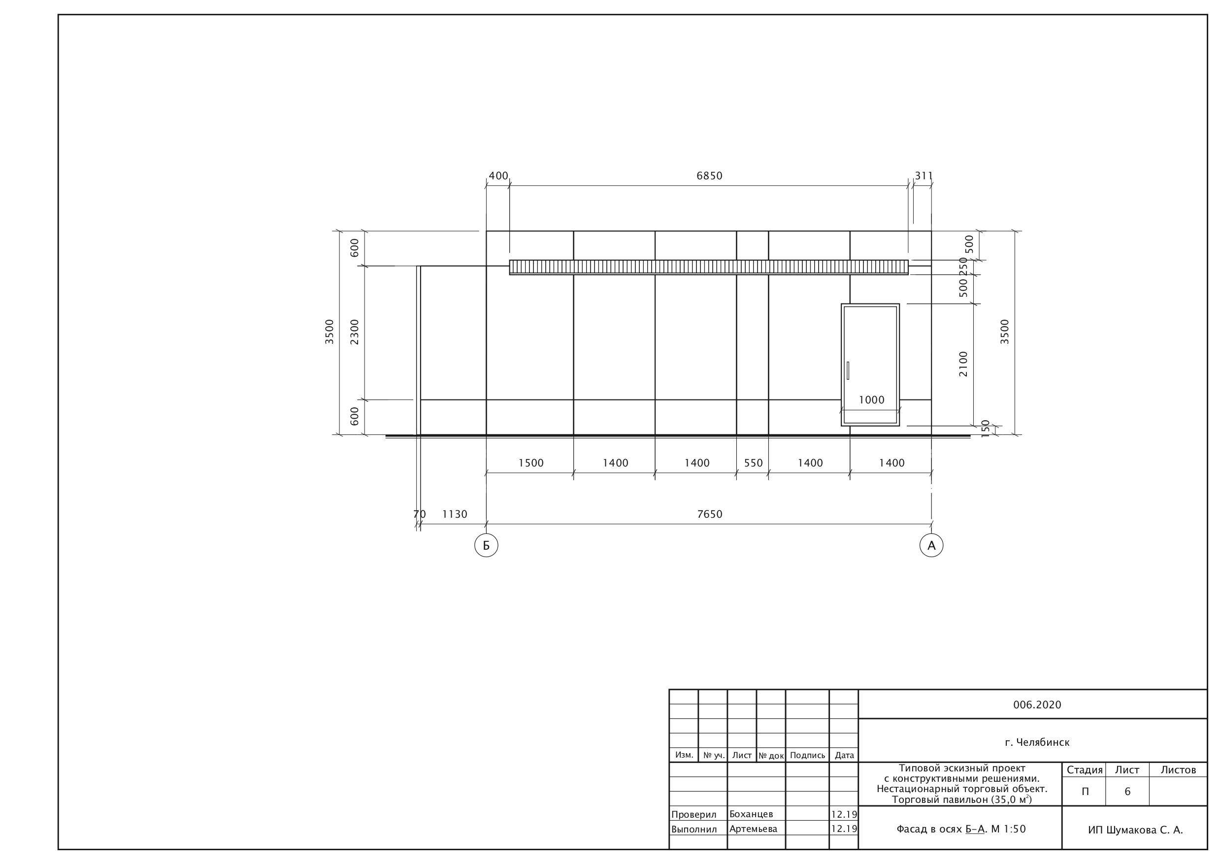
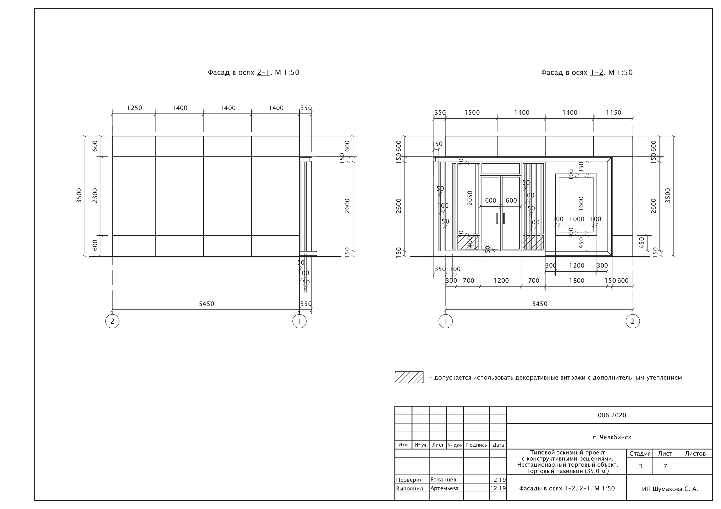
№ 2.5 Торговый павильон (предельная площадь – 50,0 кв. м, общая площадь – 35,0 кв. м)
Просмотреть – Торговый павильон (предельная площадь – 50,0 кв. м, общая площадь – 35,0 кв. м)
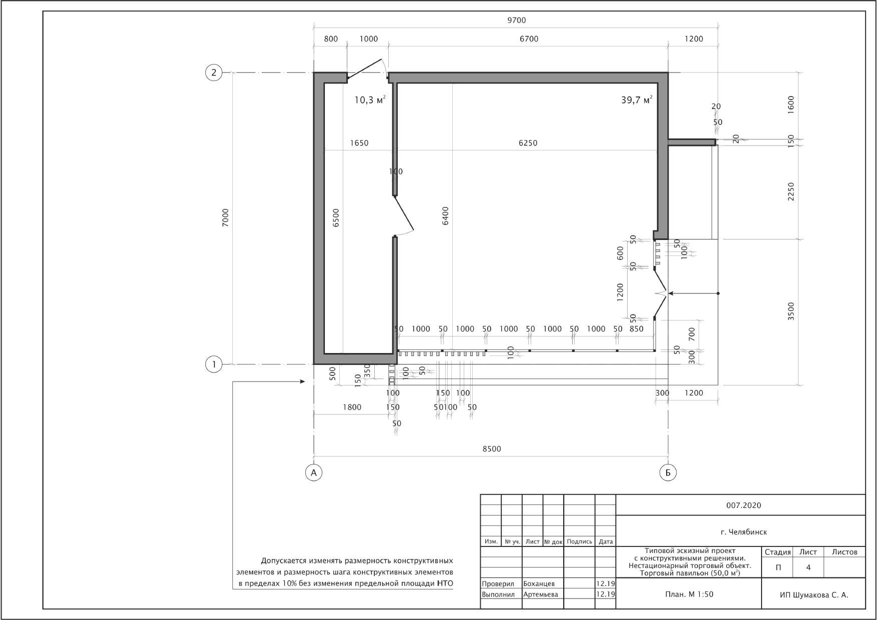
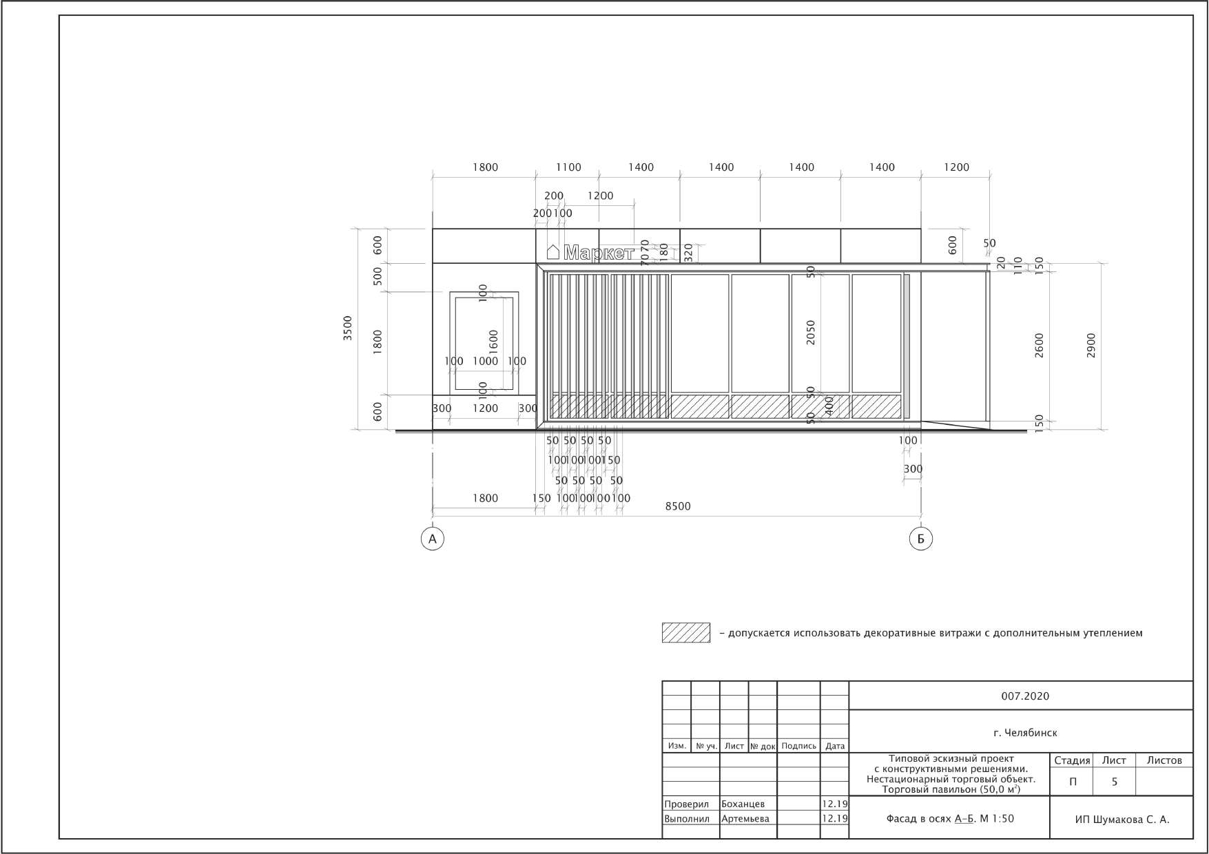
№ 2.6 Торговый павильон (предельная площадь – 70,0 кв. м, общая площадь – 50,0 кв. м)
Просмотреть – Торговый павильон (предельная площадь – 70,0 кв. м, общая площадь – 50,0 кв. м)
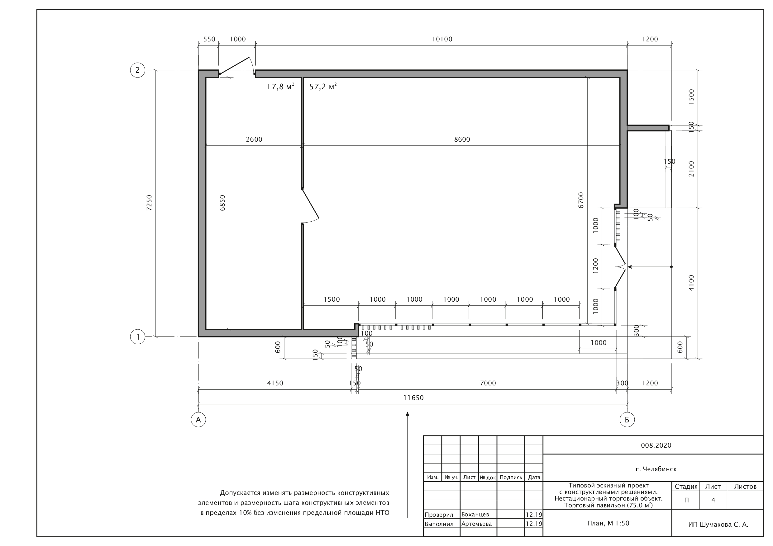
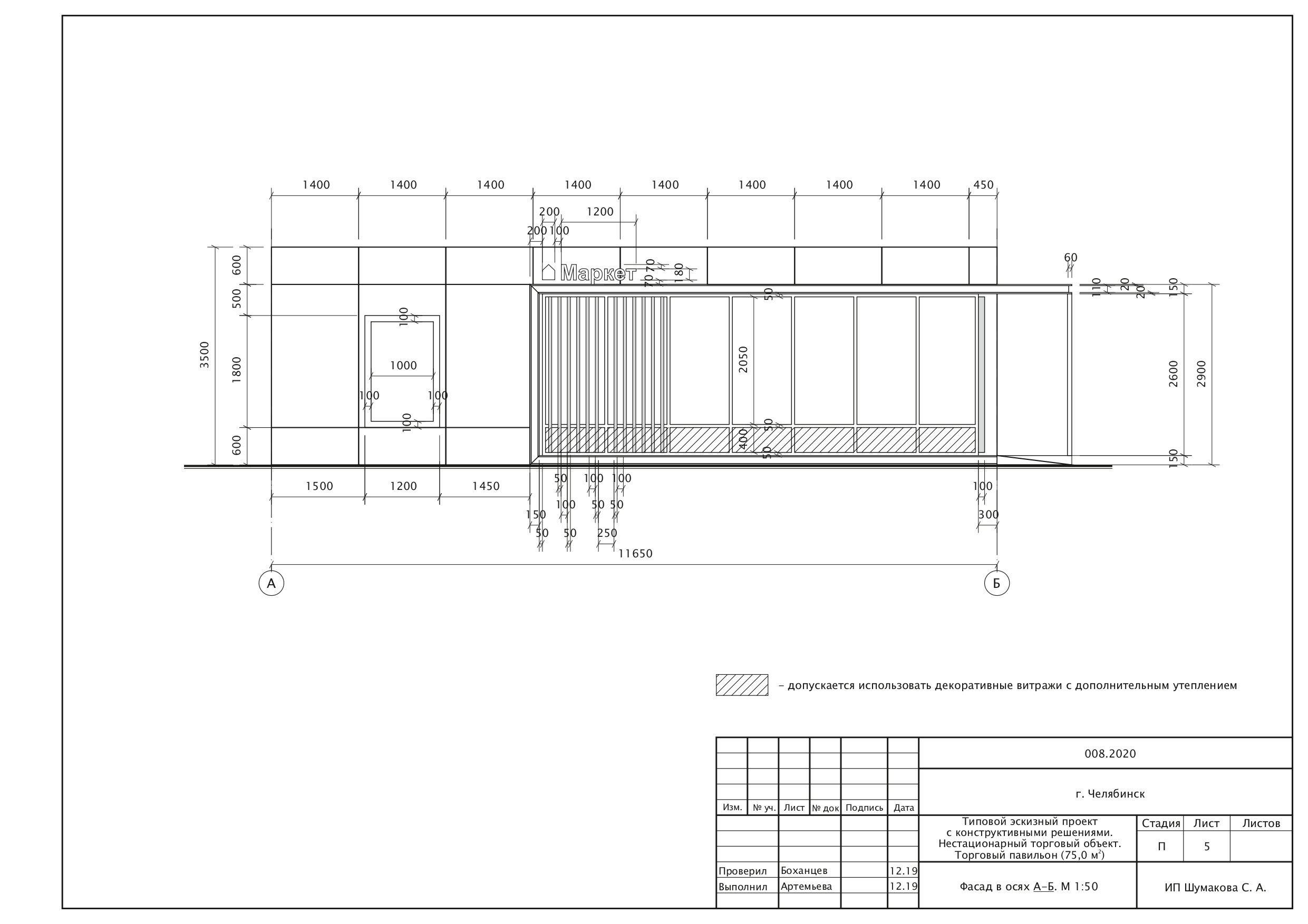
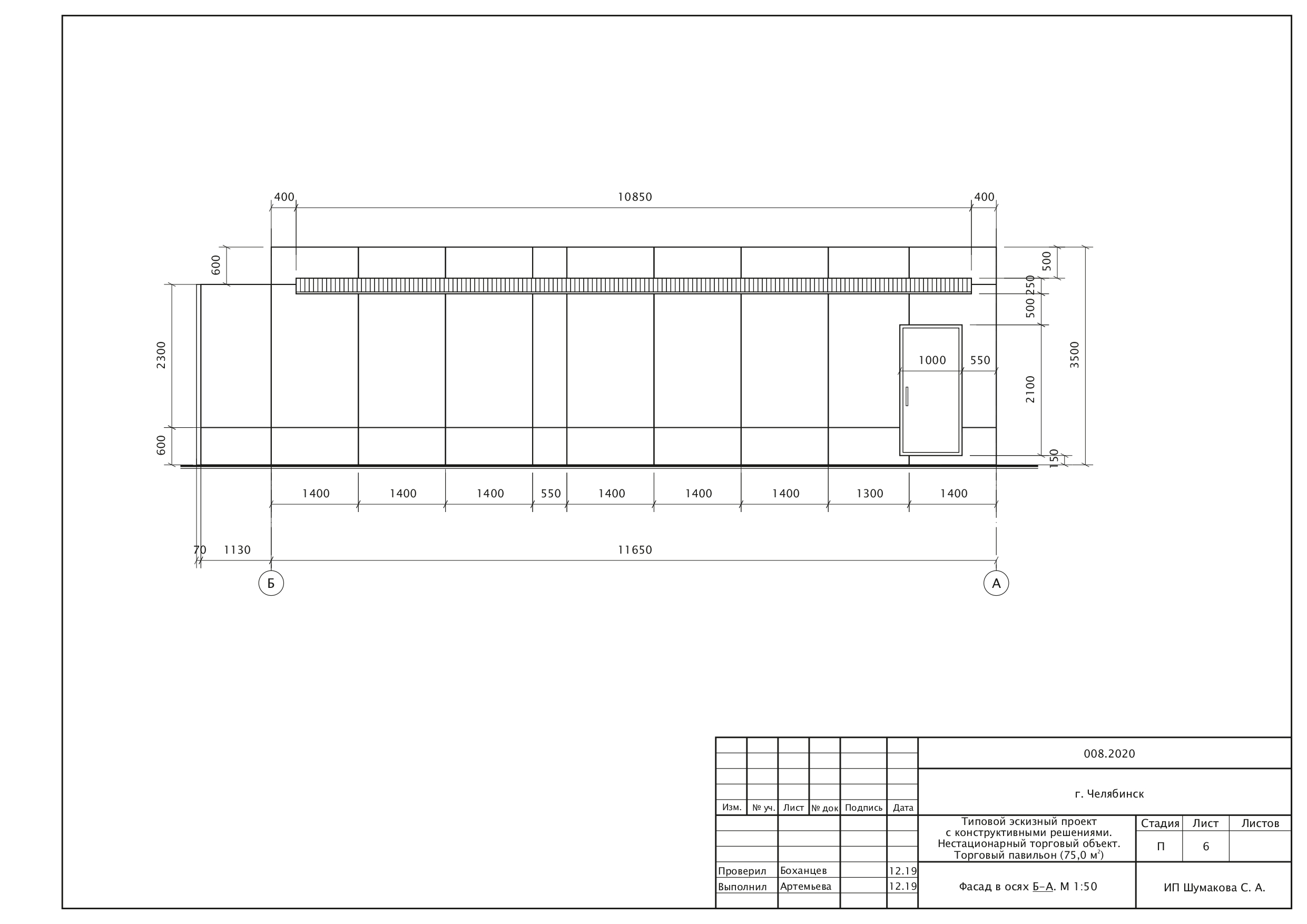
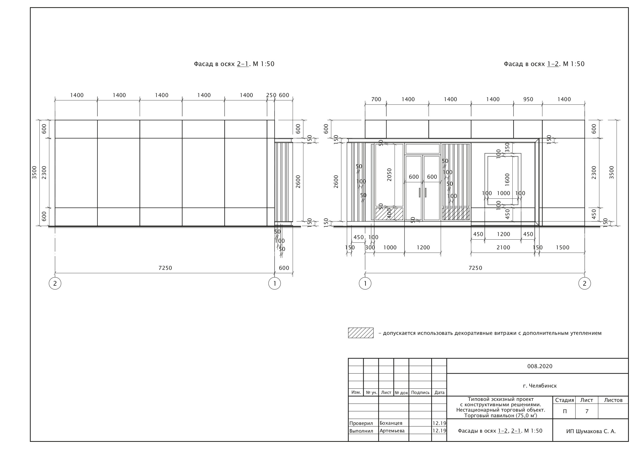
№ 2.7 Торговый павильон (предельная площадь – 100,0 кв. м, общая площадь – 75,0 кв. м)
Просмотреть – Торговый павильон (предельная площадь – 100,0 кв. м, общая площадь – 75,0 кв. м)
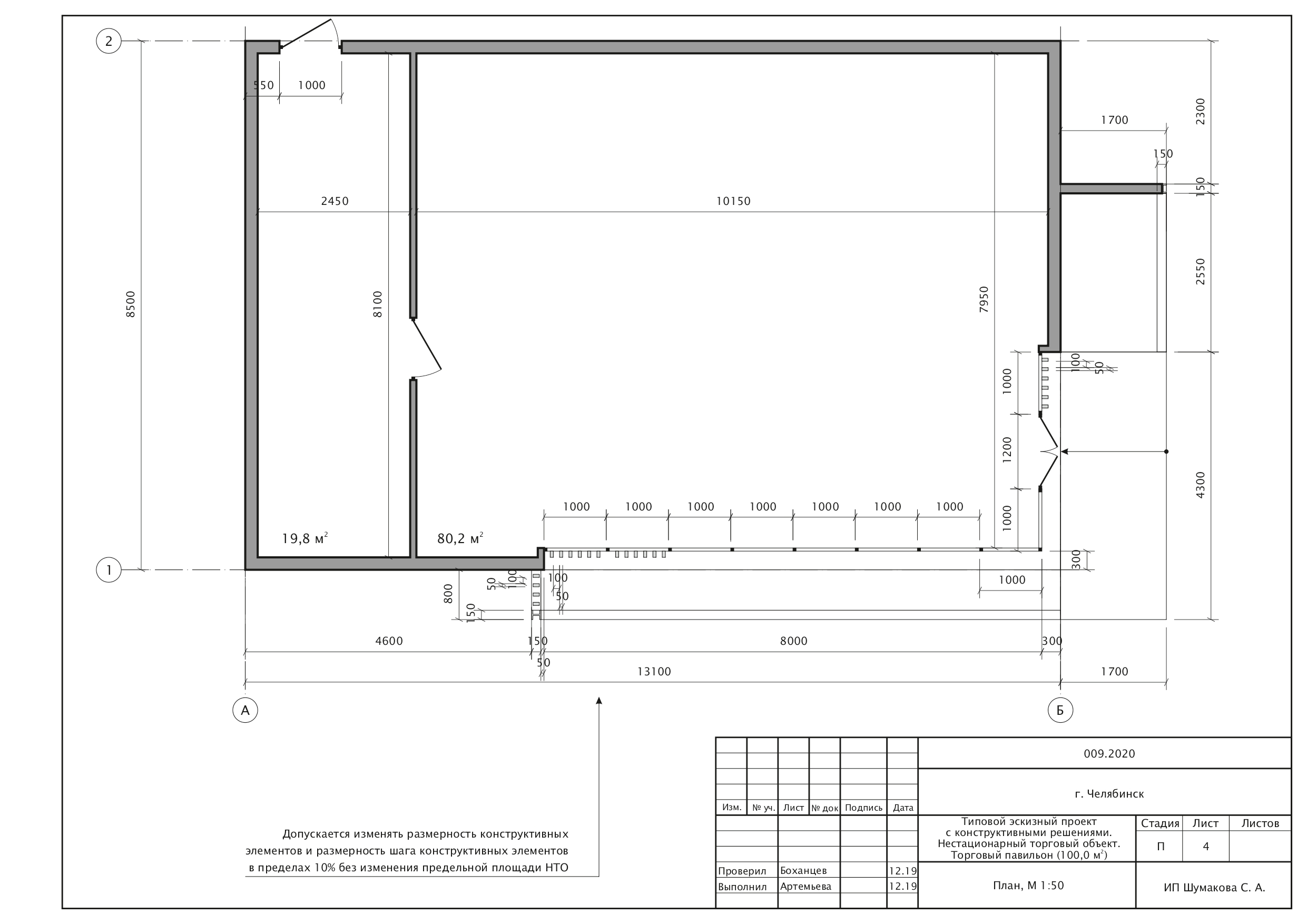
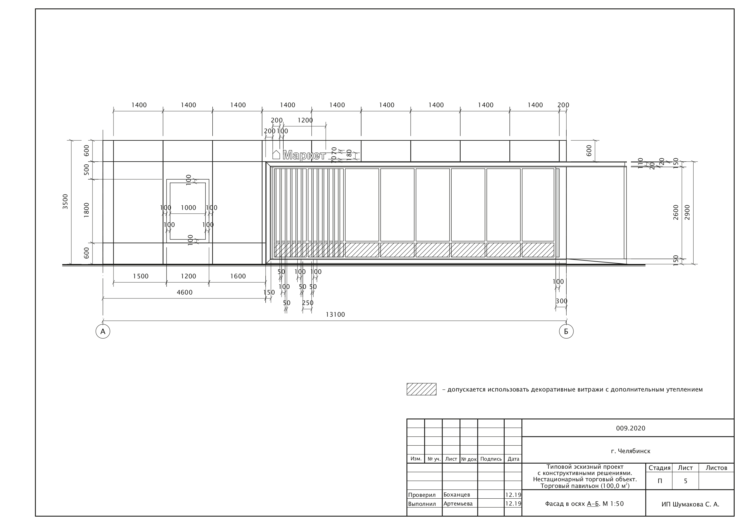
№ 2.8 Торговый павильон (предельная площадь – 130,0 кв. м, общая площадь – 100,0 кв. м)
Просмотреть – Торговый павильон (предельная площадь – 130,0 кв. м, общая площадь – 100,0 кв. м)
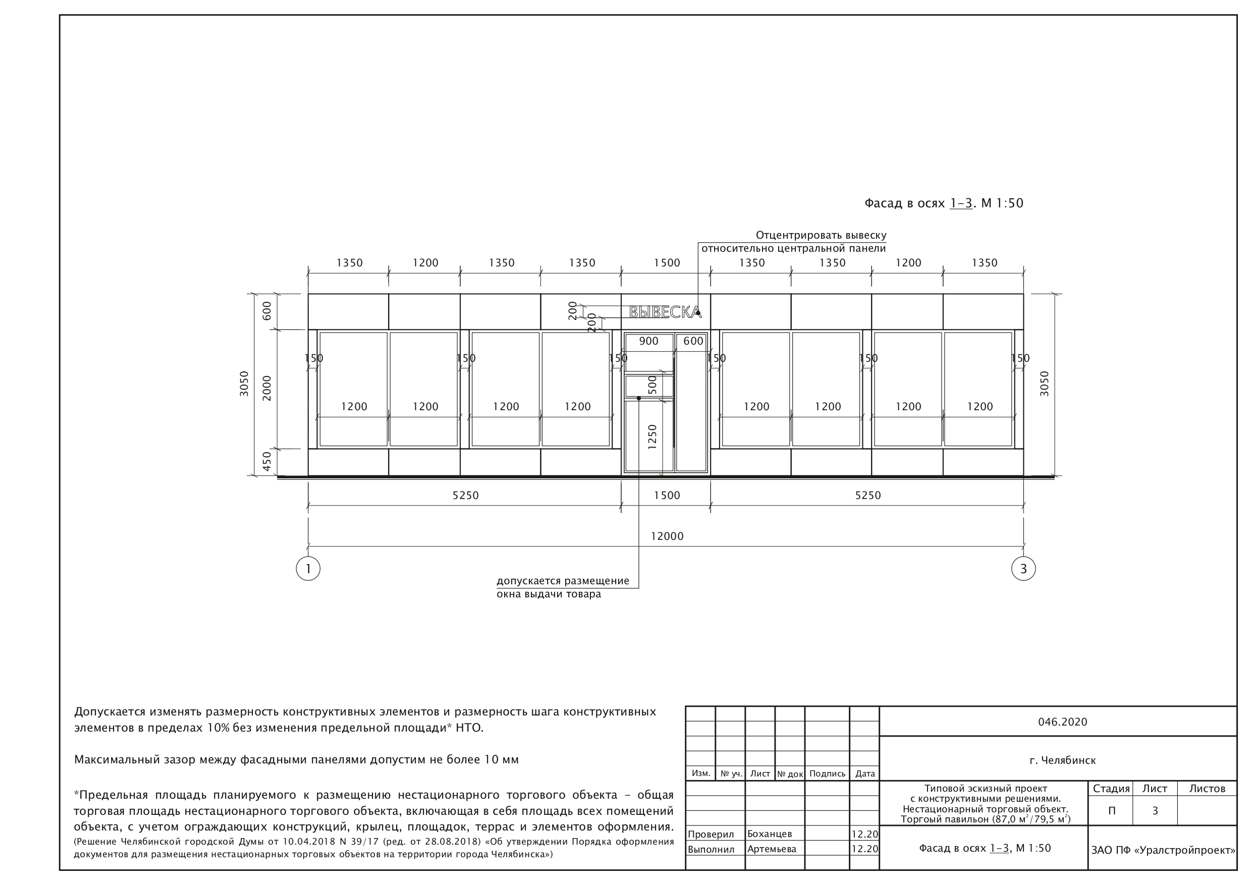
№ 2.9 Торговый павильон (общая площадь торгового павильона – 79,5 кв. м, предельная площадь – 87,0 кв. м)
Просмотреть – Торговый павильон (общая площадь торгового павильона – 79,5 кв. м, предельная площадь – 87,0 кв. м)
№ 2.10 Торговый павильон (предельная площадь – 40,0 кв. м, общая площадь – 34,2 кв. м)
Просмотреть – Торговый павильон (предельная площадь – 40,0 кв. м, общая площадь – 34,2 кв. м)
№ 2.11 Торговый павильон (предельная площадь – 42,4 кв. м, общая площадь – 37,2 кв. м)
Просмотреть – Торговый павильон (предельная площадь – 42,4 кв. м, общая площадь – 37,2 кв. м)
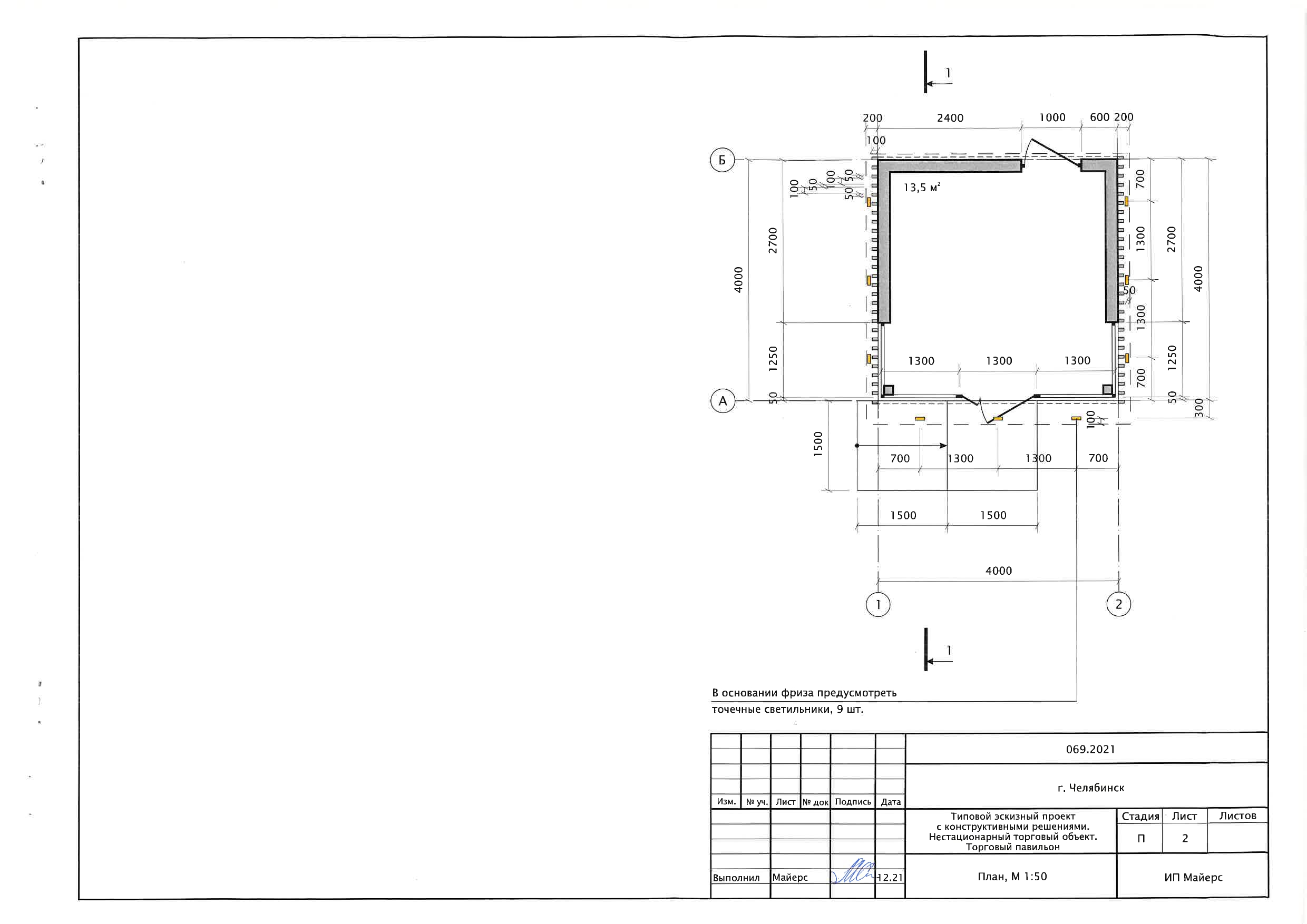
№ 2.12 Торговый павильон (общая площадь торгового павильона – 13,5 кв. м, предельная площадь – 16,0 кв. м)
Просмотреть – Торговый павильон (общая площадь торгового павильона – 13,5 кв. м, предельная площадь – 16,0 кв. м)
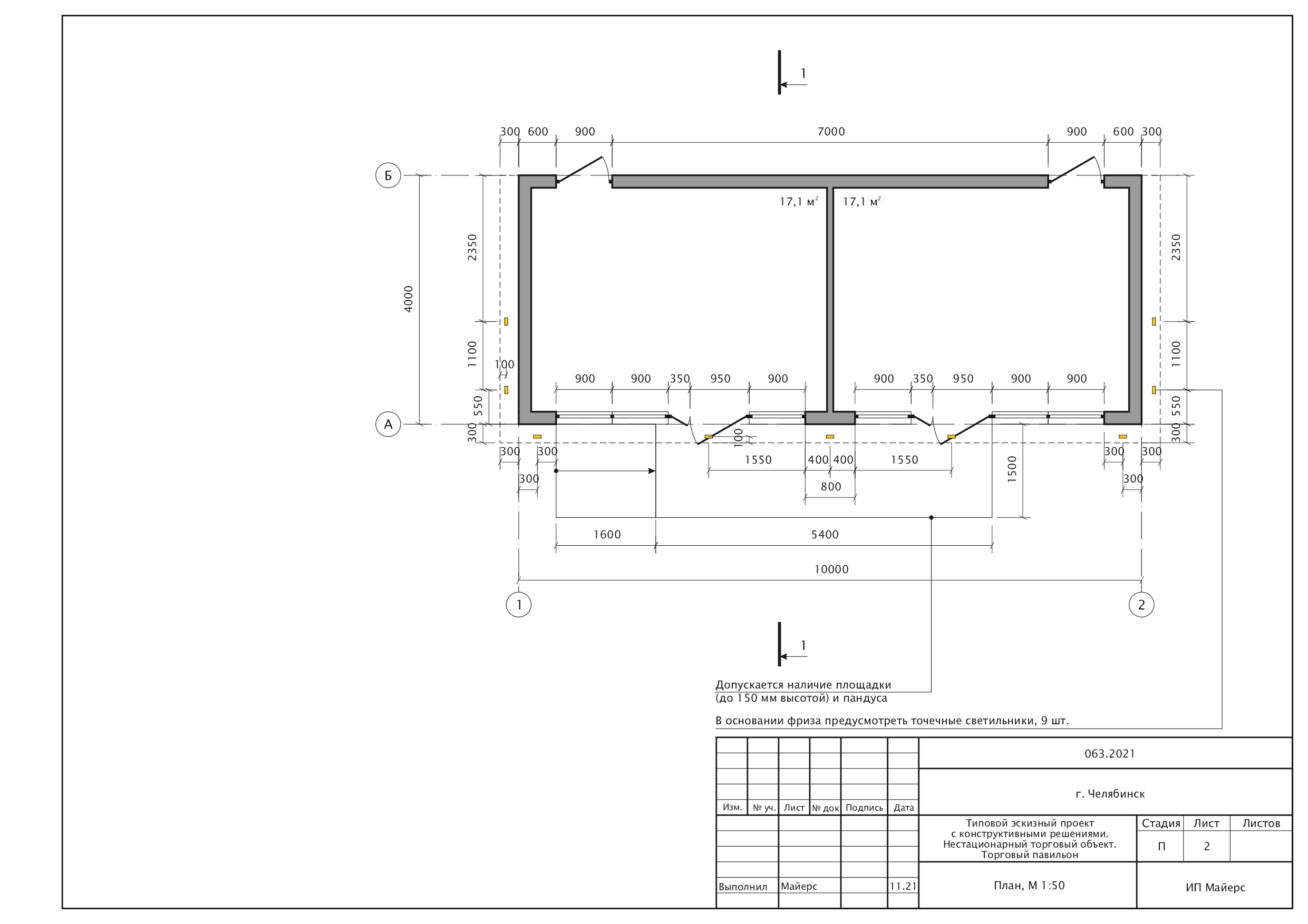
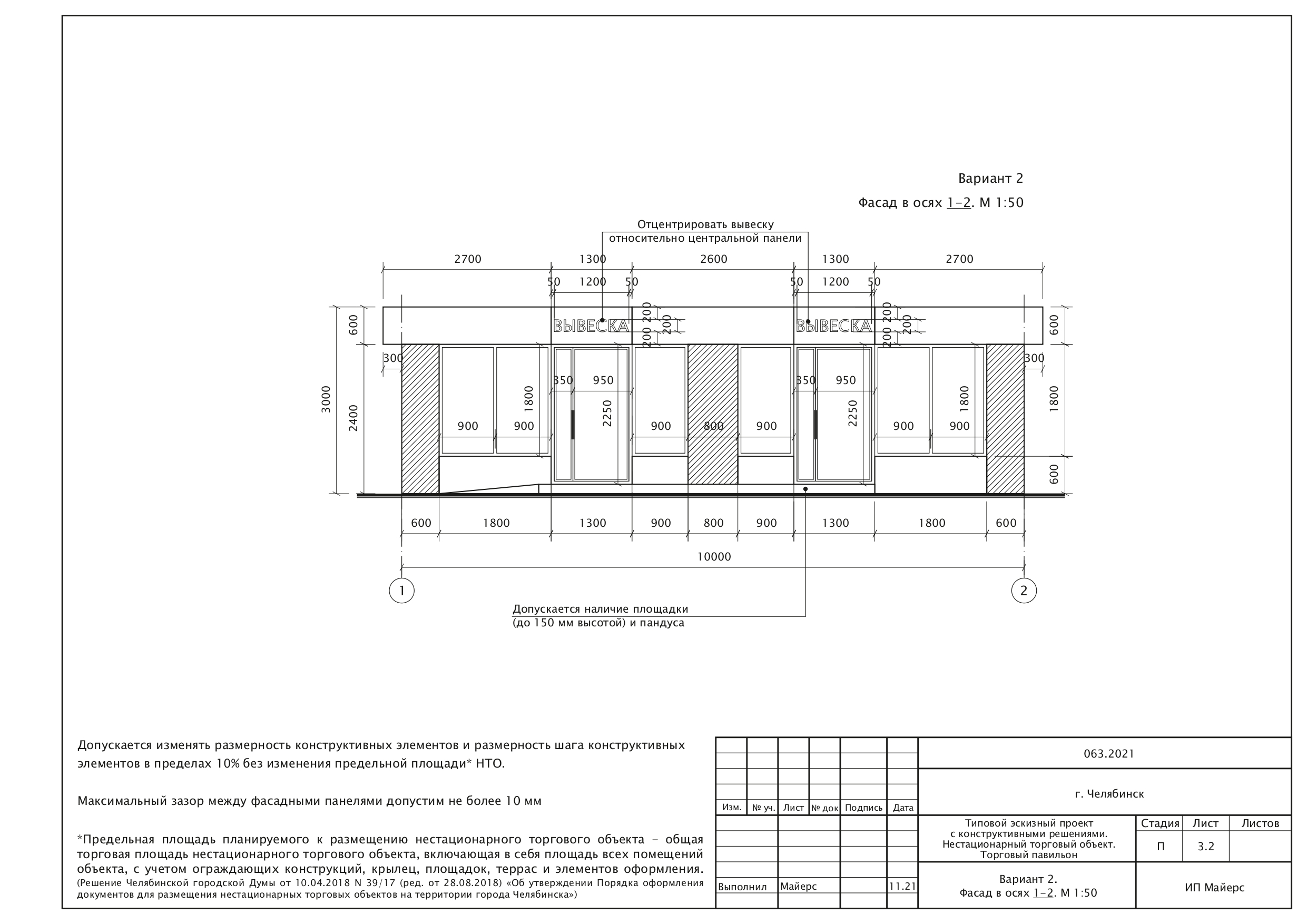
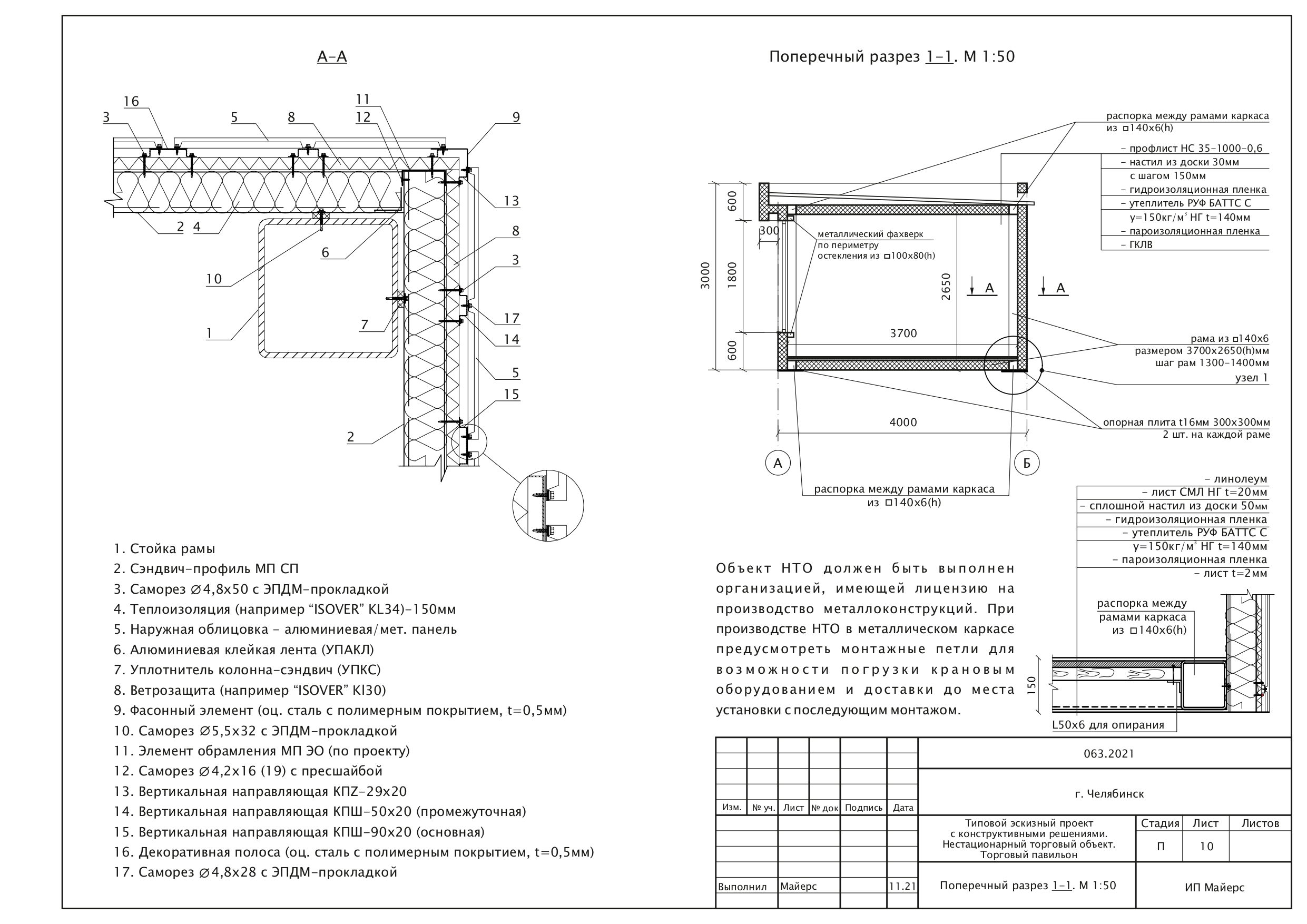
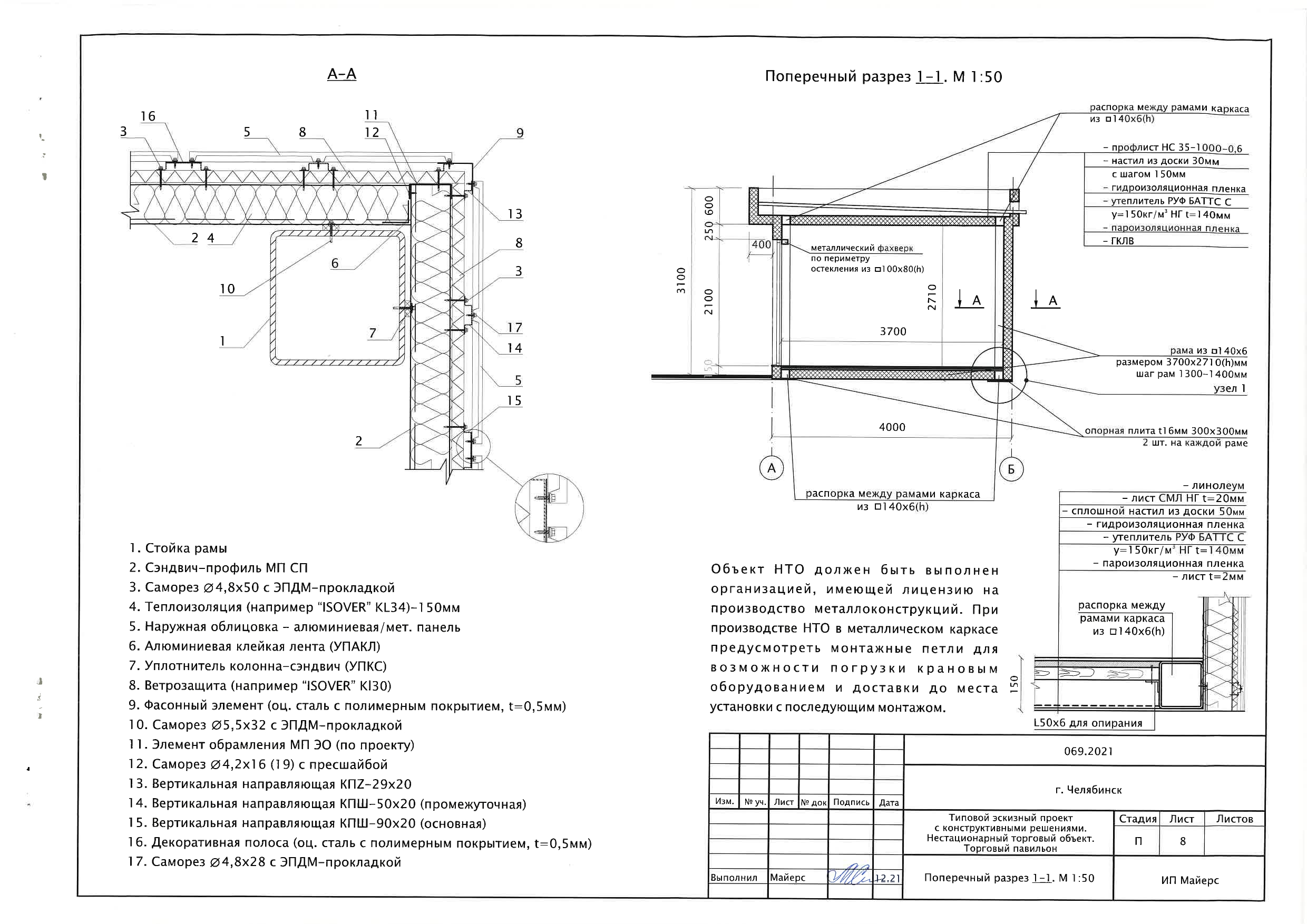
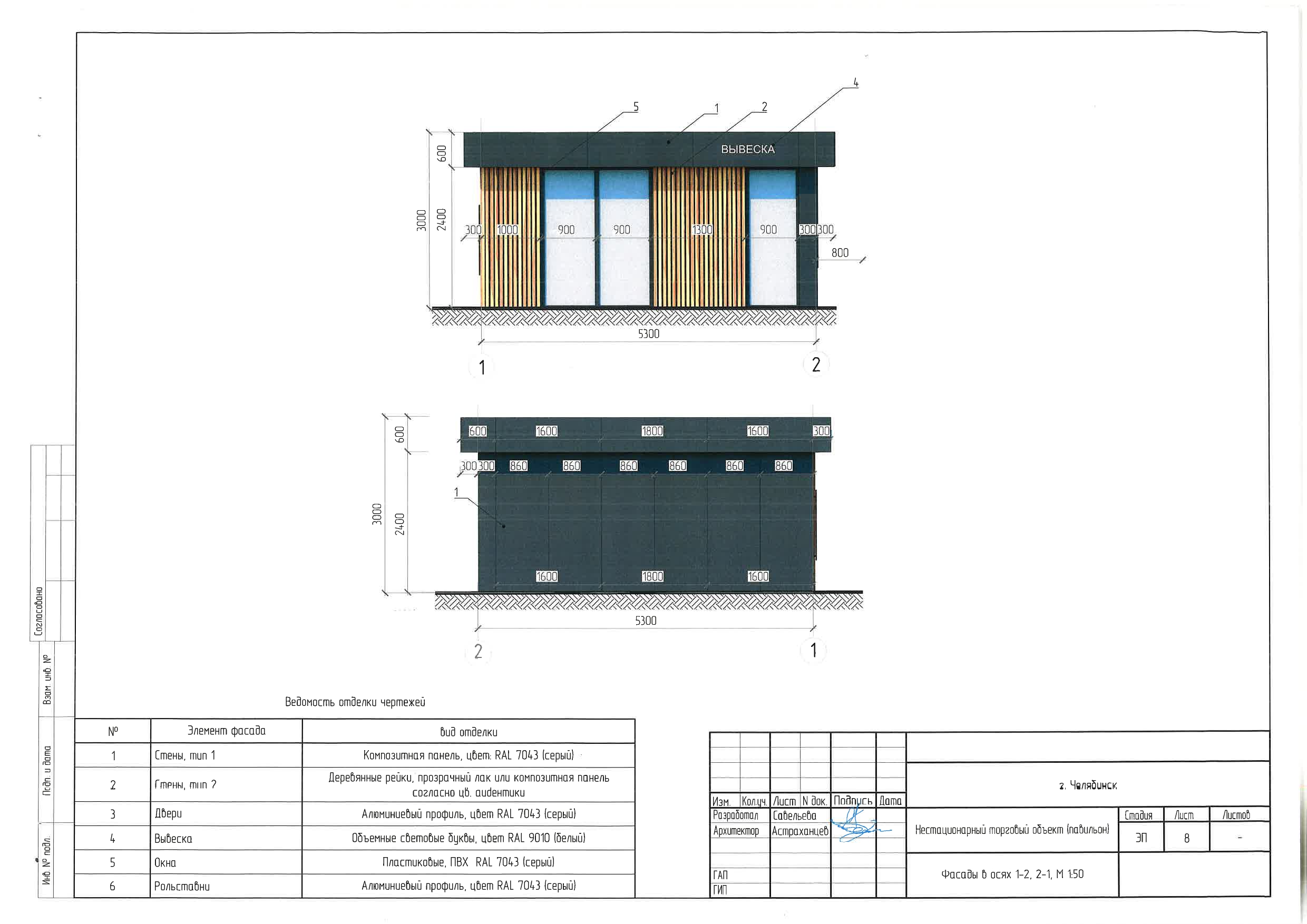
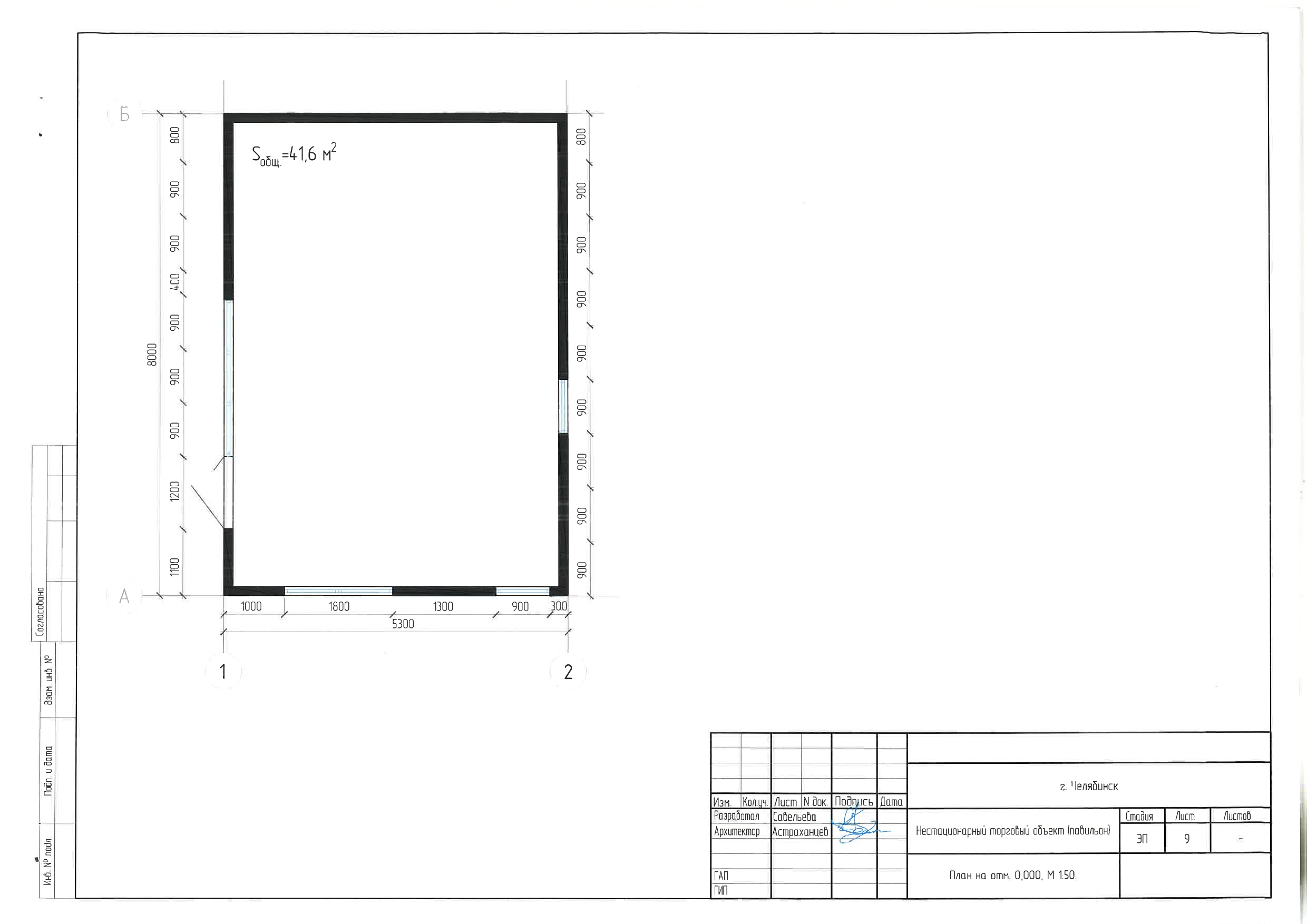
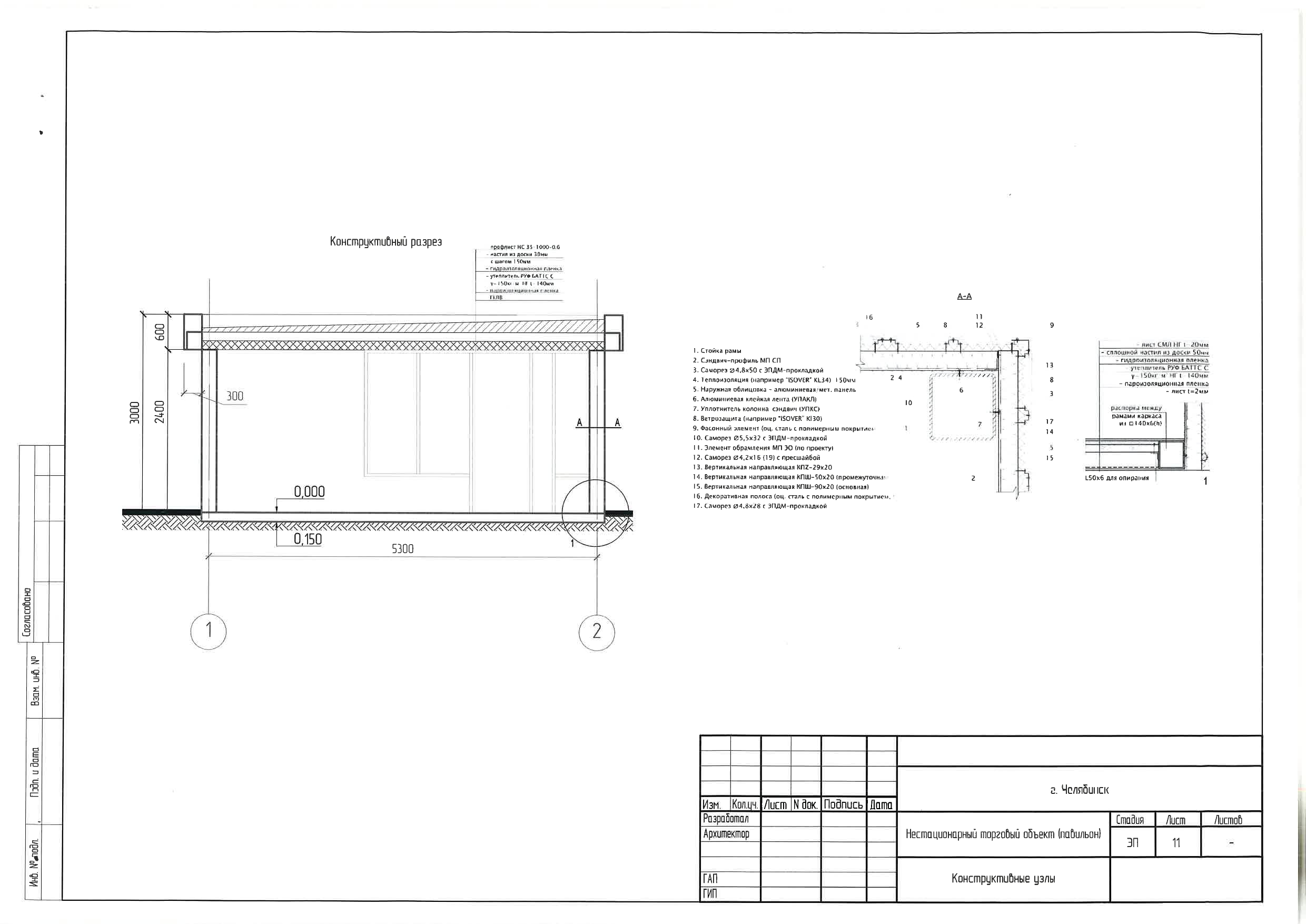
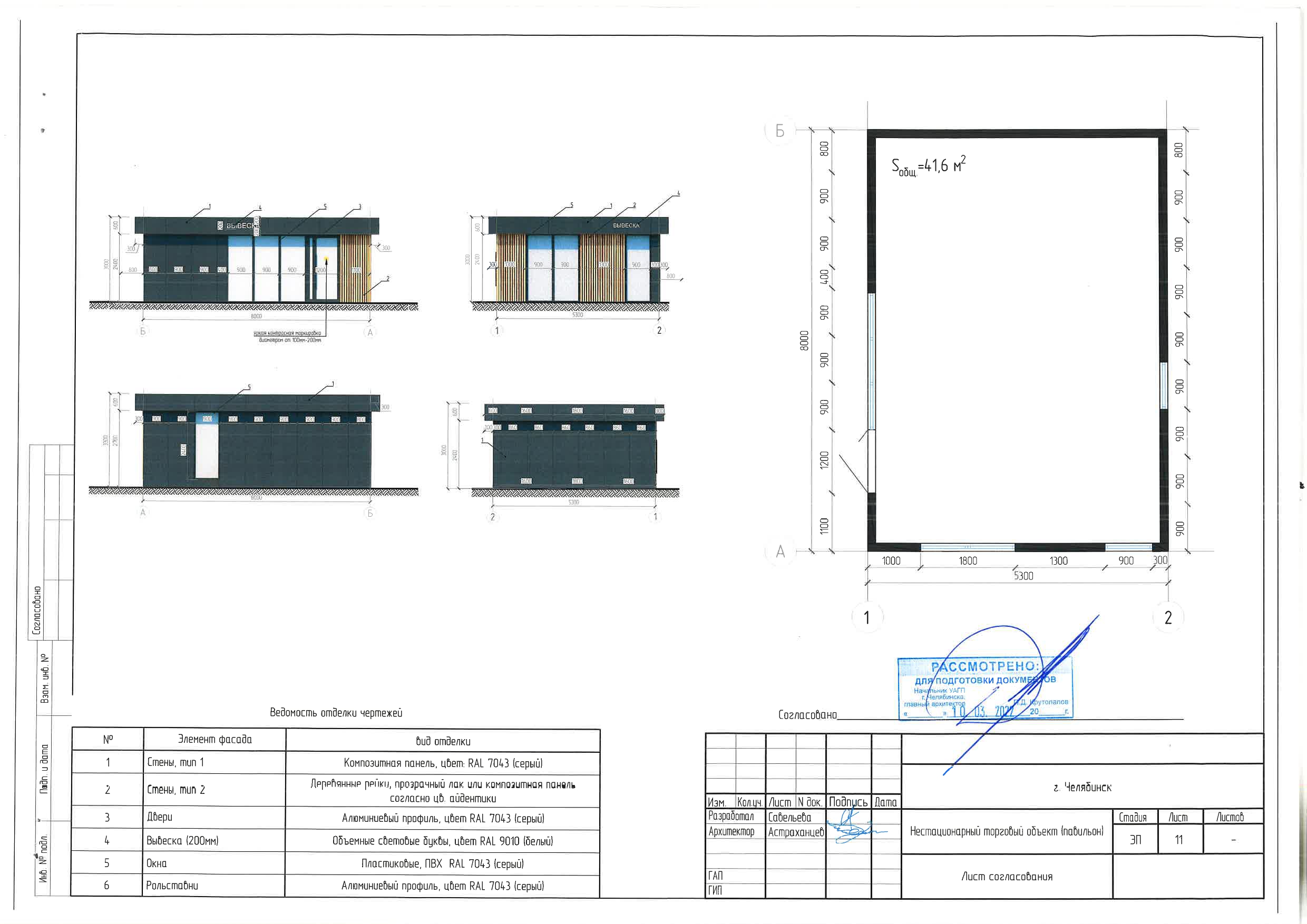
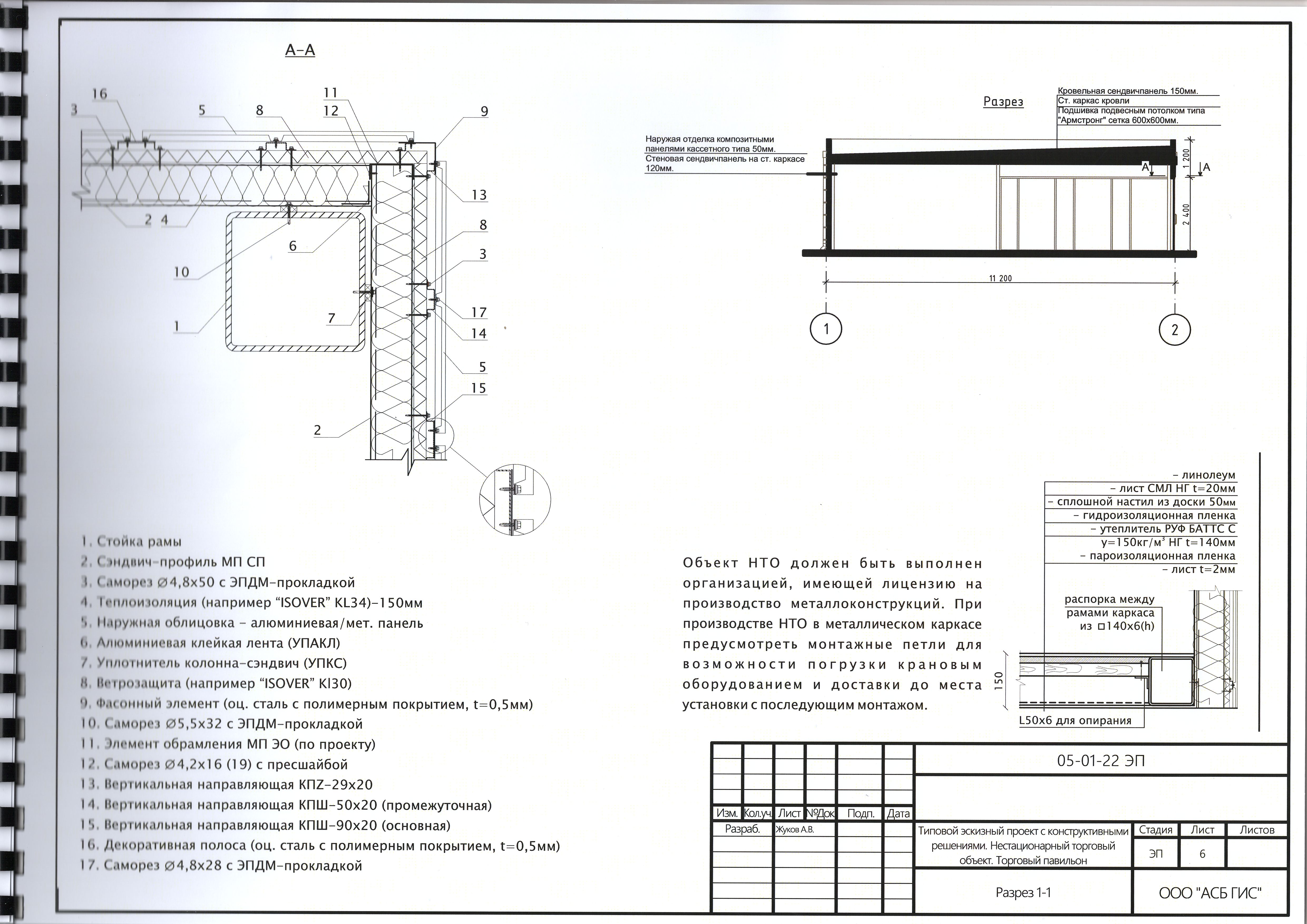
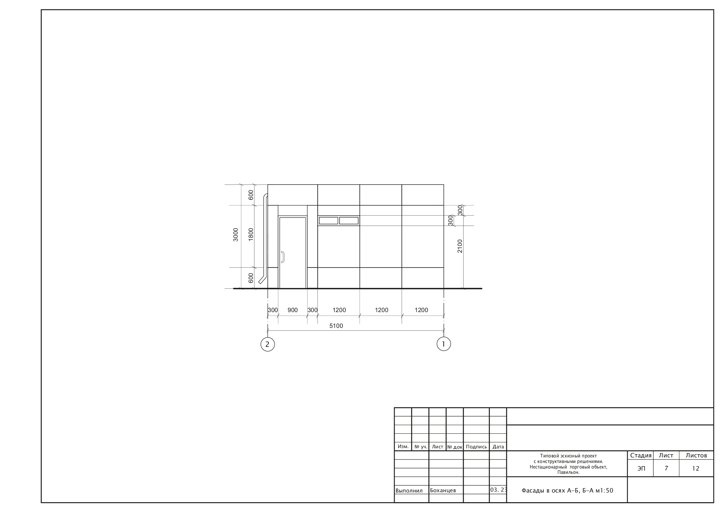
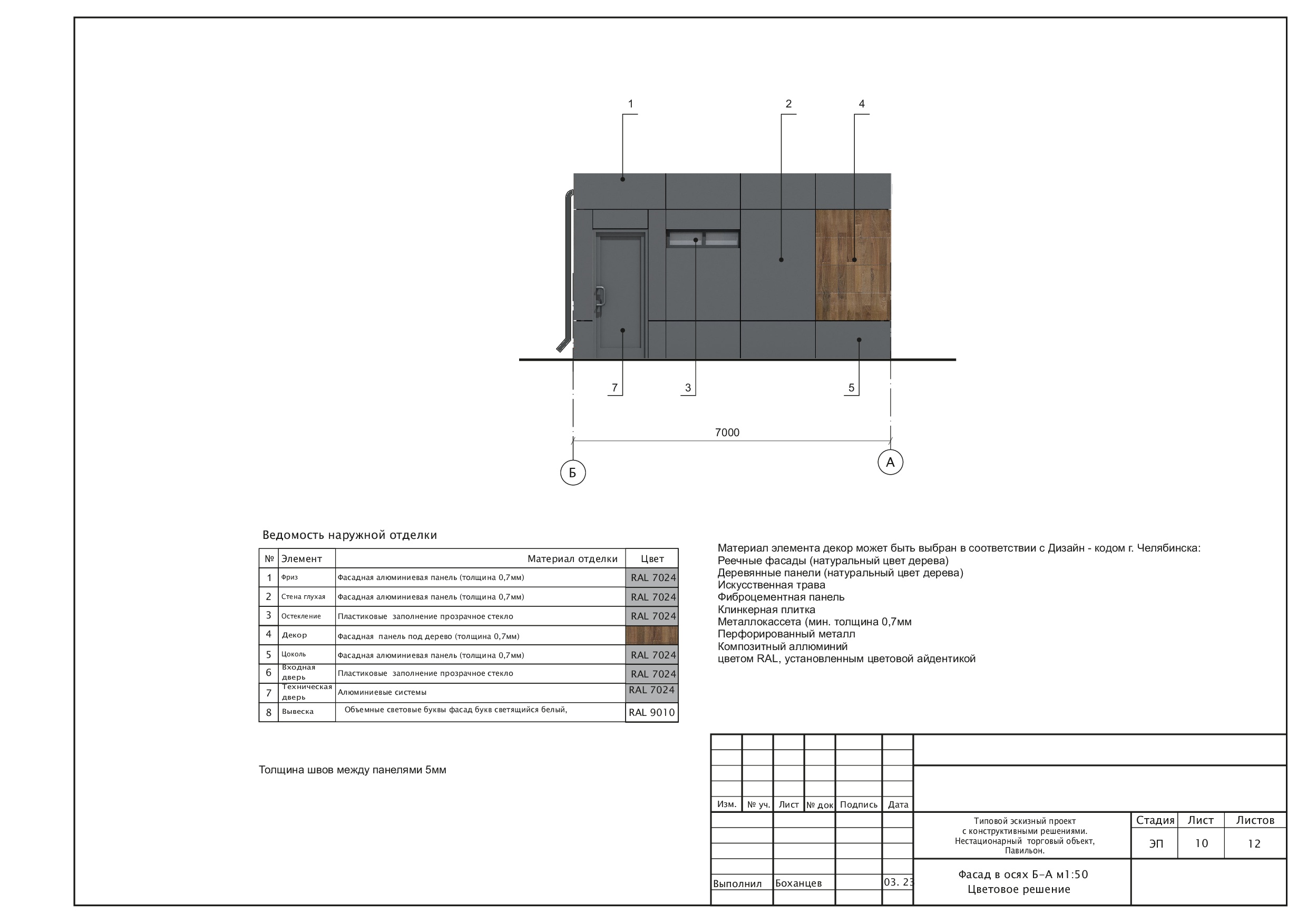
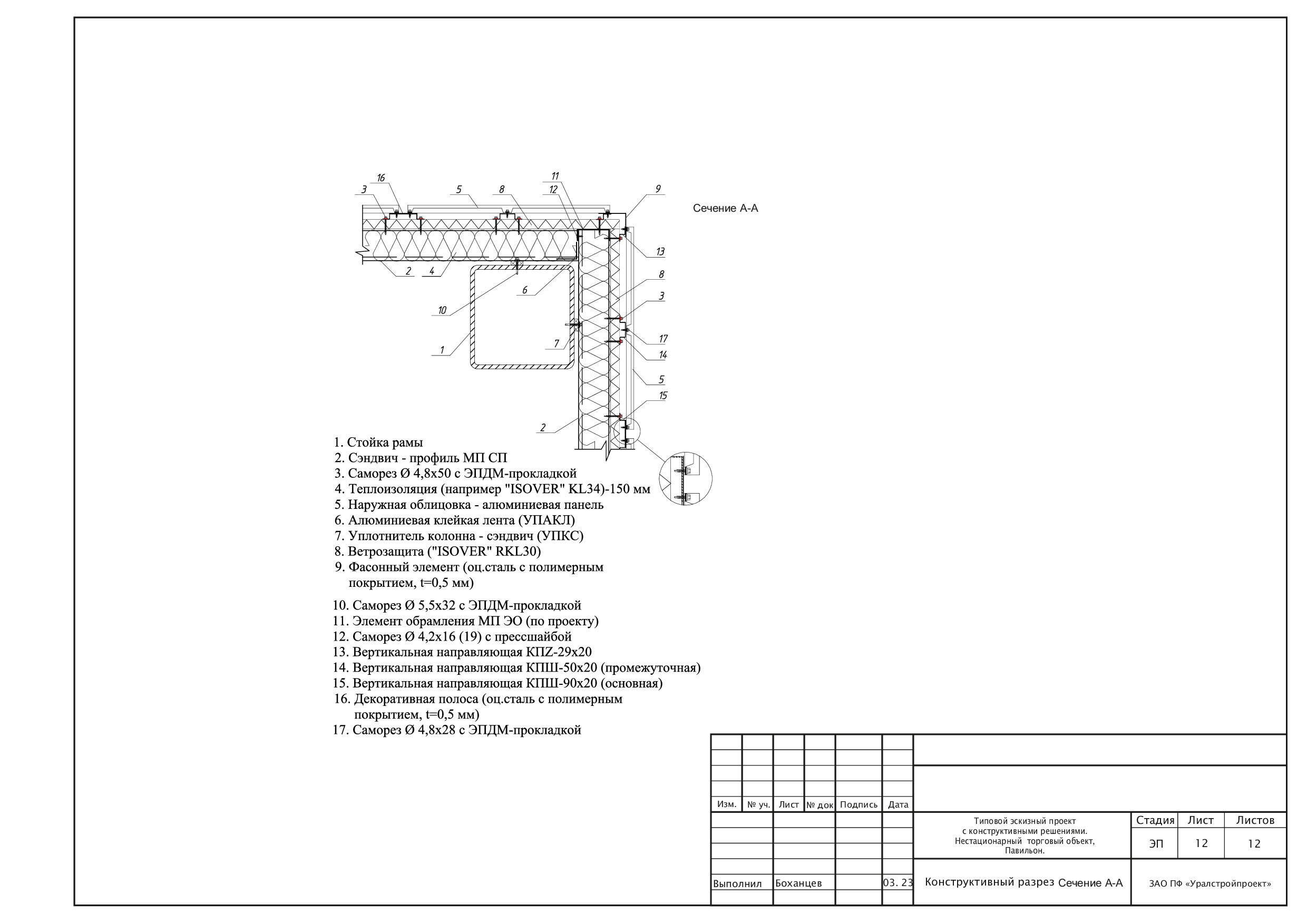
№ 2.13 Торговый павильон (общая площадь торгового павильона – 41,6 кв. м, предельная площадь – 42,445 кв. м)
Просмотреть – Торговый павильон (общая площадь торгового павильона – 41,6 кв. м, предельная площадь – 42,445 кв. м)
№ 2.14 Торговый павильон (общая площадь торгового павильона – 74,8 кв. м, предельная площадь – 79,54 кв. м)
Просмотреть – Торговый павильон (общая площадь торгового павильона – 74,8 кв. м, предельная площадь – 79,54 кв. м)
№ 2.15 Торговый павильон (общая площадь торгового павильона – 91,1 кв. м, предельная площадь – 100,0 кв. м)
Просмотреть – Торговый павильон (общая площадь торгового павильона – 91,1 кв. м, предельная площадь – 100,0 кв. м)
№ 2.16 Торговый павильон (общая площадь торгового павильона – 104,5 кв. м, предельная площадь – 111,0 кв. м)
Просмотреть – Торговый павильон (общая площадь торгового павильона – 104,5 кв. м, предельная площадь – 111,0 кв. м)
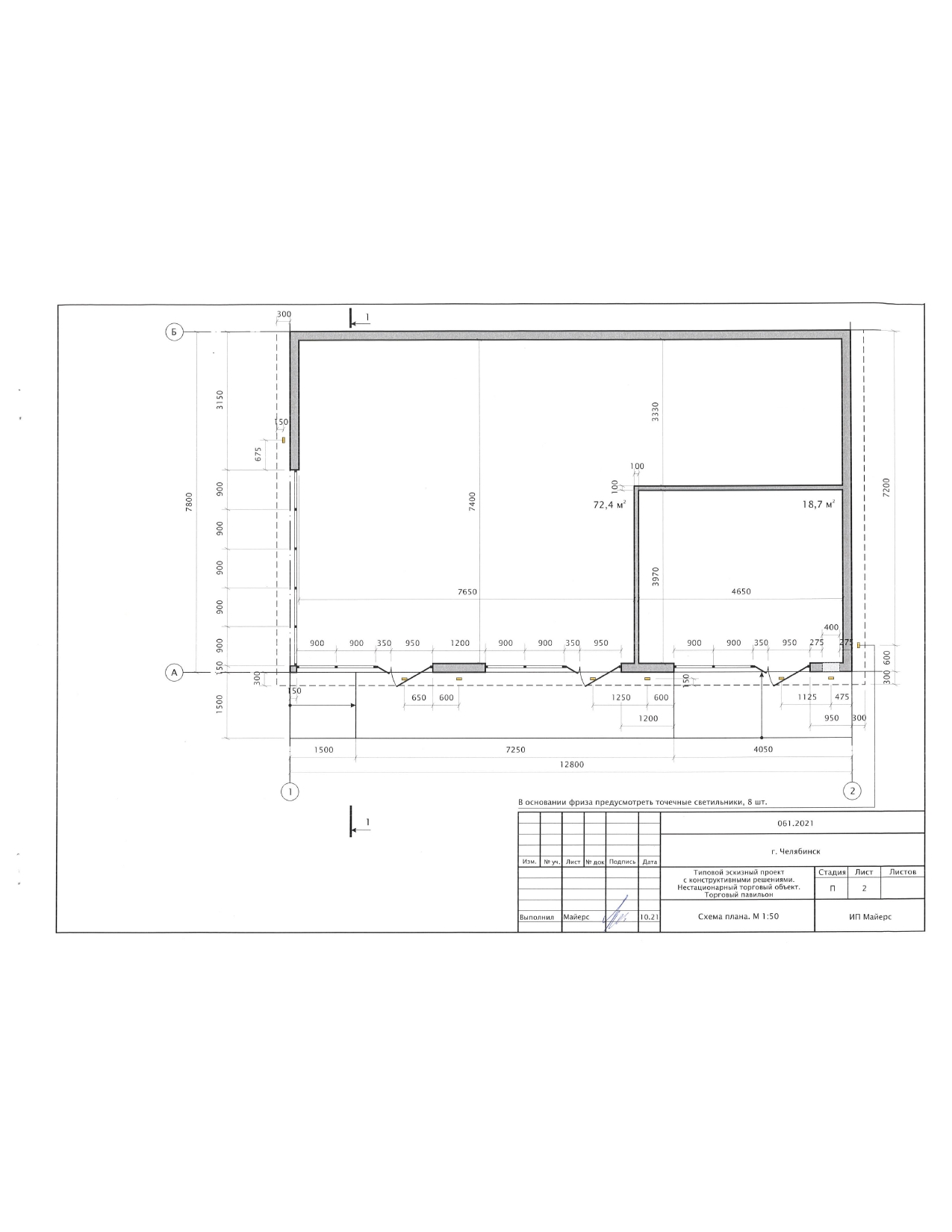
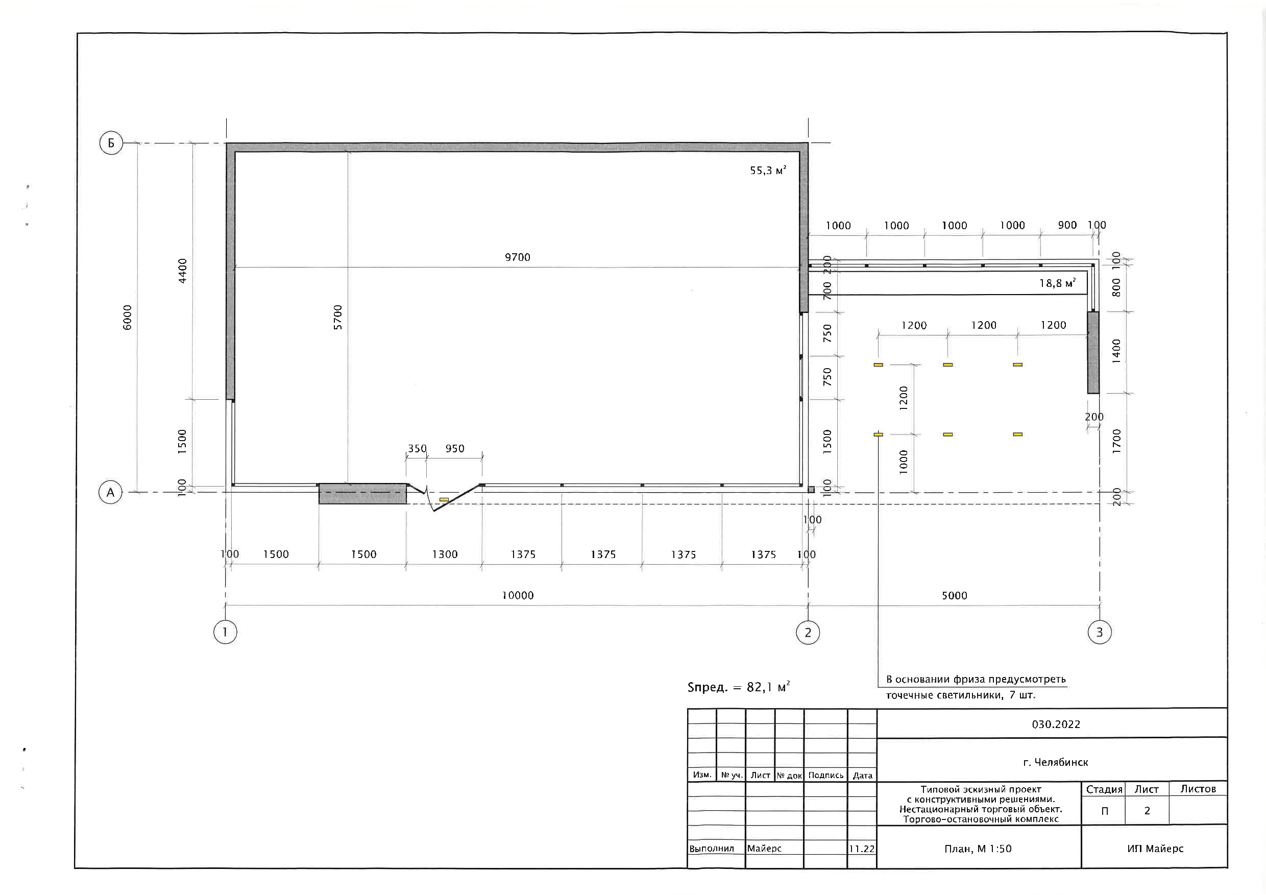
№ 2.17 Торговый павильон (общая площадь торгового павильона – 55,3 кв. м, предельная площадь – 82,1 кв. м)
Просмотреть – Торговый павильон (общая площадь торгового павильона – 55,3 кв. м, предельная площадь – 82,1 кв. м)
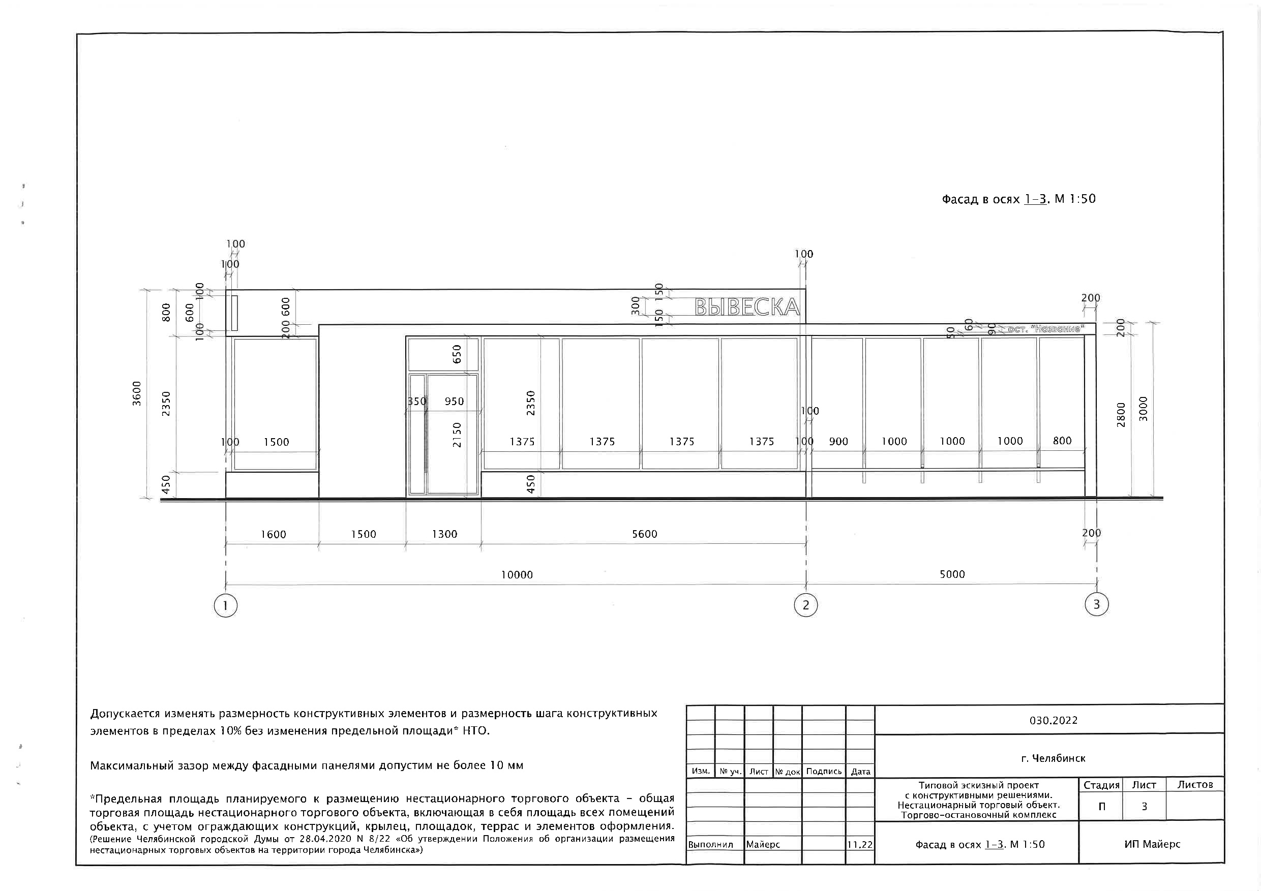
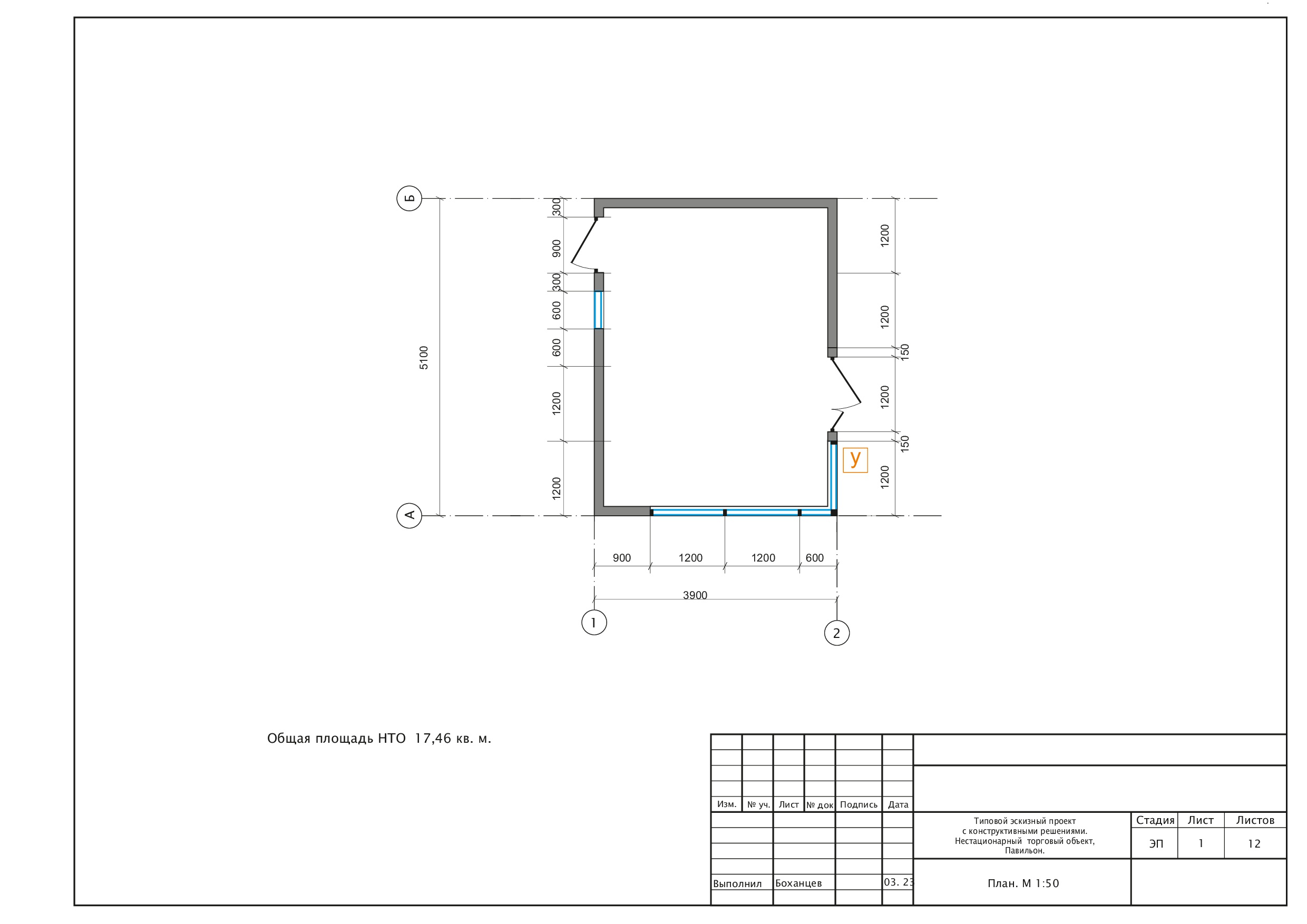
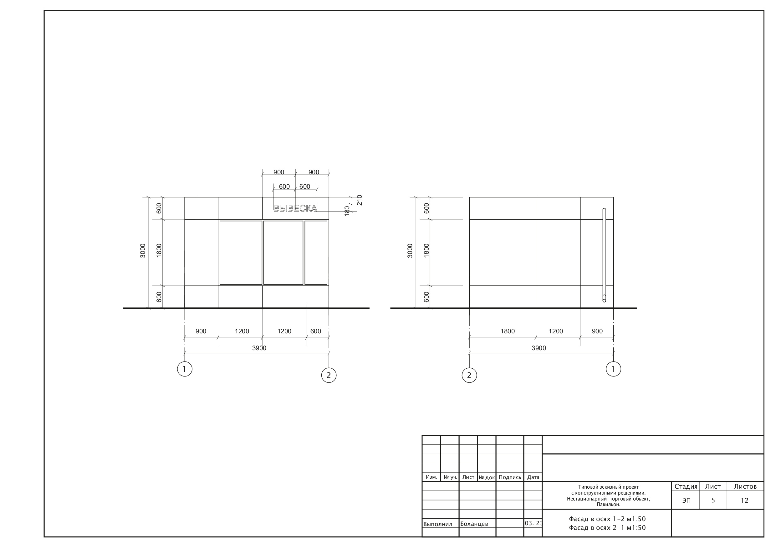
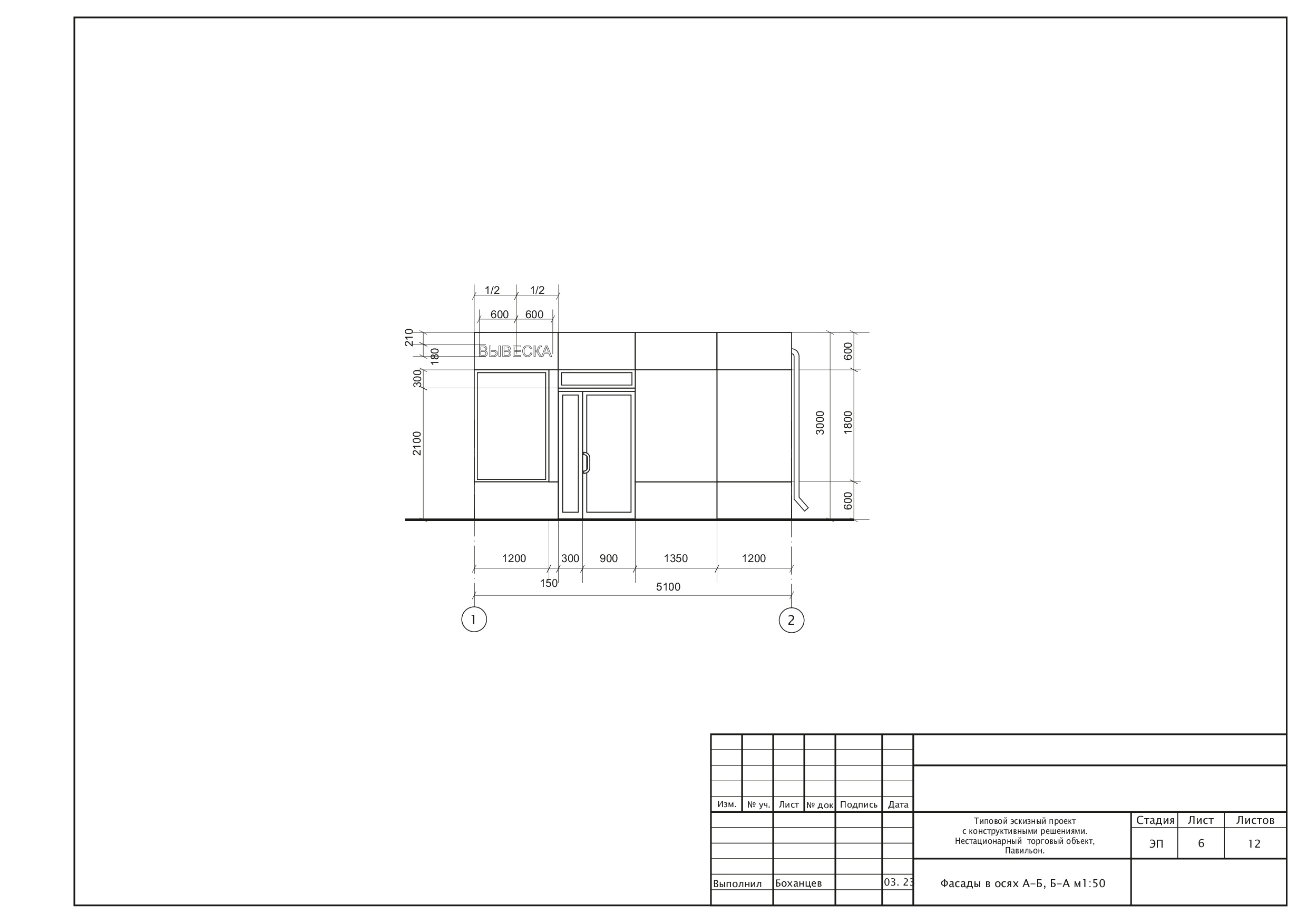
№ 2.18 Торговый павильон (общая площадь торгового павильона – 17,46 кв. м, предельная площадь – 20,0 кв. м)
Просмотреть – Торговый павильон (общая площадь торгового павильона – 17,46 кв. м, предельная площадь – 20,0 кв. м)















































































































































































