Администрация города Челябинска
Управление по архитектурно-градостроительному
проектированию города Челябинска
Начальник управления,
главного архитектора
Крутолапов Павел Дмитриевич
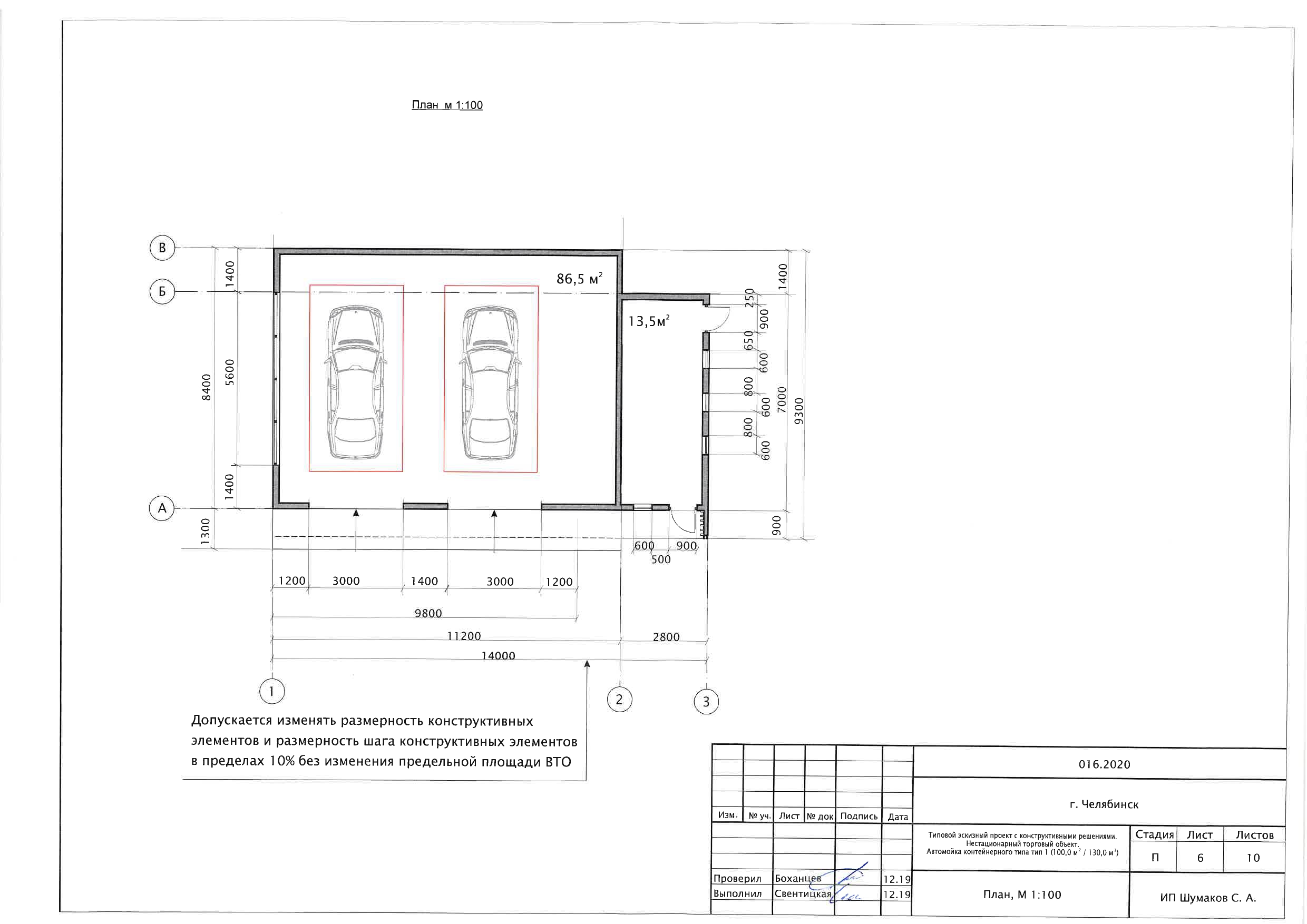
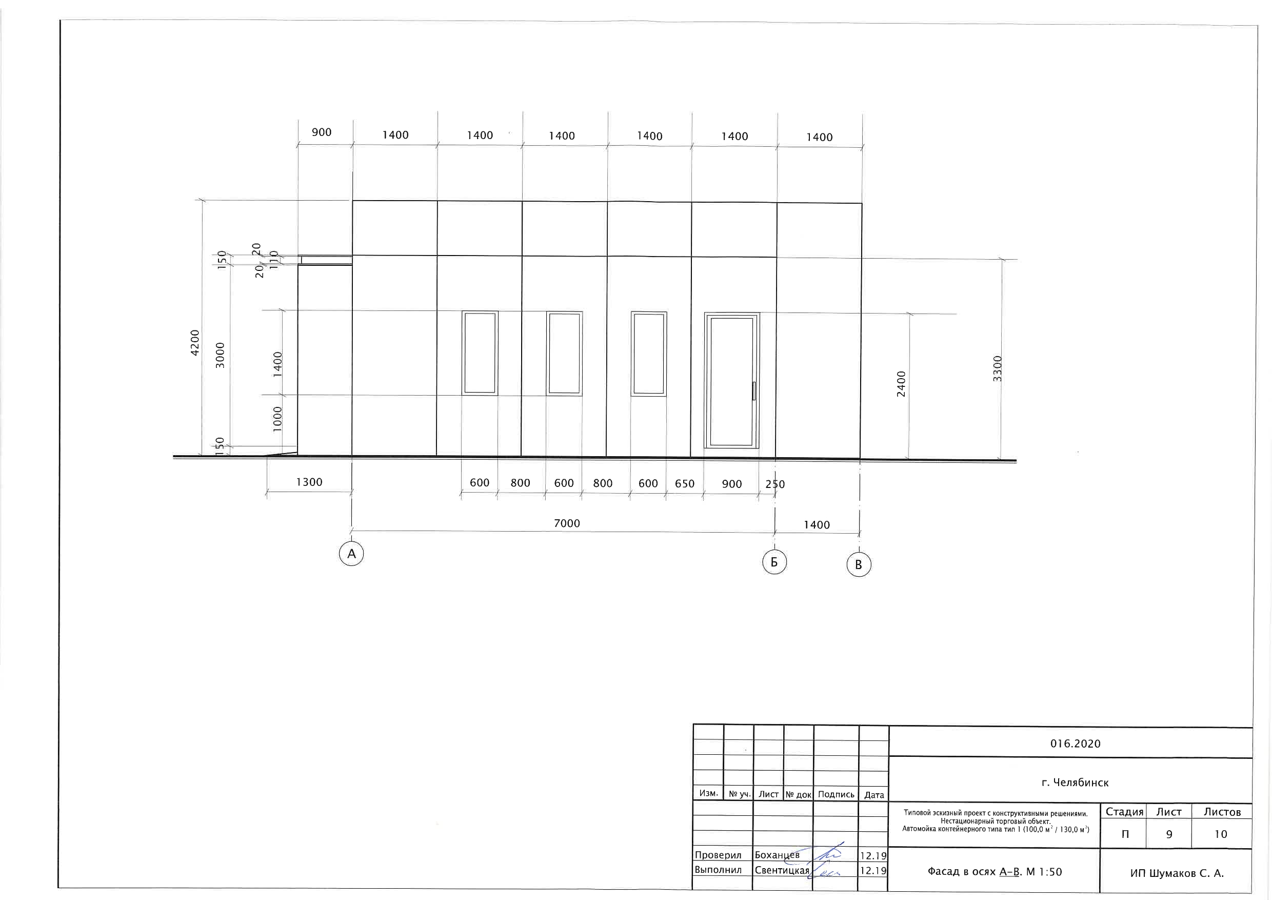
№ 5.1 Автомобильная мойка контейнерного типа. тип 1 (предельная площадь – 130,0 кв. м)
Просмотреть – Автомобильная мойка контейнерного типа. тип 1 (предельная площадь – 130,0 кв. м)
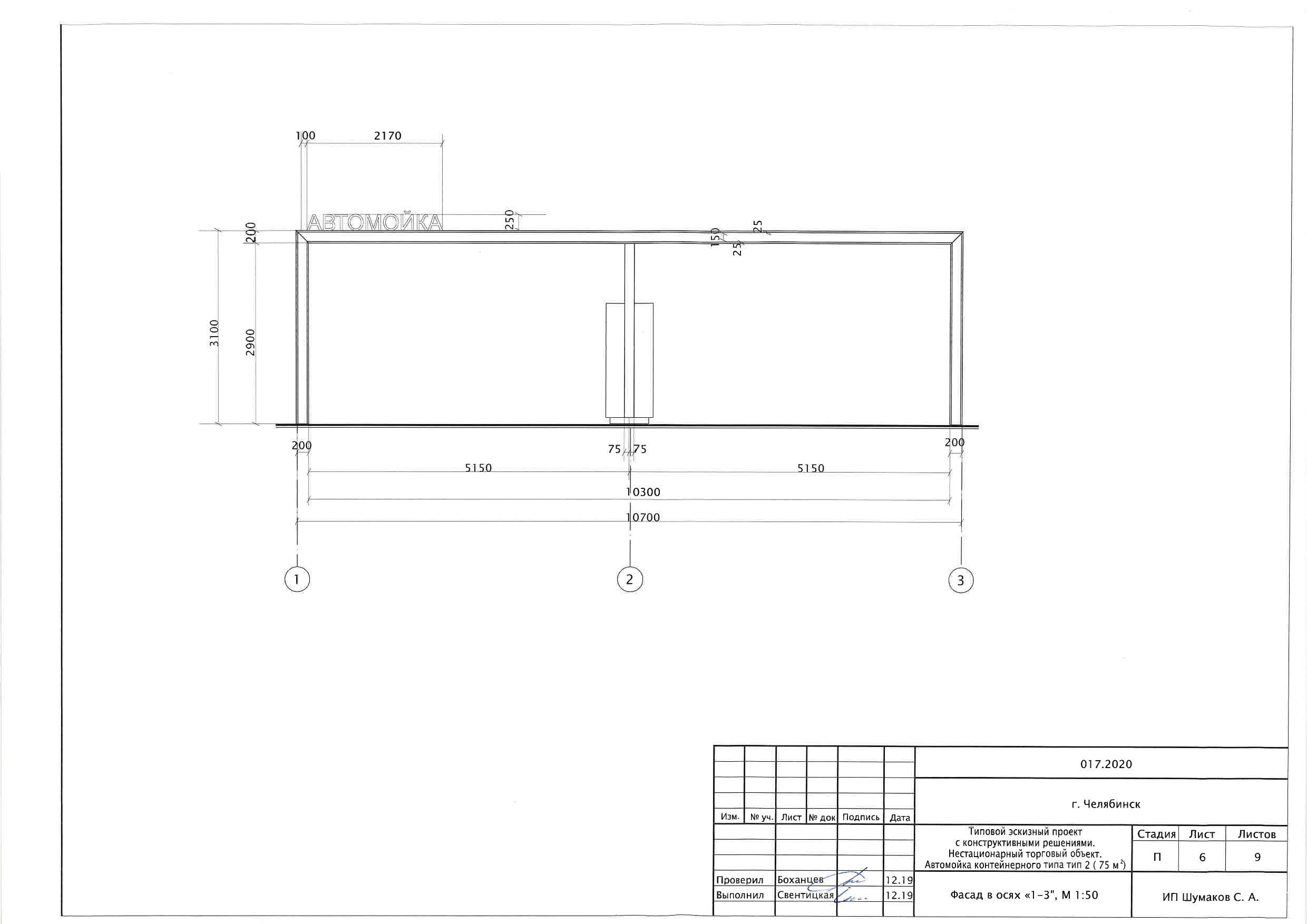
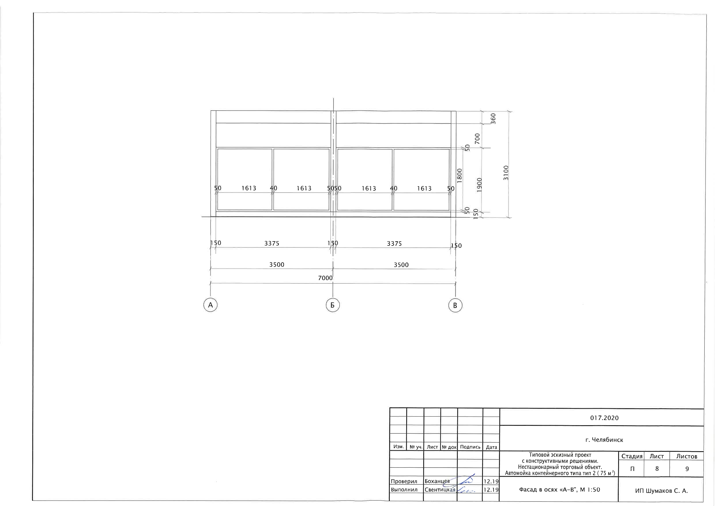
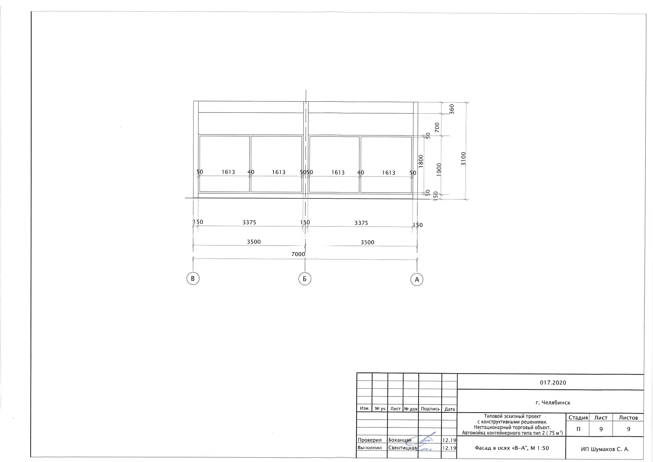
№ 5.2 Автомобильная мойка контейнерного типа. тип 2 (площадь – 75,0 кв. м)
Просмотреть – Автомобильная мойка контейнерного типа. тип 2 (площадь – 75,0 кв. м)
№ 5.3 Автомобильная мойка контейнерного типа. тип 3 (площадь – 73,0 кв. м)
Просмотреть – Автомобильная мойка контейнерного типа. тип 3 (площадь – 73,0 кв. м)







































